Attico su due livelli con terrazzo panoramico VENDITA

Via Emilio Borsa 13 - Monza (Monza e Brianza)
€ 520.000
  • Quadrilocale
  • 175 mq
  • 2 bagni

Attico in Vendita a Monza

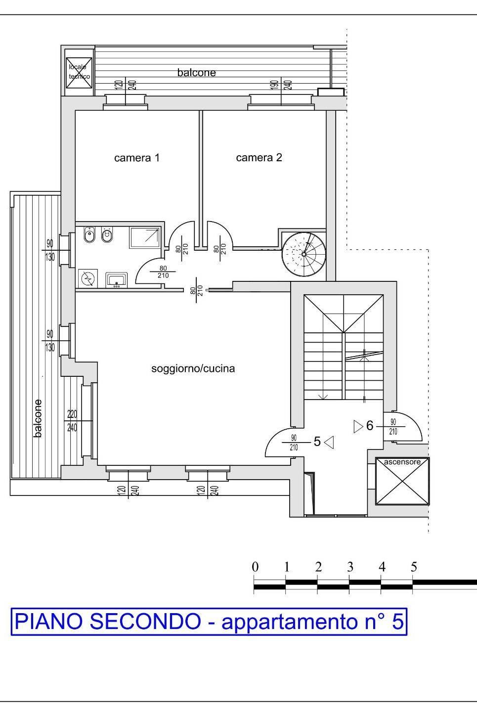
VENDITA DIRETTA DAL COSTRUTTORE la tua nuova casa in CLASSE A4. Proponiamo in palazzina di prestigio di sole 6 unità abitative un luminoso attico su due livelli (piano secondo e terzo) con terrazzo panoramico. Al secondo piano entrando nell'unità abitativa si trova un'ampia zona living con soggiorno e angolo cottura, due camere da letto entrambe matrimoniali e il primo bagno finestrato. Tramite una scala di design su misura si accede al terzo piano composto da un locale open space di circa 45 mq (che può essere usato come terza camera, secondo soggiorno, studio, locale palestra etc ) dotato di predisposizione per una seconda cucina, il secondo bagno con vasca di design free standing e un ampio terrazzo panoramico, ideale per pranzi o momenti di convivialità all'aperto. Gli appartamenti offrono spazi luminosi e ben distribuiti ideali per soddisfare le esigenze di ogni famiglia. Sono dotati di ogni comfort moderno (riscaldamento a pavimento, ventilazione meccanica controllata , raffrescamento con split samsung ,pannelli fotovoltaici , gestione domotica avanzata, predisposizione alla fibra ottica FTTH per una connessione ultra-veloce e car charger nei box per la mobilità elettrica).Box singoli o doppi a partire da 20.000 euro. VIENI A SCOPRIRE i nostri attici su due livelli che saranno consegnati a settembre 2025. Prenota un appuntamento in sede, ti aspettiamo. AMPIA SCELTA di capitolato.
APPARTAMENTO AL SECONDO PIANO 95 MQ,
BALCONI AL SECONDO PIANO 30 MQ,
APPARTAMENTO AL TERZO PIANO 45 MQ,
TERRAZZO PANORAMICO AL TERZO PIANO 58 MQ.
Grazie al BONUS SISMICO l'acquirente può detrarre in cinque anni fino a un massimo di 96.000 euro in sede di dichiarazione irpef. Le immagini sono fornite al solo scopo illustrativo e non costituiscono elemento contrattuale. "VENDITA DIRETTA DAL COSTRUTTORE NO PROVVIGIONI" NO COLLABORAZIONI CON AGENZIE Per ulteriori informazioni tecniche indirizzo email imperiumcostruzioni@pec.it

LEGGI TUTTO

CONDIVIDI SUI SOCIAL

DATI PRINCIPALI

Riferimento
130384
Contratto
Vendita
Tipologia
Attico
Superficie
175 mq
Locali
4
Camere da letto
2
Cucina
Angolo cottura
Bagni
2
Piano
3 °
Totale piani
3
Box/Posto auto
Doppio

CARATTERISTICHE

Ascensore

COSTI

Prezzo
€ 520.000,00

EFFICIENZA ENERGETICA

Stato
Nuovo/In costruzione
Anno costruzione
2025
Riscaldamento
Autonomo
Climatizzazione
Si
Classe energetica
A4
IPE
351,00 kWh/m²a
351,00 kWh/m²a | Classe energetica A4

A4

A3

A2

A1

B

C

D

E

F

G

MAPPA

Monza comune della Bassa Brianza Centrale Sud

ANNUNCI SIMILI