• Quadrilocale
  • 164 mq
  • 2 bagni

Attico in Vendita a Monza

MONZA - Residenza Modigliani
Palazzina di sole 6 unità immobiliari all'interno di gradevole quartiere residenziale poco trafficato, poco distante dalle principali arterie di comunicazione.
Il progetto è classe energetica A4 mediante l'utilizzo di materiali ecosostenibili, come acciaio, legno e vetro unitamente all'utilizzo di impianti tecnologici all'avanguardia, come pompa di calore alimentata dall'impianto fotovoltaico, riscaldamento autonomo a pavimento, cappotto esterno, impianto di ventilazione meccanica controllata con scambiatore di calore, predisposizione di impianto di condizionamento e di deumidificazione dell'aria.
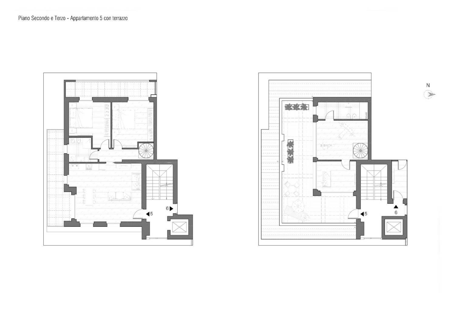
ULTIMO ATTICO di 5 locali + terrazzo Ingresso direttamente nell'ampio soggiorno con cucina a vista e accesso al terrazzo, zona notte composta da due camere da letto entrambe con balcone e servizio finestrato; scala interna o con ingresso indipendente che porta al piano superiore mansardato di circa 50 mq, composto da un secondo soggiorno, una camera da letto e servizio finestrato, tutti con accesso al terrazzo di 47 mq. Completa la proprietà la possibilità di acquistare una cantina e un box al piano interrato.
Ampia scelta di capitolati. Grazie al bonus sismico, l'acquirente può detrarre fino a un massimo di 96.000 euro in sede di dichiarazione IRPEF. Pronta consegna
NO PROVVIGIONI VENDITA DIRETTA.

LEGGI TUTTO

CONDIVIDI SUI SOCIAL

DATI PRINCIPALI

Riferimento
132883
Contratto
Vendita
Tipologia
Attico
Superficie
164 mq
Locali
4
Camere da letto
3
Cucina
A vista
Bagni
2
Piano
3 °
Totale piani
3
Box/Posto auto
Singolo

CARATTERISTICHE

Ascensore

COSTI

Prezzo
€ 520.000,00

EFFICIENZA ENERGETICA

Stato
Nuovo/In costruzione
Anno costruzione
2024
Riscaldamento
Autonomo
Climatizzazione
Si
Classe energetica
A4
IPE
351,00 kWh/m²a
351,00 kWh/m²a | Classe energetica A4

A4

A3

A2

A1

B

C

D

E

F

G

MAPPA

Monza comune della Bassa Brianza Centrale Sud

ANNUNCI SIMILI

VENDITA 20
€ 520.000
Attico in Vendita a Monza (Monza e Brianza)
  • Quadrilocale
  • 164 mq
  • 2 bagni
VENDITA 20
€ 550.000
Attico in Vendita a Monza (Monza e Brianza)
  • Quadrilocale
  • 209 mq
  • 2 bagni
VENDITA 20
€ 619.000
Attico in Vendita a Monza (Monza e Brianza)
  • Più di 5 locali
  • 202 mq
  • 2 bagni