Attico su due livelli con terrazzo panoramico VENDITA

Via Amedeo Modigliani 13 - Monza (Monza e Brianza)
€ 495.000
  • Quadrilocale
  • 171 mq
  • 2 bagni

Attico in Vendita a Monza

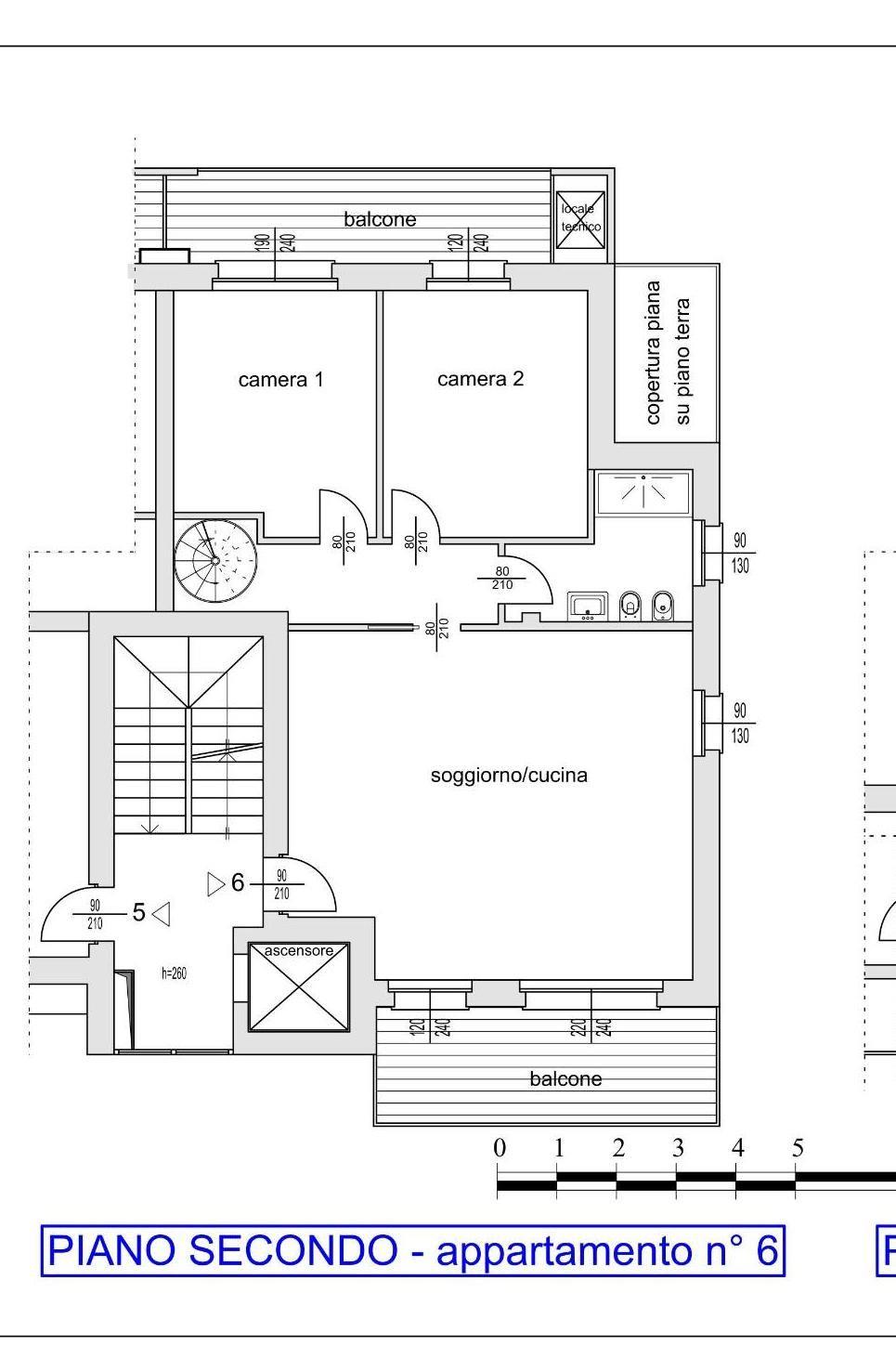
VENDITA DIRETTA DAL COSTRUTTORE: la tua nuova casa in classe A4. ULTIMA DISPONIBILITA' in palazzina di prestigio di sole 6 unità abitative: attico su due livelli (secondo e terzo piano) con terrazzo panoramico, pensato come ampliamento all'aperto degli spazi abitativi. Entrando nell'unità abitativa, si trova un'ampia zona living con soggiorno e angolo cottura, due camere da letto matrimoniali e un bagno finestrato. Attraverso una scala di design si accede al secondo piano dell'attico, che è composto da un ampio locale open space (che può essere utilizzato come terza camera, secondo soggiorno, studio, locale palestra, ecc.) dotato di predisposizione per una seconda cucina, un secondo bagno finestrato e un ampio terrazzo panoramico con vista sulle montagne, perfetto per pranzi o momenti di convivialità all'aperto. Gli appartamenti offrono spazi luminosi e ben distribuiti, ideali per soddisfare le esigenze di ogni famiglia. Sono dotati di ogni comfort moderno: riscaldamento a pavimento, ventilazione meccanica controllata, raffrescamento con split Samsung, pannelli fotovoltaici, gestione domotica avanzata, predisposizione alla fibra ottica FTTH per una connessione ultra-veloce e car charger nei box per la mobilità elettrica.
Possibilità di box singolo o doppio a partire da 20.000 euro. L 'appartamento viene venduto a RUSTICO.

Appartamento al SECONDO piano: 97 mq;
Balconi al SECONDO piano: 25 mq;
Appartamento al TERZO piano: 48 mq;
Terrazzo panoramico al TERZO piano: 48 mq.

Ampia scelta di capitolato per le eventuali finiture. PRENOTA UN APPUNTAMENTO. Ti aspettiamo in sede.

Grazie al bonus sismico, l'acquirente può detrarre fino a un massimo di 48.000 euro in sede di dichiarazione IRPEF. Le immagini sono fornite solo a scopo illustrativo e non costituiscono un elemento contrattuale. "VENDITA DIRETTA DAL COSTRUTTORE, NO PROVVIGIONI, NO COLLABORAZIONI CON AGENZIE". Per ulteriori informazioni tecniche, contattare l'indirizzo email: imperiumcostruzioni@pec.it.

LEGGI TUTTO

CONDIVIDI SUI SOCIAL

DATI PRINCIPALI

Riferimento
130381
Contratto
Vendita
Tipologia
Attico
Superficie
171 mq
Locali
4
Camere da letto
2
Cucina
Angolo cottura
Bagni
2
Piano
3 °
Totale piani
4
Box/Posto auto
Doppio

CARATTERISTICHE

Ascensore

COSTI

Prezzo
€ 495.000,00
Spese condominiali
€ 100,00 / mese

EFFICIENZA ENERGETICA

Stato
Nuovo/In costruzione
Anno costruzione
2025
Riscaldamento
Autonomo
Climatizzazione
Si
Classe energetica
A4
IPE
351,00 kWh/m²a
351,00 kWh/m²a | Classe energetica A4

A4

A3

A2

A1

B

C

D

E

F

G

MAPPA

Monza comune della Bassa Brianza Centrale Sud

ANNUNCI SIMILI

VENDITA 20
€ 520.000
Attico in Vendita a Monza (Monza e Brianza)
  • Quadrilocale
  • 164 mq
  • 2 bagni
VENDITA 20
€ 520.000
Attico in Vendita a Monza (Monza e Brianza)
  • Quadrilocale
  • 164 mq
  • 2 bagni
VENDITA 20
€ 550.000
Attico in Vendita a Monza (Monza e Brianza)
  • Quadrilocale
  • 209 mq
  • 2 bagni
VENDITA 20
€ 619.000
Attico in Vendita a Monza (Monza e Brianza)
  • Più di 5 locali
  • 202 mq
  • 2 bagni