• Quadrilocale
  • 155 mq
  • 2 bagni

Attico in Vendita a Monza

MONZA - Residenza Modigliani
Palazzina di sole 6 unità immobiliari all'interno di gradevole quartiere residenziale poco trafficato, poco distante dalle principali arterie di comunicazione.
Il progetto è classe energetica A4 mediante l'utilizzo di materiali ecosostenibili, come acciaio, legno e vetro unitamente all'utilizzo di impianti tecnologici all'avanguardia, come pompa di calore alimentata dall'impianto fotovoltaico, riscaldamento autonomo a pavimento, cappotto esterno, impianto di ventilazione meccanica controllata con scambiatore di calore, predisposizione di impianto di condizionamento e di deumidificazione dell'aria.
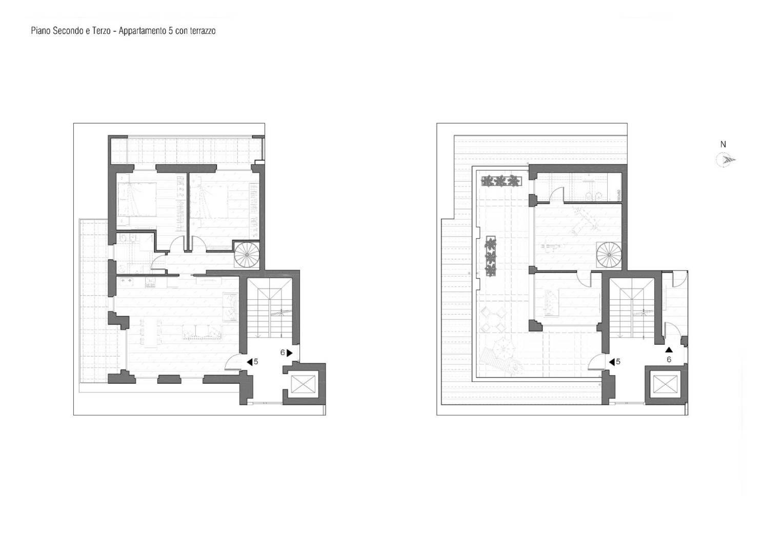
ULTIMO ATTICO di 5 locali + terrazzo Ingresso direttamente nell'ampio soggiorno con cucina a vista e accesso al terrazzo, zona notte composta da due camere da letto entrambe con balcone e servizio finestrato; scala interna o con ingresso indipendente che porta al piano superiore mansardato di circa 50 mq, composto da un secondo soggiorno, una camera da letto e servizio finestrato, tutti con accesso al terrazzo di 30 mq. Completa la proprietà la possibilità di acquistare una cantina e un box al piano interrato.
poss. scelta dei materiali (pavimenti, rivestimenti, porte, sanitari).
Detrazione irpef - detrazione pari a 48.000 € da ripartire in 10 anni. Pronta consegna
NO PROVVIGIONI VENDITA DIRETTA.

LEGGI TUTTO

CONDIVIDI SUI SOCIAL

DATI PRINCIPALI

Riferimento
128400
Contratto
Vendita
Tipologia
Attico
Superficie
155 mq
Locali
4
Camere da letto
3
Cucina
A vista
Bagni
2
Piano
3 °
Totale piani
3
Box/Posto auto
Singolo

CARATTERISTICHE

Ascensore

COSTI

Prezzo
€ 520.000,00

EFFICIENZA ENERGETICA

Stato
Nuovo/In costruzione
Anno costruzione
2024
Riscaldamento
Autonomo
Climatizzazione
Si
Classe energetica
A4
IPE
351,00 kWh/m²a
351,00 kWh/m²a | Classe energetica A4

A4

A3

A2

A1

B

C

D

E

F

G

MAPPA

Monza comune della Bassa Brianza Centrale Sud

ANNUNCI SIMILI

VENDITA 20
€ 520.000
Attico in Vendita a Monza (Monza e Brianza)
  • Quadrilocale
  • 155 mq
  • 2 bagni
VENDITA 20
€ 550.000
Attico in Vendita a Monza (Monza e Brianza)
  • Quadrilocale
  • 209 mq
  • 2 bagni
VENDITA 20
€ 820.000
Attico in Vendita a Monza, Zona Centro Storico
  • Più di 5 locali
  • 198 mq
  • 3 bagni