Ufficio con Deposito in Vendita a Brugherio (MB) VENDITA

Brugherio (Monza e Brianza)
€ 135.000
  • 2 locali
  • 224 mq
  • 1 bagno

Ufficio in Vendita a Brugherio

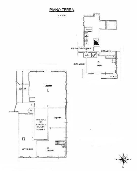
Il geom. Stefano Tronca, perito ed agente immobiliare di Siacasa Immobiliare, propone in vendita uno spazio ad uso ufficio con ampio deposito annesso a Brugherio, in provincia di Monza e Brianza.
Posizione strategica e visibilità: Situato in una zona facilmente accessibile, l'immobile gode di ottima visibilità, grazie alla sua posizione centrale con ingresso indipendente direttamente dalla strada e dal condominio.
Caratteristiche dell’immobile:
• Ufficio al piano rialzato di circa 45 mq, composto da open-space, disimpegno e bagno.
• Deposito al piano seminterrato di circa 179 mq, collegato internamente tramite scala e rampa esterna, con ulteriore accesso pedonale separato.
• Ottima disponibilità di parcheggio gratuito nelle immediate vicinanze, rendendo l’immobile comodo per clienti e dipendenti.
Stato occupazionale: Attualmente occupato dal proprietario, l’immobile sarà libero al rogito.
Questa proprietà rappresenta un'opportunità ideale per chi cerca uno spazio funzionale e strategicamente posizionato per la propria attività.
Prezzo di vendita: 135.000 Euro (immobile esente IVA in quanto intestato a persona fisica).
Per maggiori informazioni o per prenotare una visita, contattare il geom. Stefano Tronca.

LEGGI TUTTO

CONDIVIDI SUI SOCIAL

DATI PRINCIPALI

Riferimento
126809
Contratto
Vendita
Tipologia
Immobile - Ufficio
Superficie
224 mq
Locali
2
Bagni
1
Piano
Piano rialzato
Totale piani
2

CARATTERISTICHE

Ascensore

COSTI

Prezzo
€ 135.000,00

EFFICIENZA ENERGETICA

Stato
Abitabile
Anno costruzione
1967
Riscaldamento
Autonomo
Climatizzazione
Si
Classe energetica
E
IPE
351,00 kWh/m²a

A+

A

B

C

D

351,00 kWh/m²a | Classe energetica E

E

F

G

MAPPA

Brugherio comune della Bassa Brianza Centrale Sud

ANNUNCI SIMILI

VENDITA 20
€ 285.000
Ufficio in Vendita a Monza (Monza e Brianza)
  • Più di 5 locali
  • 145 mq
  • 1 bagno