Immobile ad uso ufficio VENDITA

Via Premuda - Monza (Monza e Brianza)
€ 550.000
  • Più di 5 locali
  • 330 mq
  • 1 bagno

Ufficio in Vendita a Monza

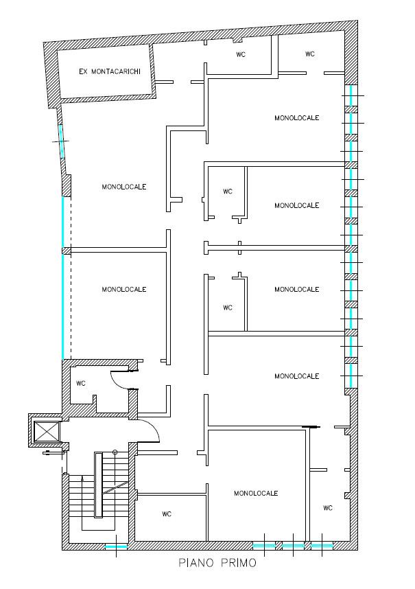
Possibilità CAMBIO DESTINAZIONE D'USO AD ABITATIVO. Nelle immediate vicinanze del centro storico di Monza ,in contesto commerciale, proponiamo in vendita immobile ad uso uffici di mq.330, internamente l'immobile è da ristrutturare. Tra le varie possibilità di Utilizzo vi è la possibilità di trasformare l'immobile in un B&B con otto monolocali con Bagno. Libero subito.

CONDIVIDI SUI SOCIAL

DATI PRINCIPALI

Riferimento
133158
Contratto
Vendita
Tipologia
Immobile - Ufficio
Superficie
330 mq
Locali
Più di 5
Bagni
1
Piano
1 °
Totale piani
4

CARATTERISTICHE

Ascensore Allarme

COSTI

Prezzo
€ 550.000,00

EFFICIENZA ENERGETICA

Stato
Abitabile
Anno costruzione
1980
Riscaldamento
Autonomo
Climatizzazione
Si
Classe energetica
G
IPE
175,00 kWh/m²a

A+

A

B

C

D

E

F

175,00 kWh/m²a | Classe energetica G

G

MAPPA

Monza comune della Bassa Brianza Centrale Sud

ANNUNCI SIMILI

VENDITA 15
€ 319.000
Ufficio in Vendita a Muggiò (Monza e Brianza)
  • Più di 5 locali
  • 504 mq
  • 3 bagni