MONZA - SAN CARLO/FS: ufficio di 146 in contesto signorile VENDITA

Piazza Generale Armando Diaz 1 - Monza (Monza e Brianza)
€ 340.000
  • Più di 5 locali
  • 146 mq
  • 1 bagno

Ufficio in Vendita a Monza

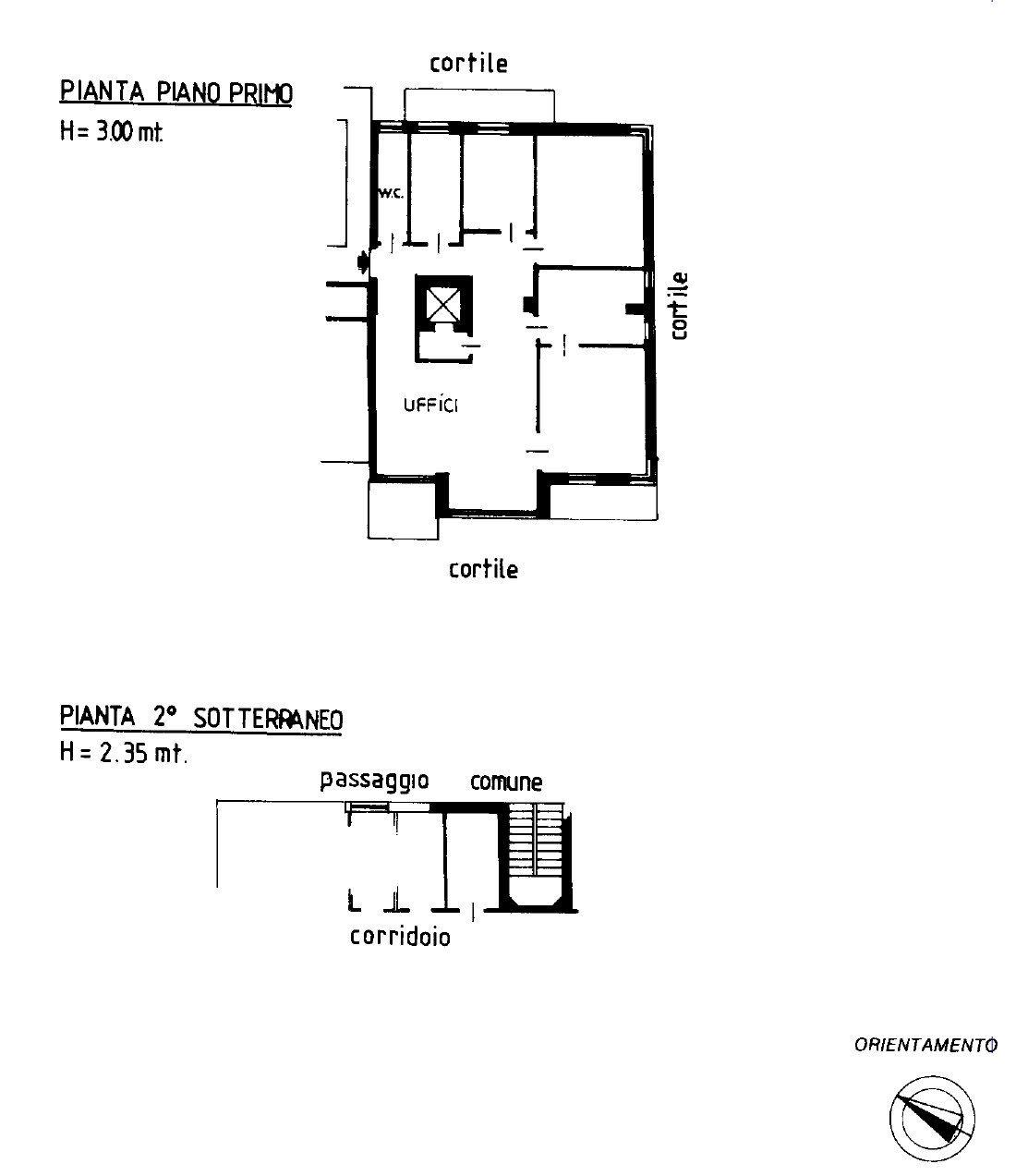
MONZA - SAN CARLO: in uno stabile signorile in PIAZZA DIAZ 1, ROYAL IMMOBILI & INVESTIMENTI propone un elegante ufficio di 146 mq.
L'immobile è inserito al primo piano di un contesto condominiale degli anni '70 dotato di portineria full time e doppio ascensore.
Si compone di doppio ingresso, zona accoglienza/reception, 5 vani ad uso ufficio, 3 balconi ed un bagno. Internamente è in buono stato manutentivo con pavimenti in legno posato su marmo, serramenti PVC - doppio vetri, impianto di aria condizionata, tapparelle elettriche, porta blindata e doppio ingresso.
Completa la proprietà una cantina di pertinenza.
Ideale per studi professionali e/o di rappresentanza, studi medici o uffici.
LIBERO SUBITO.

LEGGI TUTTO

CONDIVIDI SUI SOCIAL

DATI PRINCIPALI

Riferimento
131966
Contratto
Vendita
Tipologia
Immobile - Ufficio
Superficie
146 mq
Locali
5
Bagni
1
Piano
1 °
Totale piani
6

CARATTERISTICHE

Ascensore

COSTI

Prezzo
€ 340.000,00
Spese condominiali
€ 670,00 / mese

EFFICIENZA ENERGETICA

Stato
Abitabile
Anno costruzione
1970
Riscaldamento
Centralizzato
Climatizzazione
Si
Classe energetica
G
IPE
270,03 kWh/m²a

A+

A

B

C

D

E

F

270,03 kWh/m²a | Classe energetica G

G

MAPPA

Monza comune della Bassa Brianza Centrale Sud

ANNUNCI SIMILI

VENDITA 18
€ 550.000
Ufficio in Vendita a Monza (Monza e Brianza)
  • Più di 5 locali
  • 330 mq
  • 1 bagno
VENDITA 20
€ 335.000
Ufficio in Vendita a Monza, Zona Parco
  • Più di 5 locali
  • 165 mq
  • 1 bagno
VENDITA 15
€ 319.000
Ufficio in Vendita a Muggiò (Monza e Brianza)
  • Più di 5 locali
  • 504 mq
  • 3 bagni
VENDITA 20
€ 216.000
Ufficio in Vendita a Concorezzo (Monza e Brianza)
  • Più di 5 locali
  • 160 mq
  • 2 bagni
VENDITA 7
€ 330.000
Ufficio in Vendita a Concorezzo (Monza e Brianza)
  • Più di 5 locali
  • 285 mq
  • 2 bagni