PAINA GIUSSANO TRELOCALI RISTRUTTURATO A NUOVO SENZA SPESE VENDITA

Via Alessandro Manzoni - Giussano (Monza e Brianza)
€ 130.000
  • Trilocale
  • 50 mq
  • 1 bagno

Appartamento in Vendita a Giussano

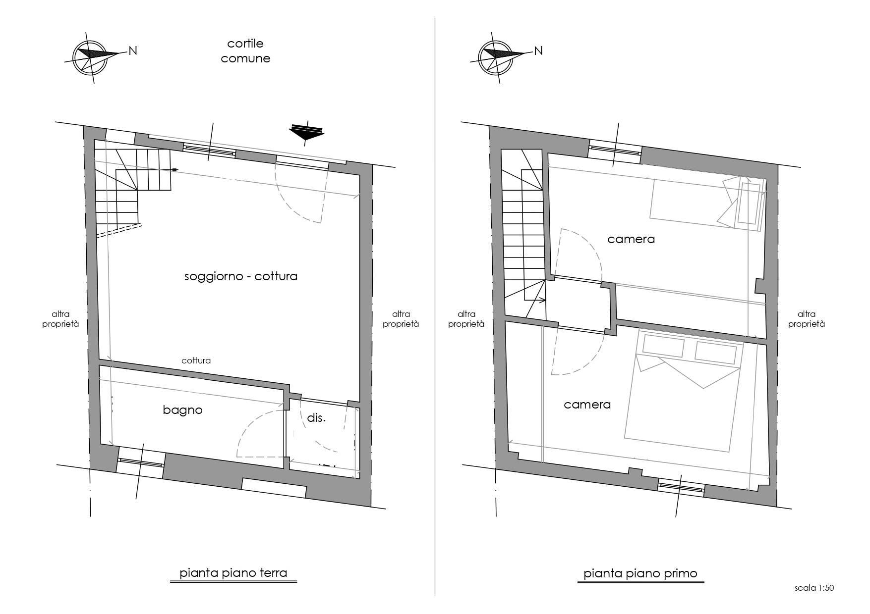
**Appartamento in Vendita a Paina di Giussano - Rif. GIUSSANO T. 299**

Scopri questo incantevole appartamento terracielo situato nel cuore di Paina di Giussano, perfetto per chi cerca un'abitazione moderna e completamente ristrutturata. Con una superficie commerciale di 50 m², l'immobile si sviluppa su due livelli, offrendo un'ottima distribuzione degli spazi. Al piano terra, trovi un luminoso soggiorno con angolo cottura, un disimpegno e un bagno elegante. Al primo piano, la zona notte è composta da una camera matrimoniale e una camera singola, ideale per famiglie o per ospitare amici.

Le finiture sono di alta qualità, con infissi in PVC a doppio vetro che garantiscono un'ottima efficienza energetica e comfort. Inoltre, l'appartamento è dotato di predisposizione per aria condizionata e antifurto, assicurando la massima sicurezza e comodità. Non ci sono spese condominiali, rendendo questa offerta ancora più interessante.

Il prezzo di vendita è di soli 130.000 euro, un'opportunità da non perdere per chi desidera vivere in una zona tranquilla ma ben collegata. La classe energetica C garantisce un consumo energetico contenuto, perfetto per chi è attento all'ambiente. Non aspettare oltre, contattaci per organizzare una visita e scoprire il tuo nuovo nido! (Rif. GIUSSANO T.299)

LEGGI TUTTO

CONDIVIDI SUI SOCIAL

DATI PRINCIPALI

Riferimento
128589
Contratto
Vendita
Tipologia
Appartamento
Superficie
50 mq
Locali
3
Camere da letto
2
Cucina
Angolo cottura
Bagni
1
Piano
Piano terra
Totale piani
1

CARATTERISTICHE

Ascensore

COSTI

Prezzo
€ 130.000,00

EFFICIENZA ENERGETICA

Stato
Ristrutturato
Anno costruzione
2025
Riscaldamento
Autonomo
Climatizzazione
Predisposizione
Classe energetica
C
IPE
351,00 kWh/m²a

A+

A

B

351,00 kWh/m²a | Classe energetica C

C

D

E

F

G

MAPPA

Giussano comune della Bassa Brianza Centrale Nord

ANNUNCI SIMILI

VENDITA 20
€ 145.000
Appartamento in Vendita a Giussano (Monza e Brianza)
  • Trilocale
  • 90 mq
  • 1 bagno
VENDITA 20
€ 118.000
Appartamento in Vendita a Giussano (Monza e Brianza)
  • Trilocale
  • 80 mq
  • 1 bagno
VENDITA 20
€ 275.000
Appartamento in Vendita a Giussano (Monza e Brianza)
  • Quadrilocale
  • 186 mq
  • 2 bagni