ATTICO di 113mq con TERRAZZO! VENDITA

Via Montello - Giussano (Monza e Brianza)
€ 245.000
  • Trilocale
  • 125 mq
  • 2 bagni

Appartamento in Vendita a Giussano

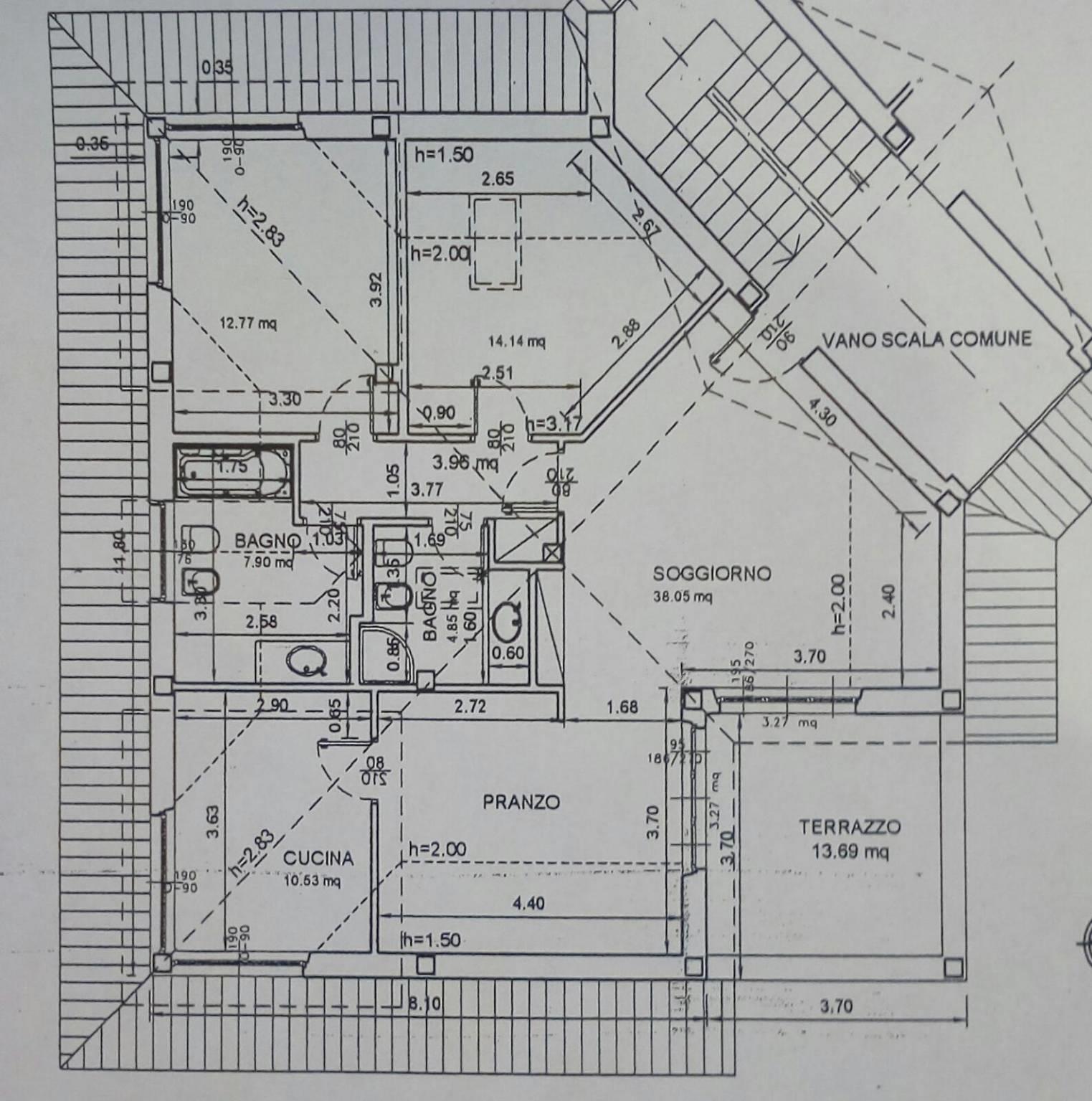
GIUSSANO frazione Paina, zona residenziale ma allo stesso tempo comoda con tutti i principali servizi. In piccola palazzina di solo 6 unità abitative, tutta rifinita mattoni a vista, posto al piano secondo, senza ascensore, fantastico ATTICO di 113mq, tutto travi a vista, composto da: ingresso, soggiorno, sala da pranzo, cucina abitabile, disimpegno, doppi servizi finestrati, 2 ampie camere e TERRAZZO di 14mq.
Completa la soluzione cantina e posto auto di proprietà.
Termoautonomo con basse spese condominiali (circa € 800 annue)
Predisposizione dell'aria condizionata.
Caldaia sostituita Settembre 2025!
Ottime finiture!
Assolutamente da vedere!

LEGGI TUTTO

CONDIVIDI SUI SOCIAL

DATI PRINCIPALI

Riferimento
129984
Contratto
Vendita
Tipologia
Appartamento
Superficie
125 mq
Locali
3
Camere da letto
2
Cucina
Abitabile
Bagni
2
Piano
2 °
Totale piani
2
Box/Posto auto
Singolo

CARATTERISTICHE

Ascensore

COSTI

Prezzo
€ 245.000,00

EFFICIENZA ENERGETICA

Stato
Abitabile
Anno costruzione
2008
Riscaldamento
Autonomo
Climatizzazione
Predisposizione
Classe energetica
D
IPE
135,39 kWh/m²a

A+

A

B

C

135,39 kWh/m²a | Classe energetica D

D

E

F

G

MAPPA

Giussano comune della Bassa Brianza Centrale Nord

ANNUNCI SIMILI

VENDITA 20
€ 145.000
Appartamento in Vendita a Giussano (Monza e Brianza)
  • Trilocale
  • 90 mq
  • 1 bagno
VENDITA 20
€ 118.000
Appartamento in Vendita a Giussano (Monza e Brianza)
  • Trilocale
  • 80 mq
  • 1 bagno