TRILOCALE CON TAVERNA, GIARDINO E BOX DOPPIO VENDITA

Via Padova - Giussano (Monza e Brianza)
€ 335.000
  • Trilocale
  • 145 mq
  • 2 bagni

Appartamento in Vendita a Giussano

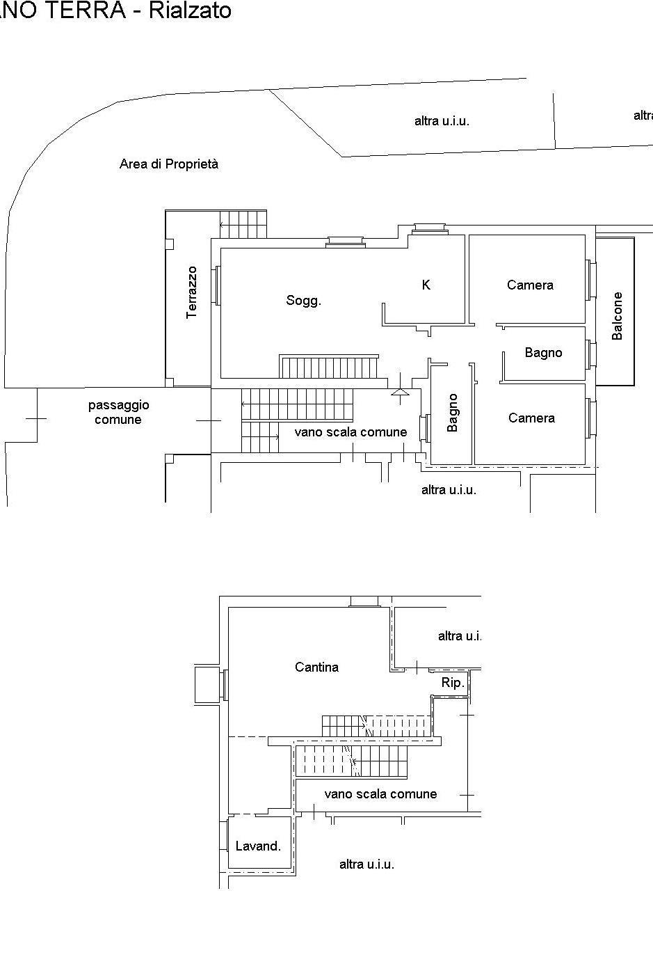
Giussano: A pochi passi da Perticato e al confine con Seregno, proponiamo in vendita un elegante appartamento di 145 mq con giardino privato di 150 mq libero su due lati, situato in una palazzina del 2009 composta da sole sei unità abitative e rifinita con mattoncino a vista.
L’abitazione gode di ingresso indipendente dal giardino ed è composta da un ampio soggiorno con cucina a vista con affaccio su un terrazzino, disimpegno, due camere da letto di cui una con balcone e doppi servizi finestrati.
Dal soggiorno, tramite una comoda scala, si accede alla spaziosa taverna, completa di locale lavanderia e di un ulteriore ambiente con predisposizione per una seconda cucina.
L’immobile è collegato internamente al box doppio in lunghezza.
Dotazioni: riscaldamento a pavimento, tende da sole, aria condizionata nella zona giorno e notte, tapparelle elettriche e videocitofono.
Da vedere!
BOX DOPPIO A € 25.000,00
*
*
Stai pensando di vendere o affittare il tuo immobile? Siamo al tuo fianco nel momento più importante: la valutazione…affidati a noi per una stima gratuita e non impegnativa. Scopri quale mutuo puoi richiedere e con i nostri consulenti del credito Monety, ti accompagniamo in ogni fase della ricerca del finanziamento più idoneo alle tue esigenze: un processo delicato che spesso richiede del tempo, snellito dalla supervisione di un team professionale ed esperto. Il nostro team di consulenti del credito lavora in collaborazione con diverse banche e istituti finanziari, così da individuare sempre le migliori opzioni di finanziamento disponibili sul mercato. Gabetti Franchising Agency è un brand capace di rinnovarsi ed emergere per fronteggiare i rapidi cambiamenti del mercato immobiliare, attraverso la riconosciuta professionalità dei suoi imprenditori concretizza e applica i valori della tradizione, della società e dell'affidabilità, coniugandoli con quelli della modernità, dell'innovazione e del dinamismo.

LEGGI TUTTO

CONDIVIDI SUI SOCIAL

DATI PRINCIPALI

Riferimento
131326
Contratto
Vendita
Tipologia
Appartamento
Superficie
145 mq
Locali
3
Camere da letto
2
Cucina
A vista
Bagni
2
Piano
Piano terra
Totale piani
2
Box/Posto auto
Doppio

CARATTERISTICHE

Ascensore

COSTI

Prezzo
€ 335.000,00
Spese condominiali
€ 360,00 / mese

EFFICIENZA ENERGETICA

Stato
Abitabile
Anno costruzione
2009
Riscaldamento
Centralizzato
Climatizzazione
Predisposizione
Classe energetica
E
IPE
175,00 kWh/m²a

A+

A

B

C

D

175,00 kWh/m²a | Classe energetica E

E

F

G

MAPPA

Giussano comune della Bassa Brianza Centrale Nord

ANNUNCI SIMILI

VENDITA 20
€ 145.000
Appartamento in Vendita a Giussano (Monza e Brianza)
  • Trilocale
  • 90 mq
  • 1 bagno
VENDITA 20
€ 275.000
Appartamento in Vendita a Giussano (Monza e Brianza)
  • Quadrilocale
  • 186 mq
  • 2 bagni
VENDITA 20
€ 118.000
Appartamento in Vendita a Giussano (Monza e Brianza)
  • Trilocale
  • 80 mq
  • 1 bagno