OTTIMO 3 LOCALI CON GIARDINO A TAVERNERIO VENDITA

Via alle Selve 141/43 - Tavernerio (Como)
€ 247.000
  • Trilocale
  • 76 mq
  • 1 bagno

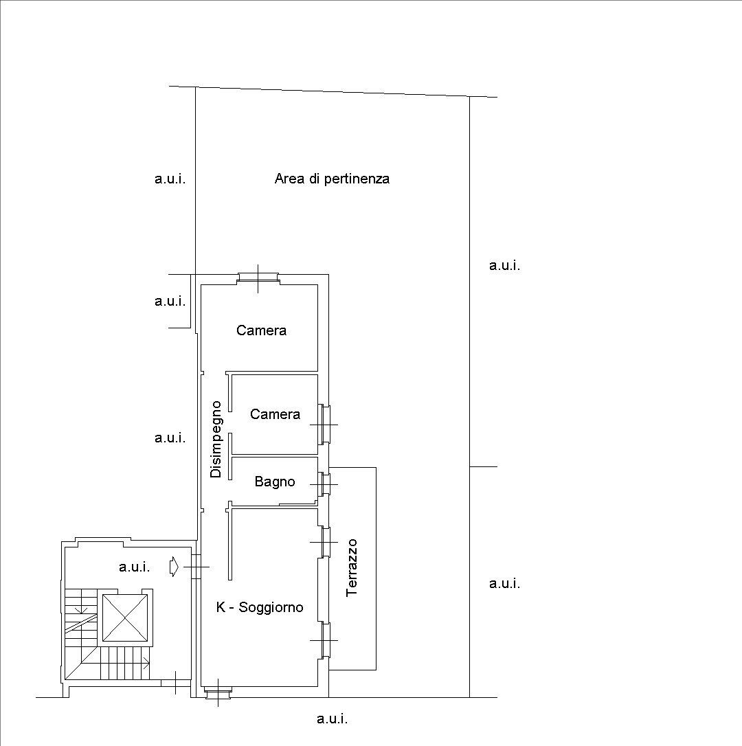
Appartamento in Vendita a Tavernerio

TAVERNERIO – Ottimo trilocale, inserito in un contesto residenziale accogliente e molto curato, in zona verde e tranquilla.
L’appartamento, circondato da un gradevole e sfruttabile giardino privato, si presenta in ottime condizioni ed è così composto: ingresso, soggiorno con cucina a vista e uscita sul giardino, disimpegno, bagno con sanitari sospesi, cameretta e camera matrimoniale con accesso al giardino.
Completa la proprietà un ampio box.
Tra i plus dell’immobile troviamo: impianto di irrigazione, zanzariere, impianto d’allarme e possibilità di avere l’arredamento compreso nel prezzo.
Ottima soluzione per chi desidera uno spazio esterno dove godersi momenti di relax e un trilocale pronto da abitare, senza alcun lavoro da effettuare.
Da vedere! € 247.000 – Classe energetica D Ep gl nren 172,69. Consegna novembre 2026.
Le informazioni qui riportate sono da ritenersi puramente indicative e non costituiscono elemento contrattuale.

LEGGI TUTTO

CONDIVIDI SUI SOCIAL

DATI PRINCIPALI

Riferimento
131722
Contratto
Vendita
Tipologia
Appartamento
Superficie
76 mq
Locali
3
Camere da letto
2
Cucina
A vista
Bagni
1
Piano
Piano terra
Totale piani
2
Box/Posto auto
Doppio

CARATTERISTICHE

Ascensore

COSTI

Prezzo
€ 247.000,00
Spese condominiali
€ 125,00 / mese

EFFICIENZA ENERGETICA

Stato
Abitabile
Anno costruzione
2009
Riscaldamento
Centralizzato
Classe energetica
D
IPE
172,69 kWh/m²a

A+

A

B

C

172,69 kWh/m²a | Classe energetica D

D

E

F

G

MAPPA

Tavernerio comune dell'Alta Brianza Comasca

ANNUNCI SIMILI