TAVERNERIO CLASSE PROPOSTA TRILOCALE VENDITA

VIA PRIMO MAGGIO - Tavernerio (Como)
€ 254.000
  • Trilocale
  • 88 mq
  • 1 bagno

Appartamento in Vendita a Tavernerio

A SOLI 4 KM DA COMO !!!! BB STUDIO SAS: sempre attenta alle esigenze di mercato, presenta appartamenti di pregio nel nuovo complesso GREEN a Tavernerio.
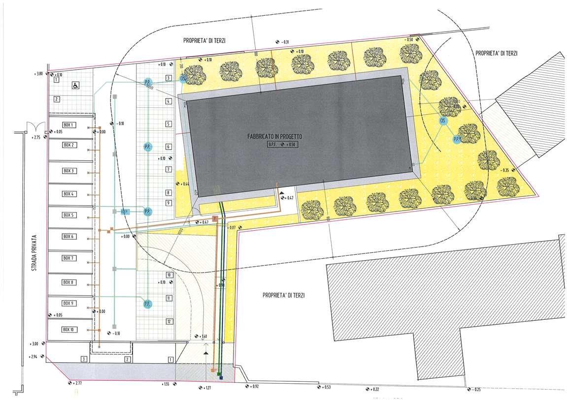
COMPLESSO RESIDENZIALE "PRIMO MAGGIO"
Situato a breve distanza dal centro, comodo per tutti i servizi e ben collegato, il complesso si sviluppa su una minipalazzina di tre piani con ascensore, composta da 11 unità abitative oltre ad autorimesse e posti auto. Gli appartamenti, tecnologicamente avanzati, offrono diverse metrature e disposizioni per soddisfare ogni esigenza abitativa.
IL COMFORT E LA MODERNITA': La modernità delle linee architettoniche pongono in risalto le scelte progettuali, con particolare attenzione al comfort ambientale.
La ricercata qualità dei materiali all'avanguardia e l'attenzione alla sostenibilità ambientale, consentono di costruire immobili in classe "A3".
CARATTERISTICHE PRINCIPALI: Impianto fotovoltaico centralizzato, Climatizzazione invernale/estiva (estiva solo predisposizione), termoarredi nei bagni, riscaldamento a pavimento, impianto videocitofonico, impianto TV-SAT centralizzato, interruttori e placche Bticino Living
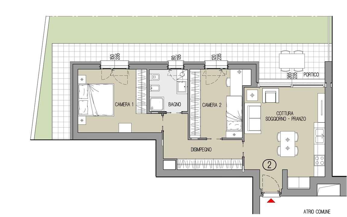
PROPOSTA TRILOCALE PIANO TERRA CON GIARDINO 02: soggiorno, cucina a vista , disimpegno, camera matrimonaile, seconda camera, bagno, Portico e giardino privato. Prezzo comprensivo di autorimessa e posto auto privato: €. 254.000,00

LEGGI TUTTO

CONDIVIDI SUI SOCIAL

DATI PRINCIPALI

Riferimento
131816
Contratto
Vendita
Tipologia
Appartamento
Superficie
88 mq
Locali
3
Camere da letto
2
Cucina
Angolo cottura
Bagni
1
Piano
Piano terra
Box/Posto auto
Singolo

CARATTERISTICHE

Ascensore

COSTI

Prezzo
€ 254.000,00

EFFICIENZA ENERGETICA

Classe energetica
A3
IPE
12,75 kWh/m²a

A4

12,75 kWh/m²a | Classe energetica A3

A3

A2

A1

B

C

D

E

F

G

MAPPA

Tavernerio comune dell'Alta Brianza Comasca

ANNUNCI SIMILI

VENDITA
€ 105.000
Appartamento in Vendita a Tavernerio (Como)
  • Trilocale
  • 75 mq
  • 1 bagno
VENDITA 16
€ 160.000
Appartamento in Vendita a Tavernerio (Como)
  • Trilocale
  • 108 mq
  • 1 bagno