Appartamento in centro paese con box doppio e cantina VENDITA

Via Provinciale - Tavernerio (Como)
€ 165.000
  • Trilocale
  • 95 mq
  • 1 bagno

Appartamento in Vendita a Tavernerio

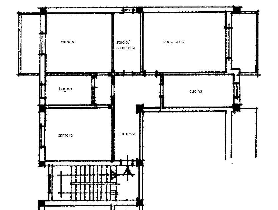
Tavernerio, zona centrale, comoda con scuole, negozi e mezzi pubblici, proponiamo ampio appartamento molto luminoso, recentemente ristrutturato con sostituzione di serramenti e pavimenti. L'appartamento è posto al secondo piano ed è composto da ingresso, ampio e luminoso soggiorno con balcone, cucina separata abitabile, due comode camere matrimoniali con un secondo balcone, bagno finestrato con doccia e uno studio al momento adibita a cameretta .
Completano la proprietà una cantina al piano seminterrato e un garage doppio in lunghezza al piano terra, inclusi nel prezzo.

Soluzione ideale per chi cerca spazi generosi, luce naturale e comodità ai servizi.

LEGGI TUTTO

CONDIVIDI SUI SOCIAL

DATI PRINCIPALI

Riferimento
131693
Contratto
Vendita
Tipologia
Appartamento
Superficie
95 mq
Locali
3
Camere da letto
2
Cucina
Abitabile
Bagni
1
Piano
2 °
Totale piani
3
Box/Posto auto
Doppio

CARATTERISTICHE

Ascensore

COSTI

Prezzo
€ 165.000,00
Spese condominiali
€ 150,00 / mese

EFFICIENZA ENERGETICA

Stato
Abitabile
Riscaldamento
Centralizzato
Classe energetica
F
IPE
196,52 kWh/m²a

A+

A

B

C

D

E

196,52 kWh/m²a | Classe energetica F

F

G

MAPPA

Tavernerio comune dell'Alta Brianza Comasca

ANNUNCI SIMILI