libero termoautonomo VENDITA

via puecher - Cantù (Como)
€ 115.000
  • Trilocale
  • 100 mq
  • 1 bagno

Appartamento in Vendita a Cantù

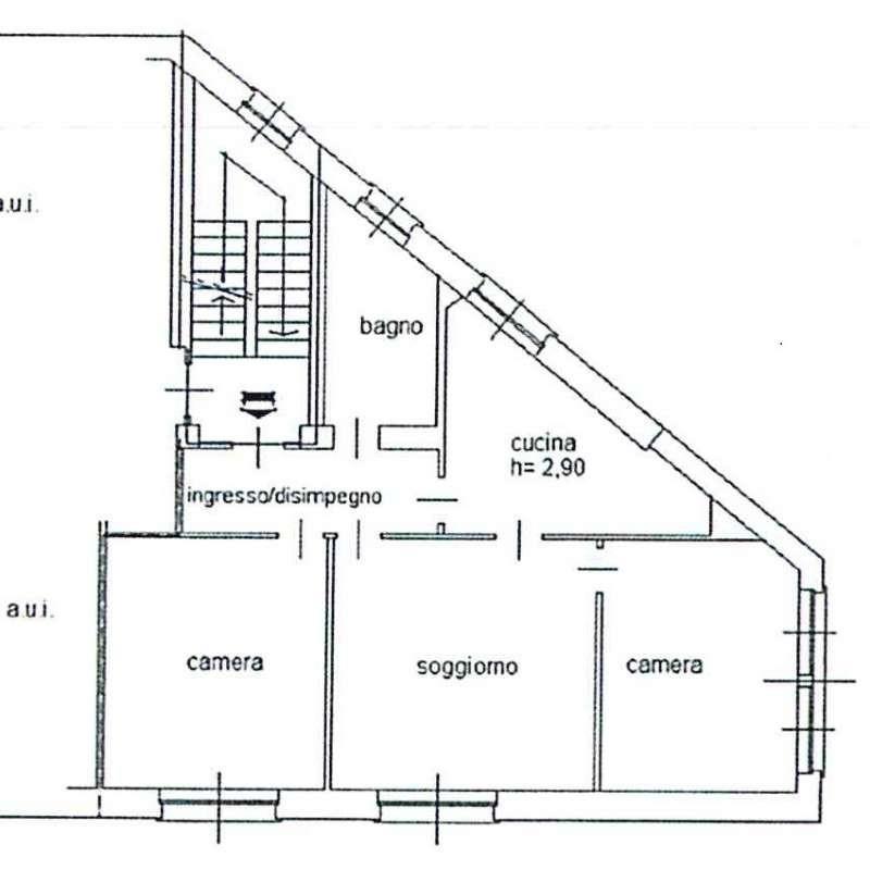
Proprio in centro a Cantù via puecher in piccola palazzina senza spese libera soluzione al secondo piano di oltre 100 m² composta da ingresso, cucina abitabile, grande salone, bagno padronale e due camere matrimoniali. Parzialmente Arredato, termoautonomo con €. 400 di spese annue. Serramenti in alluminio doppi vetri, cucina arredata, Ampia cantina al piano interrato. Libero sui tre lati, luminosissimo. Possibilità di visite previo appuntamento telefonico al 335.8396004.

Consulenza ed assistenza tecnico legale sino alla stipula del Rogito Notarile.
Valutazioni GRATUITE SENZA IMPEGNO Servizio FOTOGRAFICO Inserzioni pubblicitarie sui maggiori portali di settore e riviste Associati F.I.M.A.A. Como. Note: Le informazioni presenti nelle schede immobili non costituiscono alcuna forma di contratto, tutte le informazioni contenute negli annunci sono da ritenersi del tutto indicative e non potranno essere utilizzate come parte integrante in un eventuale contratto di vendita o locazione della proprietà e non vincolano in alcun modo la società Gruppo Servizi Immobiliari.

NOTA: Si avvertono i Signori clienti che gli indirizzi inseriti all'interno dell'annuncio sono indicativi e non rispecchiano la realtà. Questa, vuole essere un ausilio nell'indicazione della zona pur rispettando la Privacy dei venditori. Ulteriori chiarimenti possono essere forniti presso la nostra sede o telefonicamente.

TUTTE LE INFO IN AGENZIA! Venite a trovarci in agenzia, il nostro personale esperto e qualificato vi aiuterà a trovare l'immobile giusto per le vostre esigenze. Offriamo anche consulenza finanziaria con mediatori creditizi abilitati, e preventiva verifica catastale e urbanistica con tecnici professionisti

LEGGI TUTTO

CONDIVIDI SUI SOCIAL

DATI PRINCIPALI

Riferimento
129313
Contratto
Vendita
Tipologia
Appartamento
Superficie
100 mq
Locali
3
Camere da letto
2
Cucina
Abitabile
Bagni
1
Piano
Piano rialzato
Totale piani
3

CARATTERISTICHE

Ascensore

COSTI

Prezzo
€ 115.000,00

EFFICIENZA ENERGETICA

Stato
Abitabile
Anno costruzione
1957
Riscaldamento
Autonomo
Classe energetica
G
IPE
175,00 kWh/m²a

A+

A

B

C

D

E

F

175,00 kWh/m²a | Classe energetica G

G

MAPPA

Cantù comune della Bassa Brianza Comasca

ANNUNCI SIMILI

VENDITA 20
€ 189.000
Appartamento in Vendita a Cantù (Como)
  • Trilocale
  • 100 mq
  • 1 bagno
VENDITA 17
€ 170.000
Appartamento in Vendita a Cantù (Como)
  • Quadrilocale
  • 140 mq
  • 2 bagni
VENDITA 20
€ 195.000
Appartamento in Vendita a Cantù (Como)
  • Quadrilocale
  • 135 mq
  • 2 bagni
VENDITA 11
€ 109.000
Appartamento in Vendita a Cantù (Como)
  • Trilocale
  • 110 mq
  • 1 bagno
VENDITA 20
€ 130.000
Appartamento in Vendita a Cantù (Como)
  • Più di 5 locali
  • 116 mq
  • 1 bagno