TRILOCALE CON BOX IN CENTRO VENDITA

Via XI Febbraio - Cantù (Como)
€ 235.000
  • Trilocale
  • 75 mq
  • 1 bagno

Appartamento in Vendita a Cantù

Rif: 30407 - SEI ALLA RICERCA DI UN TRILOCALE DI NUOVA REALIZZAZIONE? Tempocasa Cantù ha la soluzione adatta a te!
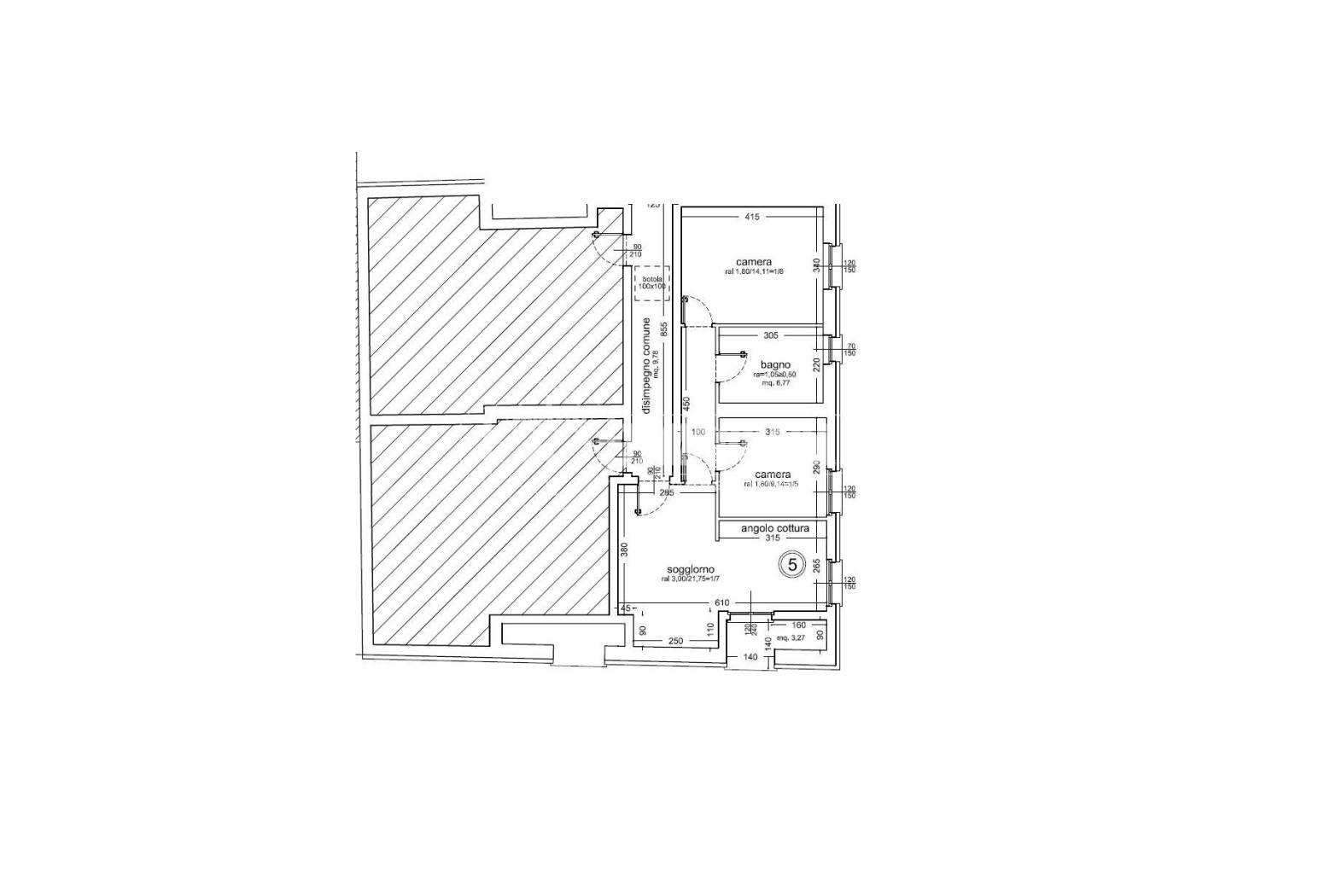
Via XI Febbraio, proponiamo in vendita un trilocale situato al primo e ultimo piano di una palazzina attualmente in fase di ristrutturazione, ideale per chi cerca una soluzione pronta da abitare in una zona ben servita e vicina al centro.
L’appartamento si apre su un ingresso che conduce all’ampio soggiorno, uno spazio funzionale e ben distribuito, pensato per garantire comodità e vivibilità quotidiana con accesso diretto al balcone. La cucina a vista è una scelta pratica per chi preferisce ambienti uniti tra zona giorno e angolo cottura.
La zona notte è composta da due camere da letto di buone dimensioni, adatte sia a una coppia con figli che a chi ha bisogno di uno studio o di una stanza in più. Il bagno è finestrato, comodo e ben illuminato naturalmente.
A completare la proprietà c’è un box auto di proprietà, un plus sempre più raro e ricercato, soprattutto in zone centrali o ben collegate.
L’immobile si trova in una posizione strategica, a pochi minuti a piedi dal centro e comodo a tutti i principali servizi: supermercati, scuole, fermate dei mezzi pubblici e attività commerciali.

La soluzione verrà consegnata in Classe A, con riscaldamento a pavimento, infissi doppio vetro PVC con apertura a battente e a ribalta, predisposizione di aria condizionata, pavimenti in ceramica, caldaia modello Baxi e pannello solare sul tetto. Copertura realizzata in lamiera grecata.
- OFFERTA CHIAVI IN MANO = € 235.000,00 oltre IVA ( prezzo appartamento + box con caratteristiche in precedenza descritto)
- OFFERTA ACQUISTO A RUSTICO + RISTRUTTURAZIONE ---> PREZZO APPARTAMENTO + BOX A GREZZO = € 75.000,00 + PREZZO RISTRUTTURAZIONE APPARTAMENTO + BOX (con caratteristiche di finitura ed impiantistiche in precedenza descritto) = 160.000,00
Possibilità di detrazione fiscale al 50% del costo della ristrutturazione ( per riqualificazione ex novo)

Per maggiori informazioni o per fissare un appuntamento di visione contattaci al numero 0312253004 oppure scrivici su WhatsApp 3482314018. Per non perdere i nostri nuovi immobili in anteprima seguici su Facebook come Tempocasa Cantù e su Instagram come tempocasacantu. Ricordiamo che la nostra agenzia è sempre disponibile per CONSULENZE DI MUTUO E CONSULENZE DI VENDITA GRATUITE e SENZA IMPEGNO.

LEGGI TUTTO

CONDIVIDI SUI SOCIAL

DATI PRINCIPALI

Riferimento
132618
Contratto
Vendita
Tipologia
Appartamento
Superficie
75 mq
Locali
3
Camere da letto
2
Cucina
Angolo cottura
Bagni
1
Piano
1 °
Totale piani
1
Box/Posto auto
Singolo

CARATTERISTICHE

Ascensore

COSTI

Prezzo
€ 235.000,00

EFFICIENZA ENERGETICA

Stato
Ristrutturato
Riscaldamento
Autonomo
Climatizzazione
Si
Classe energetica
A
IPE
250,00 kWh/m²a

A+

250,00 kWh/m²a | Classe energetica A

A

B

C

D

E

F

G

MAPPA

Cantù comune della Bassa Brianza Comasca

ANNUNCI SIMILI

VENDITA 10
€ 321.000
Appartamento in Vendita a Cantù (Como)
  • Quadrilocale
  • 90 mq
  • 2 bagni
VENDITA 17
€ 215.000
Appartamento in Vendita a Cantù (Como)
  • Trilocale
  • 96 mq
  • 1 bagno
VENDITA 18
€ 321.000
Appartamento in Vendita a Cantù (Como)
  • Quadrilocale
  • 121 mq
  • 2 bagni
VENDITA 19
€ 158.000
Appartamento in Vendita a Cantù (Como)
  • Trilocale
  • 76 mq
  • 2 bagni
VENDITA 20
€ 145.000
Appartamento in Vendita a Cantù (Como)
  • Trilocale
  • 108 mq
  • 1 bagno
VENDITA 20
€ 179.000
Appartamento in Vendita a Cantù (Como)
  • Quadrilocale
  • 145 mq
  • 2 bagni
VENDITA 16
€ 115.000
Appartamento in Vendita a Cantù (Como)
  • Trilocale
  • 100 mq
  • 1 bagno
VENDITA 17
€ 170.000
Appartamento in Vendita a Cantù (Como)
  • Quadrilocale
  • 140 mq
  • 2 bagni
VENDITA 20
€ 175.000
Appartamento in Vendita a Cantù (Como)
  • Trilocale
  • 75 mq
  • 1 bagno