QUADRILOCALE CON BOX E CANTINA VENDITA

Via Torre - Cantù (Como)
€ 195.000
  • Quadrilocale
  • 135 mq
  • 2 bagni

Appartamento in Vendita a Cantù

Rif: 40207 - SEI ALLA RICERCA DI UN QUADRILOCALE LIBERO DA SUBITO CON BOX AUTO E CANTINA? Tempocasa Cantù ha la soluzione adatta a te!
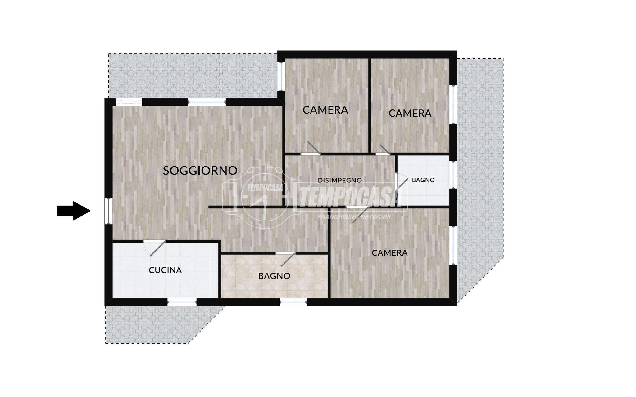
Via Torre, proponiamo in vendita un ampio quadrilocale libero da subito situato al primo piano di un contesto condominiale signorile dotato di ascensore. L'appartamento, di generose dimensioni, è composto da ingresso su zona giorno composta da soggiorno luminoso e ben disposto con accesso diretto al balcone con affaccio sul lato interno del condominio più riservato e silenzioso, una cucina separata pratica e facilmente arredabile con tutto lo spazio necessario per la quotidianità e accesso al secondo balcone con affaccio sul verde condominiale. La zona notte è composta da una camera matrimoniale ben illuminata e due camere aggiuntive, entrambe con accesso al balcone, perfette come stanze per i figli, studio o ospiti. I doppi servizi finestrati uno vicino alla matrimoniale e l’altro in corrispondenza delle due camerette e zona giorno rappresentano un plus importante per chi cerca comfort e organizzazione.
A completare questa soluzione troviamo BOX auto di proprietà, indispensabile per chi possiede più veicoli o necessita di uno spazio extra e una cantina di pertinenza utile per lo stoccaggio ordinato di oggetti, attrezzature stagionali o dispensa. ( POSSIBILITA' ACQUISTO DI UN SECONDO BOX ).
Per maggiori informazioni o per fissare un appuntamento di visione contattaci al numero 0312253004 oppure scrivici su WhatsApp 3482314018. Per non perdere i nostri nuovi immobili in anteprima seguici su Facebook come Tempocasa Cantù e su Instagram come tempocasacantu. Ricordiamo che la nostra agenzia è sempre disponibile per CONSULENZE DI MUTUO E CONSULENZE DI VENDITA GRATUITE e SENZA IMPEGNO.

LEGGI TUTTO

CONDIVIDI SUI SOCIAL

DATI PRINCIPALI

Riferimento
127608
Contratto
Vendita
Tipologia
Appartamento
Superficie
135 mq
Locali
4
Camere da letto
3
Cucina
Abitabile
Bagni
2
Piano
1 °
Totale piani
4
Box/Posto auto
Singolo

CARATTERISTICHE

Ascensore

COSTI

Prezzo
€ 195.000,00
Spese condominiali
€ 185,00 / mese

EFFICIENZA ENERGETICA

Stato
Da ristrutturare
Anno costruzione
1973
Riscaldamento
Centralizzato
Classe energetica
G
IPE
250,00 kWh/m²a

A+

A

B

C

D

E

F

250,00 kWh/m²a | Classe energetica G

G

MAPPA

Cantù comune della Bassa Brianza Comasca

ANNUNCI SIMILI

VENDITA 20
€ 130.000
Appartamento in Vendita a Cantù (Como)
  • Più di 5 locali
  • 116 mq
  • 1 bagno
VENDITA 16
€ 162.000
Appartamento in Vendita a Cantù (Como)
  • Quadrilocale
  • 110 mq
  • 2 bagni
VENDITA 17
€ 170.000
Appartamento in Vendita a Cantù (Como)
  • Quadrilocale
  • 140 mq
  • 2 bagni
VENDITA 5
€ 198.000
Appartamento in Vendita a Cantù (Como)
  • Più di 5 locali
  • 205 mq
  • 3 bagni
VENDITA 18
€ 321.000
Appartamento in Vendita a Cantù (Como)
  • Quadrilocale
  • 121 mq
  • 2 bagni
VENDITA 20
€ 229.000
Appartamento in Vendita a Cantù (Como)
  • Quadrilocale
  • 127 mq
  • 2 bagni
VENDITA 20
€ 159.000
Appartamento in Vendita a Cantù (Como)
  • Quadrilocale
  • 145 mq
  • 2 bagni