Bilocale e servizi nuova costruzione VENDITA

Via Angelo Agostoni - Lissone (Monza e Brianza)
€ 190.000
  • Bilocale
  • 60 mq
  • 1 bagno

Appartamento in Vendita a Lissone

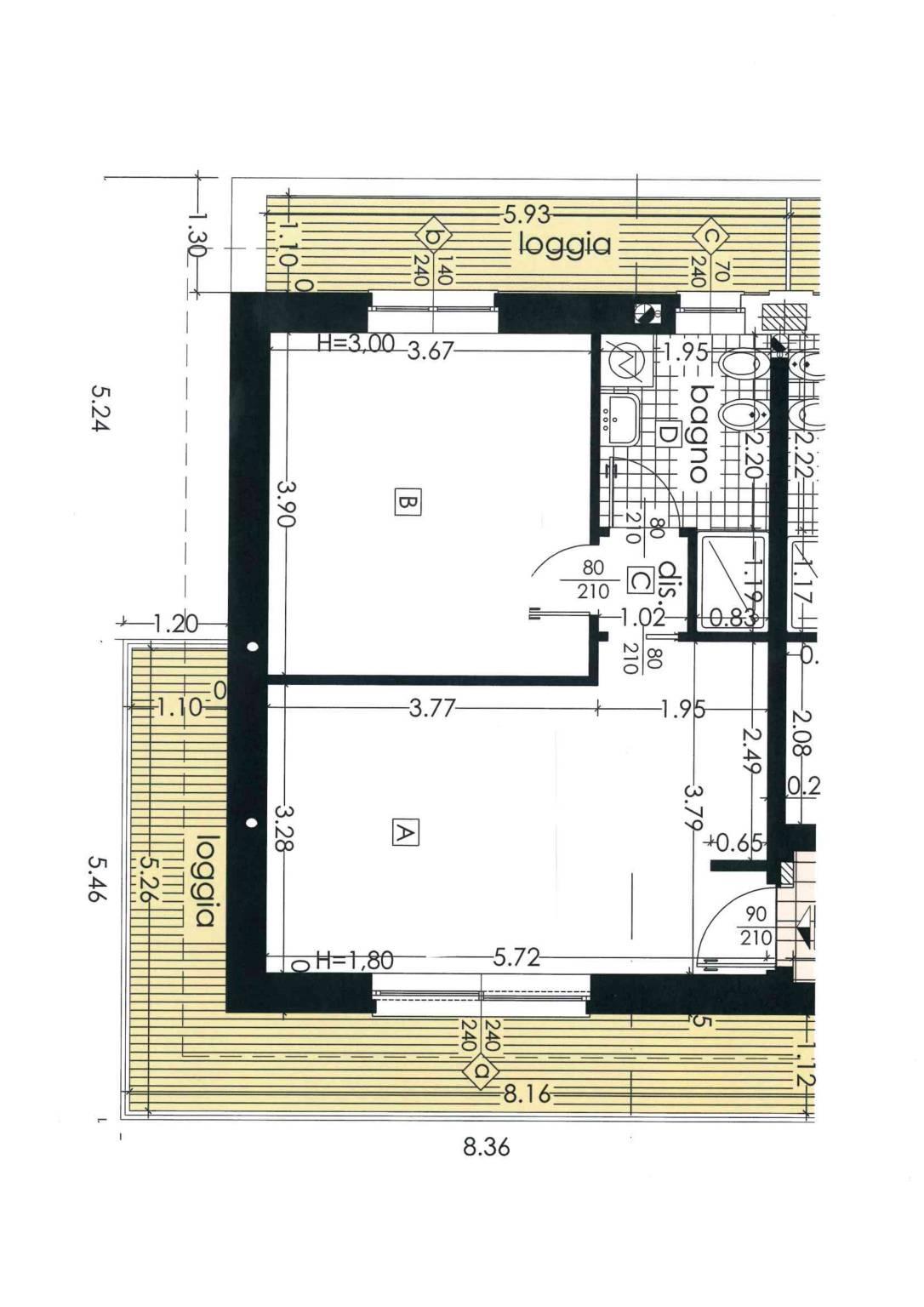
Nel centro di Lissone, in posizione comoda con tutti i principali servizi, proponiamo appartamento inserito in una signorile palazzina del 2015. L’immobile è situato al quinto e ultimo piano ed è servito da ascensore. L’abitazione, ancora da completare con possibilità di scelta del capitolato, si apre su un ingresso che conduce al soggiorno con cucina a vista, ambiente luminoso e ben distribuito, con accesso al balcone. Un disimpegno accompagna alla zona notte composta da una camera matrimoniale e da un bagno.
La proprietà è completata da una cantina inclusa nel prezzo, con possibilità di acquistare un box singolo o doppio. Tra le finiture previste troviamo la predisposizione per impianto di allarme e aria condizionata, ventilazione meccanica controllata, porta blindata e ampia possibilità di personalizzazione delle finiture interne.
Soluzione ideale per chi cerca una casa moderna, personalizzabile e inserita in un contesto elegante nel cuore della città.

LEGGI TUTTO

CONDIVIDI SUI SOCIAL

DATI PRINCIPALI

Riferimento
129588
Contratto
Vendita
Tipologia
Appartamento
Superficie
60 mq
Locali
2
Camere da letto
1
Cucina
A vista
Bagni
1
Piano
5 °
Totale piani
5
Box/Posto auto
Singolo

CARATTERISTICHE

Ascensore

COSTI

Prezzo
€ 190.000,00
Spese condominiali
€ 100,00 / mese

EFFICIENZA ENERGETICA

Stato
Nuovo/In costruzione
Anno costruzione
2015
Riscaldamento
Autonomo
Climatizzazione
Predisposizione
Classe energetica
A1
IPE
50,45 kWh/m²a

A4

A3

A2

50,45 kWh/m²a | Classe energetica A1

A1

B

C

D

E

F

G

MAPPA

Lissone comune della Bassa Brianza Centrale Sud

ANNUNCI SIMILI

VENDITA 20
€ 260.000
Appartamento in Vendita a Lissone (Monza e Brianza)
  • Bilocale
  • 84 mq
  • 1 bagno