NUOVA REALIZZAZIONE RESIDENZA "Graziella" VENDITA

Via S. Michele del Carso 16 - Lissone (Monza e Brianza)
€ 210.000
  • Bilocale
  • 64 mq
  • 1 bagno

Appartamento in Vendita a Lissone

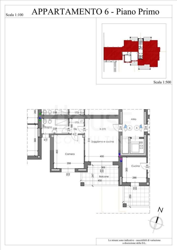
Residenza Graziella – Appartamento Rif. 6

Nel cuore di Lissone, a pochi passi dalla stazione FS e dai principali servizi, nasce un nuovo ed esclusivo progetto residenziale.
La “Residenza Graziella” propone 26 appartamenti di prossima realizzazione, da 2 e 3 locali, con ampi terrazzi o giardini privati, pensati per offrire un perfetto equilibrio tra design moderno, comfort abitativo ed efficienza energetica.

L’appartamento n. 6, situato al primo piano, è composto da:

- Ingresso su luminoso soggiorno con ampia vetrata scorrevole e accesso al terrazzino
- Cucina abitabile
- Disimpegno zona notte
- Camera matrimoniale
- Bagno

Disponibilità di box singoli a partire da € 25.000, dotati di serranda sezionale automatica con telecomando, oppure posti auto scoperti a € 15.000.

Costruzione ad alto risparmio energetico, con Classe A e dotazioni di ultima generazione:

- Riscaldamento a pavimento
- Impianto fotovoltaico per la produzione di energia elettrica delle parti comuni
- Ventilazione meccanica controllata per il ricambio continuo dell’aria
- Isolamenti termici e acustici avanzati
- Serramenti in legno con triplo vetro certificati CasaClima
- Predisposizione per antifurto perimetrale e climatizzazione
- Tapparelle motorizzate con cassonetto a scomparsa
- Porte interne con cerniere a scomparsa e serratura magnetica

Finiture di alto livello: gres porcellanato o parquet, illuminazione LED su balconi e parti comuni, porte blindate e design contemporaneo.

Soluzioni ideali anche come investimento, grazie alla posizione strategica, vicina al centro di Lissone, alla stazione ferroviaria e a tutti i principali servizi (scuole, negozi, ristoranti, supermercati).

Per informazioni:
House&Consulting Arcore – Tel. 039 6012742 – www.hcarcore.it

Le immagini hanno scopo puramente illustrativo e non costituiscono elemento contrattuale.
Le misure riportate sono indicative e possono subire variazioni in fase di realizzazione.

LEGGI TUTTO

CONDIVIDI SUI SOCIAL

DATI PRINCIPALI

Riferimento
130271
Contratto
Vendita
Tipologia
Appartamento
Superficie
64 mq
Locali
2
Camere da letto
1
Cucina
A vista
Bagni
1
Piano
1 °
Totale piani
6

CARATTERISTICHE

Ascensore

COSTI

Prezzo
€ 210.000,00

EFFICIENZA ENERGETICA

Stato
Nuovo/In costruzione
Anno costruzione
2026
Riscaldamento
Autonomo
Climatizzazione
Predisposizione
Classe energetica
A
IPE
15,00 kWh/m²a

A+

15,00 kWh/m²a | Classe energetica A

A

B

C

D

E

F

G

MAPPA

Lissone comune della Bassa Brianza Centrale Sud

ANNUNCI SIMILI