Trilocale Lissone Via Matteotti VENDITA

Via Giacomo Matteotti 1 - Lissone (Monza e Brianza)
€ 319.000
  • Trilocale
  • 110 mq
  • 2 bagni

Appartamento in Vendita a Lissone

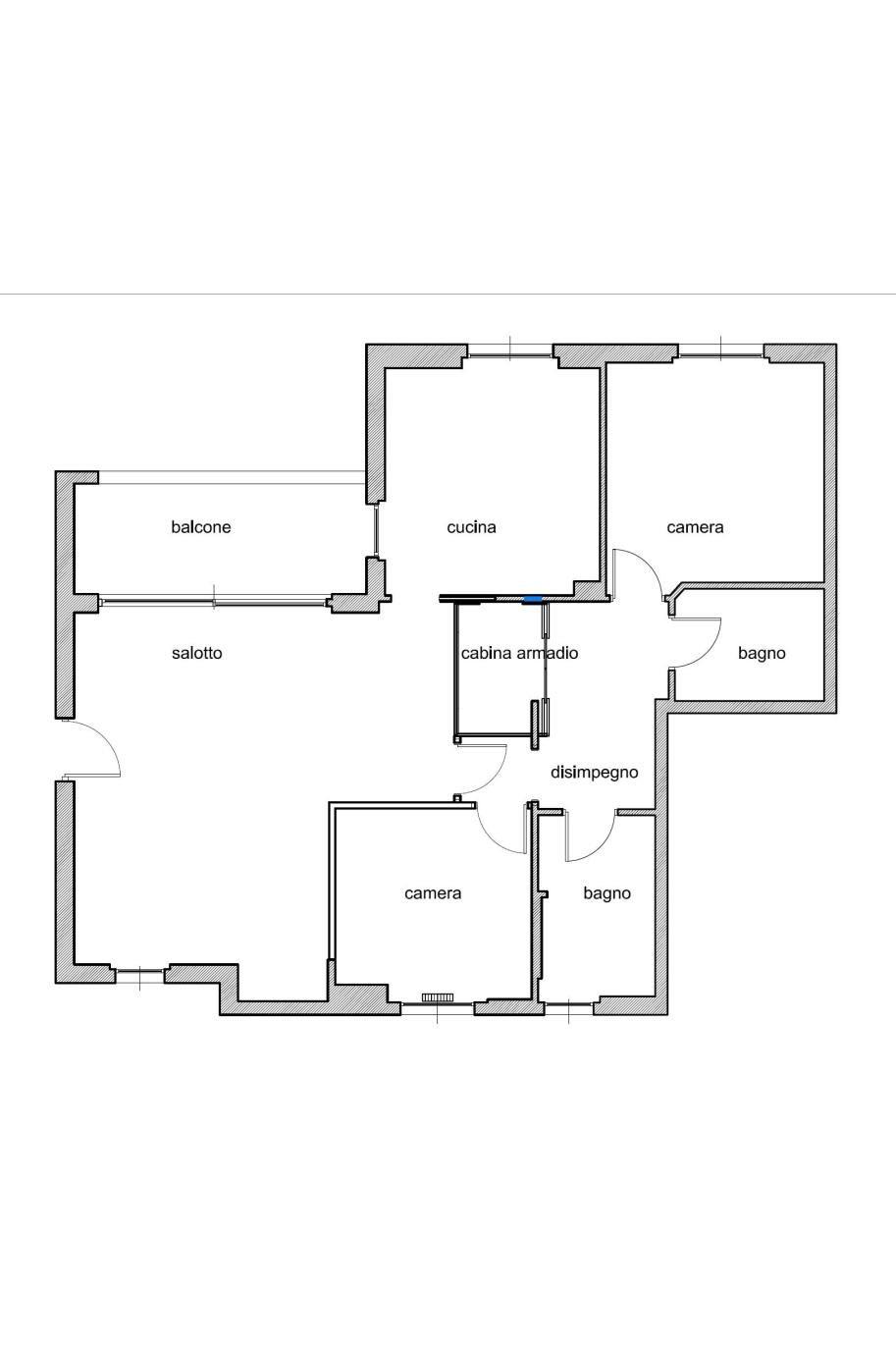
Nel cuore del centro di Lissone, a pochi passi dalla stazione ferroviaria con collegamenti diretti verso Milano, Lecco e Como, proponiamo al quinto piano un’elegante abitazione ideale per chi desidera spazi ampi, comfort e raffinatezza.
L’ingresso si apre su un luminoso soggiorno doppio, suddiviso in zona pranzo e zona relax, con accesso a un balcone terrazzato da cui si gode una vista panoramica sulla città e, nelle giornate limpide, sulle catene montuose.
La cucina abitabile, anch’essa con affaccio sul balcone, è spaziosa e funzionale.La zona notte comprende un disimpegno con cabina armadio, una camera matrimoniale, una seconda camera ideale per due figli e doppi servizi.
Completano la proprietà una comoda cantina e un ampio box singolo ampio a €30.000 oltre la possibilità di avere un secondo box a € 30.000.
L’appartamento si presenta in ottime condizioni di manutenzione, con pavimenti in parquet in tutti gli ambienti, ad eccezione di cucina e bagni.
Un’abitazione perfetta per chi cerca comfort, eleganza e una posizione strategica nel cuore della città.

LEGGI TUTTO

CONDIVIDI SUI SOCIAL

DATI PRINCIPALI

Riferimento
128707
Contratto
Vendita
Tipologia
Appartamento
Superficie
110 mq
Locali
3
Camere da letto
2
Cucina
Abitabile
Bagni
2
Piano
5 °
Totale piani
6
Box/Posto auto
Singolo

CARATTERISTICHE

Ascensore

COSTI

Prezzo
€ 319.000,00
Spese condominiali
€ 120,00 / mese

EFFICIENZA ENERGETICA

Anno costruzione
2002
Riscaldamento
Autonomo
Classe energetica
F
IPE
351,00 kWh/m²a

A+

A

B

C

D

E

351,00 kWh/m²a | Classe energetica F

F

G

MAPPA

Lissone comune della Bassa Brianza Centrale Sud

ANNUNCI SIMILI