BILOCALE CON TERRAZZO VENDITA

Via Ginevrina Fossano - Cantù (Como)
€ 119.000
  • Bilocale
  • 65 mq
  • 1 bagno

Appartamento in Vendita a Cantù

Rif: 22609 - SEI ALLA RICERCA DI UN BILOCALE CON TERRAZZO E BASSE SPESE CONDOMINIALI? Tempocasa Cantù ha la soluzione adatta a te!
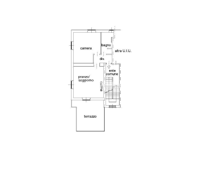
Via Ginevrina da Fossano, proponiamo in vendita ampio bilocale sito al piano primo di un piccolo contesto condominiale. La soluzione si presenta in discrete condizioni generali, adatta sia per un utilizzo diretto che come investimento da mettere a reddito.
L’ingresso si apre su un soggiorno luminoso con cucina a vista, uno spazio funzionale e ben distribuito, con accesso diretto al terrazzo, ideale per momenti di relax. La camera da letto è ampia con metrature generose che consentono una disposizione comoda dell’arredo. Il bagno finestrato, luminoso e ben disposto, garantisce la giusta areazione naturale e risulta pratico nella quotidianità. Possibilità di parcheggiare un auto, al coperto, all'interno del cortile.
L’appartamento si trova in una posizione strategica, con tutti i principali servizi a portata di mano: supermercati, fermate autobus, scuole, e altre comodità quotidiane facilmente raggiungibili a piedi.
Per maggiori informazioni o per fissare un appuntamento di visione contattaci al numero 0312253004 oppure scrivici su WhatsApp 3482314018. Per non perdere i nostri nuovi immobili in anteprima seguici su Facebook come Tempocasa Cantù e su Instagram come tempocasacantu. Ricordiamo che la nostra agenzia è sempre disponibile per CONSULENZE DI MUTUO E CONSULENZE DI VENDITA GRATUITE e SENZA IMPEGNO.

LEGGI TUTTO

CONDIVIDI SUI SOCIAL

DATI PRINCIPALI

Riferimento
132605
Contratto
Vendita
Tipologia
Appartamento
Superficie
65 mq
Locali
2
Camere da letto
1
Cucina
A vista
Bagni
1
Piano
1 °
Totale piani
2

CARATTERISTICHE

Ascensore

COSTI

Prezzo
€ 119.000,00

EFFICIENZA ENERGETICA

Stato
Abitabile
Anno costruzione
1950
Riscaldamento
Autonomo
Classe energetica
G
IPE
250,00 kWh/m²a

A+

A

B

C

D

E

F

250,00 kWh/m²a | Classe energetica G

G

MAPPA

Cantù comune della Bassa Brianza Comasca

ANNUNCI SIMILI