APPARTAMENTO PIANO TERRA 2 – RESIDENZA “SOLE E LUNA” VENDITA

Via San Francesco d'Assisi 8 - Montevecchia (Lecco)
€ 324.600
  • Trilocale
  • 114 mq
  • 2 bagni

Appartamento in Vendita a Montevecchia

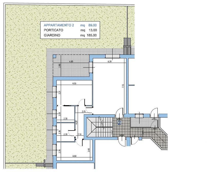
Trilocale con ampio giardino privato – 89 mq interni + 185 mq di verde esclusivo
Con una superficie interna di 89 mq, l’appartamento offre spazi generosi e ottimamente distribuiti, tutti personalizzabili secondo le esigenze dell’acquirente, grazie alla possibilità di modificare le divisioni interne.
La composizione prevede:
• Una zona giorno ampia e luminosa con cucina a vista;
• Due camere da letto comode e ben disposte;
• Due bagni finestrati, pensati per il massimo comfort quotidiano.
Esternamente, l’abitazione è valorizzata da un giardino privato di 185 mq, che si sviluppa lungo i lati nord ed ovest, garantendo luce naturale durante tutto l’arco della giornata e offrendo spazi perfetti per relax, giochi, pranzi all’aperto o semplicemente per godersi la bellezza del contesto naturale.
A completare la zona esterna, un portico coperto di 13 mq, ideale come salotto estivo o prolungamento della zona living, da vivere in ogni stagione.
La qualità della costruzione è quella che distingue l’intero intervento: Classe energetica A4, impianti di ultima generazione, pompa di calore autonoma, riscaldamento a pavimento, VMC puntuale in ogni ambiente, infissi a taglio termico-acustico di fascia alta e tapparelle motorizzate coibentate.
Incluso nel prezzo, viene offerto gratuitamente il servizio dell’architetto dello studio progettista, che accompagnerà l’acquirente nella definizione delle divisioni interne e delle finiture, trasformando l’appartamento in una casa su misura.
Contatta il nostro studio per fissare un appuntamento personalizzato: potrai visionare i progetti, approfondire ogni dettaglio impiantistico e conoscere direttamente i progettisti — nonché proprietari e realizzatori della tua futura casa.
Il tuo nuovo spazio di vita, tra natura, indipendenza e qualità.
Appartamento Piano Terra 2 – la tua casa a Montevecchia, tra natura e architettura su misura.
RESIDENZA “SOLE E LUNA” – MINI PALAZZINA DI APPARTAMENTI IN VILLA A MONTEVECCHIA (LC)
Classe energetica A4 | Comfort, natura e indipendenza
Nel cuore delle colline brianzole, nella posizione più strategica e riservata del comune di Montevecchia, nasce “Sole e Luna”, una nuova residenza di charme immersa nella quiete, tra i profumi e i colori del Parco del Curone.
Un luogo dove la luce del giorno e la tranquillità della sera si incontrano in un equilibrio perfetto — proprio come il nome suggerisce — offrendo uno stile di vita autentico e rilassato, a contatto con la natura ma a pochi minuti da ogni servizio.
La residenza è composta da una mini-palazzina di appartamenti in villa, con sole sei unità abitative pensate per chi cerca privacy, indipendenza e qualità costruttiva:
• Tre appartamenti al piano terra, ciascuno con ingresso autonomo e giardino privato, ideali per vivere gli spazi esterni in totale libertà.
• Tre appartamenti al primo piano, con tripla esposizione e ampie terrazze, per godere della luce naturale e della vista sulle colline circostanti.
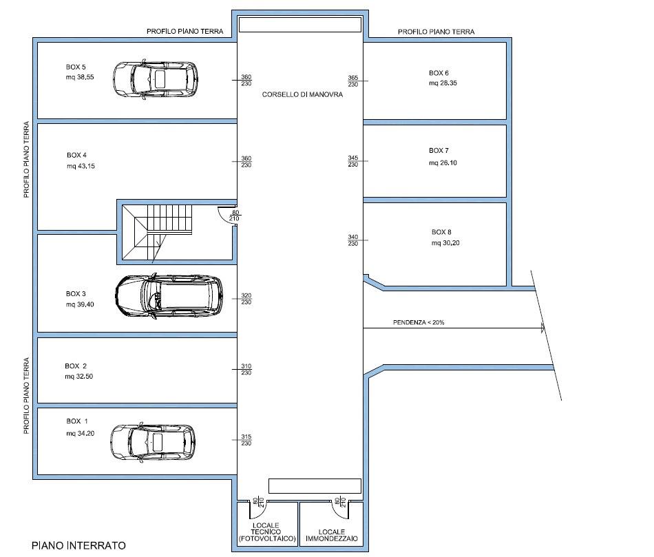
A completare la residenza, è prevista la possibilità di acquistare box autorimessa singoli di ampia metratura oppure doppi, disponibili in diverse dimensioni.
A firmare il progetto è lo stesso studio di progettazione promotore dell’iniziativa, da decenni specializzato non solo in progettazioni conto terzi, ma anche nella realizzazione diretta di mini-palazzine di alta qualità, costruite con la stessa cura che si avrebbe per la propria casa.
Caratteristiche tecniche di eccellenza – Classe A4 garantita:
• Impianto autonomo in pompa di calore, con riscaldamento a pavimento e predisposizione per il raffrescamento ad aria.
• Ventilazione Meccanica Controllata (VMC) puntuale in ogni ambiente, per un’aria sempre pulita e il giusto controllo dell’umidità.
• Infissi in PVC con taglio termico-acustico di fascia alta, montati su monoblocchi di primaria marca, con tapparelle motorizzate in alluminio coibentato.
Ogni dettaglio, ogni finitura, ogni scelta impiantistica è pensata con attenzione e passione, come se a viverci dovessimo essere noi stessi.
“Sole e Luna” è molto più di una nuova costruzione: è il tuo angolo di benessere a Montevecchia.
Propone Ivan Zorzetto

LEGGI TUTTO

CONDIVIDI SUI SOCIAL

DATI PRINCIPALI

Riferimento
126797
Contratto
Vendita
Tipologia
Appartamento
Superficie
114 mq
Locali
3
Camere da letto
2
Cucina
A vista
Bagni
2
Piano
Piano terra
Totale piani
2

CARATTERISTICHE

Ascensore

COSTI

Prezzo
€ 324.600,00

EFFICIENZA ENERGETICA

Stato
Nuovo/In costruzione
Anno costruzione
2025
Riscaldamento
Autonomo
Classe energetica
A4
IPE
351,00 kWh/m²a
351,00 kWh/m²a | Classe energetica A4

A4

A3

A2

A1

B

C

D

E

F

G

MAPPA

Montevecchia comune della Brianza Meratese

ANNUNCI SIMILI

VENDITA 16
€ 140.000
Appartamento in Vendita a Montevecchia (Lecco)
  • Trilocale
  • 105 mq
  • 1 bagno
VENDITA 20
€ 150.000
Appartamento in Vendita a Osnago (Lecco)
  • Trilocale
  • 90 mq
  • 1 bagno
VENDITA 14
€ 190.000
Appartamento in Vendita a Cernusco Lombardone (Lecco)
  • Quadrilocale
  • 120 mq
  • 2 bagni