APPARTAMENTO PIANO TERRA 1 – RESIDENZA “SOLE E LUNA” VENDITA

Via San Francesco d'Assisi 8 - Montevecchia (Lecco)
€ 316.200
  • Trilocale
  • 117 mq
  • 2 bagni

Appartamento in Vendita a Montevecchia

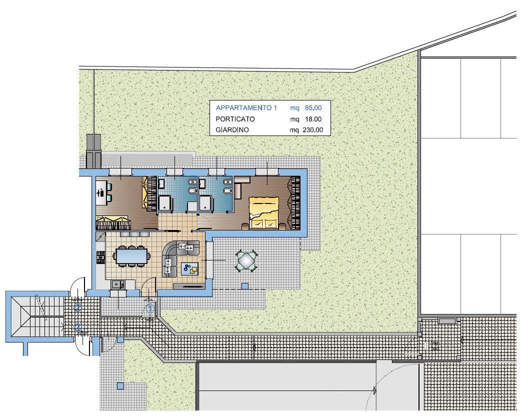
Trilocale con giardino su tre lati – 85 mq interni + 230 mq di verde privato
L'appartamento si sviluppa su una superficie interna di 85 mq, con una distribuzione funzionale degli spazi e divisioni interne completamente personalizzabili, per adattarsi alle esigenze di chi lo abiterà.
La disposizione attuale prevede:
• Una luminosissima zona giorno con cucina a vista;
• Due camere da letto ben dimensionate;
• Due bagni finestrati, eleganti e comodi.
A rendere unico questo appartamento è lo splendido giardino privato di 230 mq, che circonda la casa su tre lati (est, sud e nord), offrendo scorci di verde, spazi per pranzare all’aperto, momenti di relax e perfetta esposizione alla luce naturale durante tutto l’arco della giornata.
Completano la proprietà un portico coperto di 18 mq, ideale per pranzi estivi, zone lounge o come naturale estensione della zona living.
L’attenzione progettuale si riflette non solo nelle dotazioni impiantistiche di ultima generazione (Classe energetica A4, pompa di calore autonoma, VMC puntuale, riscaldamento a pavimento, infissi a taglio termico e tapparelle motorizzate), ma anche nella possibilità di personalizzare ogni ambiente.
Incluso nel prezzo, viene offerto gratuitamente il servizio dell’architetto dello studio progettista, che accompagnerà l’acquirente nella definizione delle divisioni interne e delle finiture, trasformando l’appartamento in una casa su misura.
Contatta il nostro studio per fissare un appuntamento personalizzato: potrai visionare i progetti, approfondire ogni dettaglio impiantistico e conoscere direttamente i progettisti — nonché proprietari e realizzatori della tua futura casa.
Il tuo nuovo spazio di vita, tra natura, indipendenza e qualità.
Appartamento Piano Terra 1 – Residenza “Sole e Luna” – Montevecchia (LC) RESIDENZA “SOLE E LUNA” – MINI PALAZZINA DI APPARTAMENTI IN VILLA A MONTEVECCHIA (LC)
Classe energetica A4 | Comfort, natura e indipendenza
Nel cuore delle colline brianzole, nella posizione più strategica e riservata del comune di Montevecchia, nasce “Sole e Luna”, una nuova residenza di charme immersa nella quiete, tra i profumi e i colori del Parco del Curone.
Un luogo dove la luce del giorno e la tranquillità della sera si incontrano in un equilibrio perfetto — proprio come il nome suggerisce — offrendo uno stile di vita autentico e rilassato, a contatto con la natura ma a pochi minuti da ogni servizio.
La residenza è composta da una mini-palazzina di appartamenti in villa, con sole sei unità abitative pensate per chi cerca privacy, indipendenza e qualità costruttiva:
• Tre appartamenti al piano terra, ciascuno con ingresso autonomo e giardino privato, ideali per vivere gli spazi esterni in totale libertà.
• Tre appartamenti al primo piano, con tripla esposizione e ampie terrazze, per godere della luce naturale e della vista sulle colline circostanti.
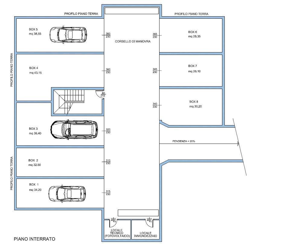
A completare la residenza, è prevista la possibilità di acquistare box autorimessa singoli di ampia metratura oppure doppi, disponibili in diverse dimensioni.
A firmare il progetto è lo stesso studio di progettazione promotore dell’iniziativa, da decenni specializzato non solo in progettazioni conto terzi, ma anche nella realizzazione diretta di mini-palazzine di alta qualità, costruite con la stessa cura che si avrebbe per la propria casa.
Caratteristiche tecniche di eccellenza – Classe A4 garantita:
• Impianto autonomo in pompa di calore, con riscaldamento a pavimento e predisposizione per il raffrescamento ad aria.
• Ventilazione Meccanica Controllata (VMC) puntuale in ogni ambiente, per un’aria sempre pulita e il giusto controllo dell’umidità.
• Infissi in PVC con taglio termico-acustico di fascia alta, montati su monoblocchi di primaria marca, con tapparelle motorizzate in alluminio coibentato.
Ogni dettaglio, ogni finitura, ogni scelta impiantistica è pensata con attenzione e passione, come se a viverci dovessimo essere noi stessi.
“Sole e Luna” è molto più di una nuova costruzione: è il tuo angolo di benessere a Montevecchia.
Propone Ivan Zorzetto

LEGGI TUTTO

CONDIVIDI SUI SOCIAL

DATI PRINCIPALI

Riferimento
126795
Contratto
Vendita
Tipologia
Appartamento
Superficie
117 mq
Locali
3
Camere da letto
2
Cucina
A vista
Bagni
2
Piano
Piano terra
Totale piani
2

CARATTERISTICHE

Ascensore

COSTI

Prezzo
€ 316.200,00

EFFICIENZA ENERGETICA

Stato
Nuovo/In costruzione
Anno costruzione
2025
Riscaldamento
Autonomo
Classe energetica
A4
IPE
351,00 kWh/m²a
351,00 kWh/m²a | Classe energetica A4

A4

A3

A2

A1

B

C

D

E

F

G

MAPPA

Montevecchia comune della Brianza Meratese

ANNUNCI SIMILI

VENDITA 16
€ 140.000
Appartamento in Vendita a Montevecchia (Lecco)
  • Trilocale
  • 105 mq
  • 1 bagno
VENDITA 20
€ 150.000
Appartamento in Vendita a Osnago (Lecco)
  • Trilocale
  • 90 mq
  • 1 bagno
VENDITA 14
€ 190.000
Appartamento in Vendita a Cernusco Lombardone (Lecco)
  • Quadrilocale
  • 120 mq
  • 2 bagni