Splendida villa singola con taverna, giardino e box doppio!! VENDITA

Via Magenta - Paderno Dugnano (Milano)
€ 649.000
  • Più di 5 locali
  • 300 mq
  • 4 bagni

Villa in Vendita a Paderno Dugnano

Rif. 198

Paderno Dugnano - Zona Palazzolo - Via Magenta

In contesto residenziale signorile, proponiamo in vendita una bellissima villa libera su 4 lati circondata da giardino privato, con taverna e box doppio!

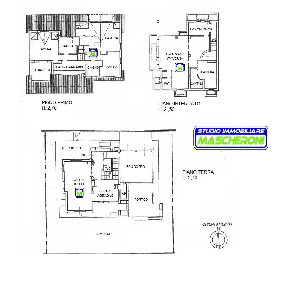
Piano Terra: ingresso, luminoso salone doppio con camino in muratura, ampia cucina abitabile, ripostiglio/dispensa (direttamente collegato con la cucina e con il box), bagno e portico. Box doppio di 31 mq. con doppia serranda e accesso dal cancello elettrico.
Piano Primo: dedicato prevalentemente alla zona notte, divisa in due aree dove nella prima troviamo 3 ampie camere da letto con un ampio bagno e leggermente sfalsata da 4/5 gradini troviamo la seconda area con una spaziosa camera matrimoniale, ampia cabina armadio, bagno con vasca idromassaggio e terrazzino privato!
Piano Seminterrato: Ampio locale open space (taverna) con camino, locale lavanderia, centrale termica, bagno e cantina.

L'immobile si presenta in ottime condizioni sia interne che esterne, gode di un bellissimo giardino che circonda tutti i quattro lati della casa, ha spazi ampi e pienamente godibili, impianto fotovoltaico, caldaia ibrida, impianto addolcitore d'acqua ed impianto d'irrigazione per tutto il giardino.
Ideale per famiglie anche numerose. Da non perdere!

Per ricevere maggiori informazioni e/o per fissare un appuntamento contattare i seguenti recapiti: al numero di telefono 02.09952129 oppure al Cell/WhatsApp 339/4466778.
Studio Immobiliare Mascheroni Via Rotondi 95 Paderno Dugnano.

LEGGI TUTTO

CONDIVIDI SUI SOCIAL

DATI PRINCIPALI

Riferimento
131181
Contratto
Vendita
Tipologia
Villa
Superficie
300 mq
Locali
5
Camere da letto
4
Cucina
Abitabile
Bagni
4
Piano
Piano terra
Totale piani
2
Box/Posto auto
Doppio

CARATTERISTICHE

Ascensore

COSTI

Prezzo
€ 649.000,00
Spese condominiali
€ 100,00 / mese

EFFICIENZA ENERGETICA

Stato
Ristrutturato
Riscaldamento
Autonomo
Classe energetica
F
IPE
160,80 kWh/m²a

A+

A

B

C

D

E

160,80 kWh/m²a | Classe energetica F

F

G

MAPPA

Paderno Dugnano comune della Brianza Milanese

ANNUNCI SIMILI

VENDITA 20
€ 580.000
Villa in Vendita a Paderno Dugnano (Milano)
  • Più di 5 locali
  • 242 mq
  • 4 bagni
VENDITA 6
€ 595.000
Villa in Vendita a Paderno Dugnano (Milano)
  • Più di 5 locali
  • 253 mq
  • 2 bagni
VENDITA 20
€ 475.000
Villa in Vendita a Paderno Dugnano (Milano)
  • Più di 5 locali
  • 212 mq
  • 3 bagni
VENDITA 20
€ 550.000
Villa in Vendita a Cologno Monzese (Milano)
  • Più di 5 locali
  • 251 mq
  • 2 bagni