PADERNO DUGNANO – VILLETTA A SCHIERA DI TESTA VENDITA

Via Roma 141 - Paderno Dugnano (Milano)
€ 375.000
  • Quadrilocale
  • 173 mq
  • 2 bagni

Villetta a schiera in Vendita a Paderno Dugnano

Proponiamo in vendita villetta a schiera di testa, situata in posizione strategica, a soli 500 metri dalla stazione FN e dal centro di Paderno Dugnano, comoda con tutti i principali servizi.

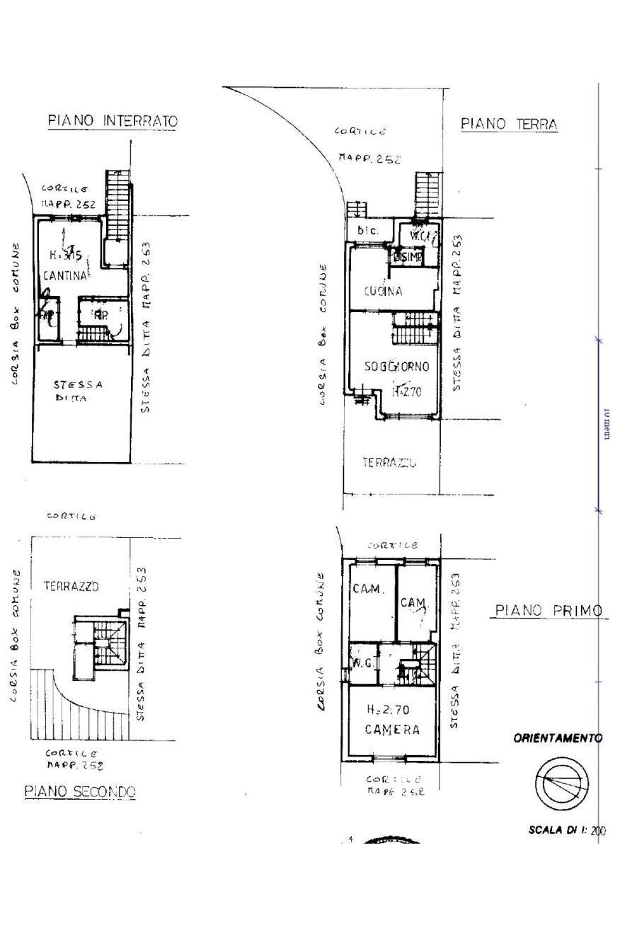
La proprietà si sviluppa su quattro livelli ed è così composta:

PIANO TERRA
Ingresso indipendente che conduce direttamente all’ampia zona giorno open space, ben organizzata e luminosa, con zona TV/relax, angolo cottura e zona pranzo. Da quest’ultima si accede a un balconcino che porta al giardino privato di circa 60 mq.
Completa il piano un primo bagno finestrato, dotato di box doccia.

PIANO PRIMO
Tramite scala interna si accede al piano dedicato alla zona notte, interamente rifinito in parquet, dove troviamo due spaziose camere singole, una ampia camera matrimoniale e un secondo bagno finestrato, questa volta con vasca.

PIANO SECONDO
All’ultimo livello è presente un terrazzo/solarium di circa 50 mq, con esposizione quadrupla, ideale per momenti di relax all’aperto.

PIANO SEMINTERRATO
Il piano seminterrato ospita un comodo ripostiglio ricavato nel sottoscala, un locale lavanderia e una taverna di circa 25 mq, dalla quale è possibile accedere direttamente al giardino.
Completa la proprietà un box doppio in larghezza, con accesso diretto dall’abitazione, incluso nel prezzo.

LEGGI TUTTO

CONDIVIDI SUI SOCIAL

DATI PRINCIPALI

Riferimento
127025
Contratto
Vendita
Tipologia
Villetta a schiera
Superficie
173 mq
Locali
4
Camere da letto
3
Cucina
Abitabile
Bagni
2
Piano
2 °
Totale piani
2
Box/Posto auto
Doppio

CARATTERISTICHE

Ascensore

COSTI

Prezzo
€ 375.000,00
Spese condominiali
€ 125,00 / mese

EFFICIENZA ENERGETICA

Stato
Abitabile
Anno costruzione
1998
Riscaldamento
Autonomo
Climatizzazione
Si
Classe energetica
E
IPE
186,93 kWh/m²a

A+

A

B

C

D

186,93 kWh/m²a | Classe energetica E

E

F

G

MAPPA

Paderno Dugnano comune della Brianza Milanese

ANNUNCI SIMILI

VENDITA 20
€ 380.000
Villetta a schiera in Vendita a Paderno Dugnano (Milano)
  • Quadrilocale
  • 135 mq
  • 2 bagni
VENDITA 20
€ 418.000
Villetta a schiera in Vendita a Paderno Dugnano (Milano)
  • Quadrilocale
  • 158 mq
  • 3 bagni
VENDITA 20
€ 560.000
Villetta a schiera in Vendita a Cologno Monzese (Milano)
  • Quadrilocale
  • 214 mq
  • 3 bagni
VENDITA 18
€ 470.000
Villetta a schiera in Vendita a Cologno Monzese (Milano)
  • Quadrilocale
  • 175 mq
  • 4 bagni
VENDITA 20
€ 510.000
Villetta a schiera in Vendita a Cologno Monzese (Milano)
  • Più di 5 locali
  • 219 mq
  • 3 bagni
VENDITA 20
€ 359.000
Villetta a schiera in Vendita a Carugate (Milano)
  • Più di 5 locali
  • 240 mq
  • 3 bagni
VENDITA 20
€ 365.000
Villetta a schiera in Vendita a Pozzo d'Adda (Milano)
  • Quadrilocale
  • 177 mq
  • 3 bagni
VENDITA 20
€ 355.000
Villetta a schiera in Vendita a Pozzo d'Adda (Milano)
  • Quadrilocale
  • 172 mq
  • 3 bagni
VENDITA 20
€ 358.000
Villetta a schiera in Vendita a Pozzo d'Adda (Milano)
  • Quadrilocale
  • 168 mq
  • 3 bagni
VENDITA 20
€ 189.000
Villetta a schiera in Vendita a Vaprio d'Adda (Milano)
  • Quadrilocale
  • 210 mq
  • 1 bagno