Monza Villa Singola: Indipendenza e Cuore Green VENDITA

Via Carlo Emanuele I° 23 - Monza, Zona Triante
€ 680.000
  • Trilocale
  • 210 mq
  • 3 bagni

Villa in Vendita a Monza

Nel cuore pulsante di Triante, uno dei quartieri più ricercati e serviti di Monza, proponiamo una raffinata villa singola che coniuga l’eleganza dell’architettura d’epoca con i più avanzati standard di efficientamento energetico.
Vivere qui significa scegliere l’esclusività di una dimora totalmente indipendente, libera da spese condominiali e progettata per offrire il massimo comfort abitativo con un impatto ambientale (e in bolletta) ridotto ai minimi termini.
GLI SPAZI INTERNI: ELEGANZA E FUNZIONALITÀ
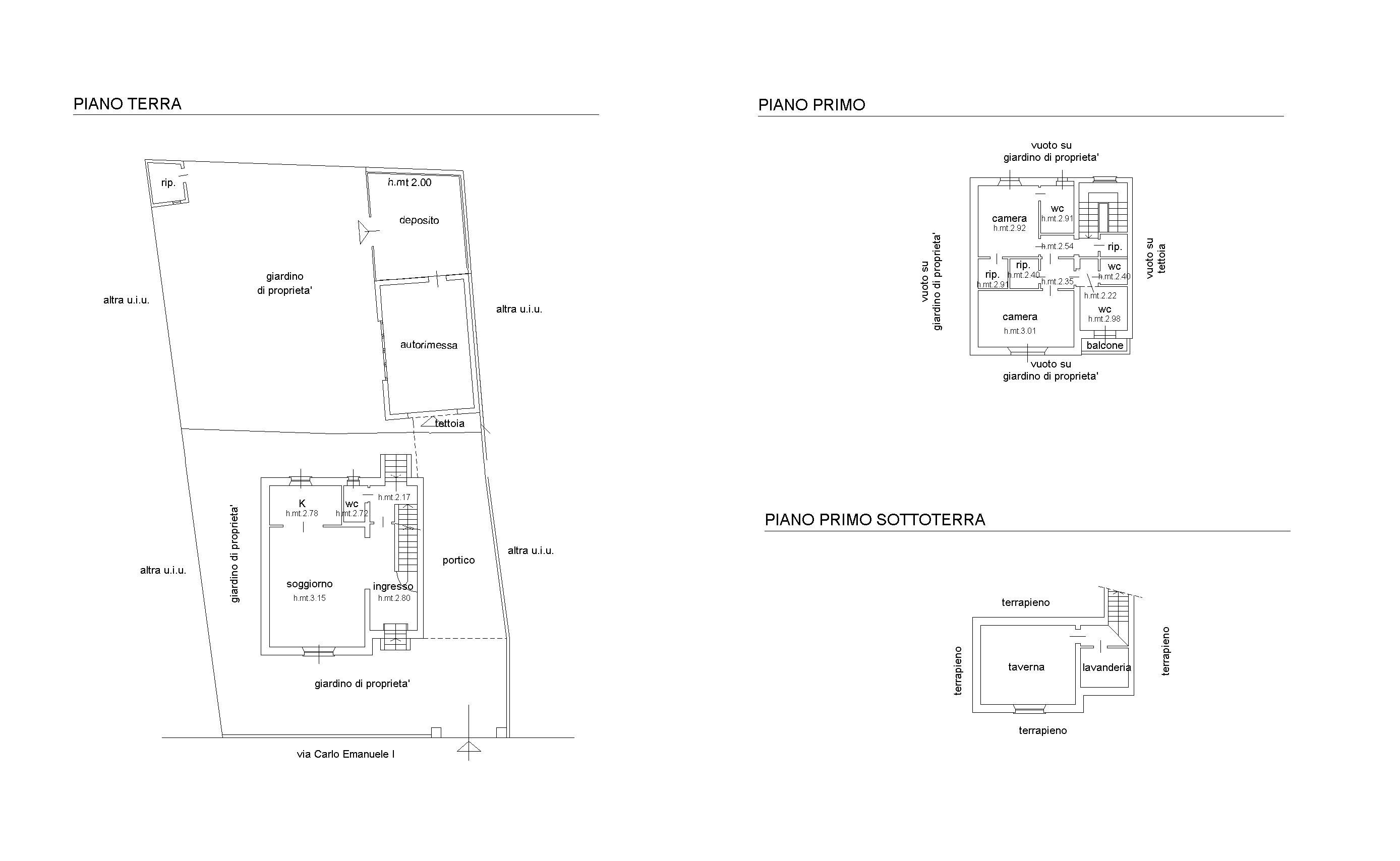
La villa si dispone su due livelli abitativi principali, oltre a un piano interrato dedicato al relax:
- Piano Terra: L’ingresso si apre su un ampio e luminoso soggiorno, ideale per l'accoglienza, una cucina abitabile spaziosa e un primo servizio.
- Primo Piano: La zona notte ospita due ampie camere da letto. Ogni camera è dotata di bagno privato e cabina armadio, garantendo massima indipendenza, comfort e funzionalità per ciascun ambiente oltre a un pratico ripostiglio.
- Piano Interrato: Una taverna con camino e bagno, perfetta come area hobby, sala cinema o spazio per gli ospiti.
IL CUORE TECNOLOGICO: EFFICIENZA E RISPARMIO
La vera anima di questa proprietà è il recente intervento di riqualificazione energetica. La casa è dotata di un sistema ibrido all’avanguardia che garantisce autonomia e sostenibilità:
- Impianto Fotovoltaico da 6,5 kW con sistema di accumulo da 10 kW per sfruttare l'energia solare anche nelle ore notturne.
- Sistema Ibrido Daikin: una soluzione evoluta che integra pompa di calore elettrica e caldaia a condensazione, gestendo in automatico la fonte più efficiente in base alla temperatura esterna.
- Infissi in PVC con doppio vetro e climatizzazione estiva/invernale in ogni ambiente. ESTERNI E PERTINENZE
Il giardino privato di 330 mq circonda la casa, offrendo un’oasi di riservatezza. Il portico esterno con gazebo rappresenta lo spazio perfetto per cene all’aperto, mentre il corpo staccato ospita un box/locale studio, ideale per lo smart working, e una comoda lavanderia, offrendo comunque la possibilità di parcheggiare una vettura al coperto, coniugando così praticità lavorativa e funzionalità di parcheggio.
SICUREZZA E FINITURE
- Porta blindata. Anteriore e posteriore lato giardino
- Videosorveglianza attiva con 4 telecamere.
SERENITÀ D'ACQUISTO
Questa villa rappresenta la soluzione definitiva per chi cerca l’esclusività e la privacy di una dimora indipendente, senza rinunciare alle innovazioni tecnologiche che guardano al futuro.
Un valore aggiunto fondamentale: l'immobile è pienamente conforme dal punto di vista catastale e urbanistico, grazie a una recente e accurata attività di sistemazione documentale che garantisce una compravendita rapida e senza sorprese.

LEGGI TUTTO

CONDIVIDI SUI SOCIAL

DATI PRINCIPALI

Riferimento
127446
Contratto
Vendita
Tipologia
Villa
Superficie
210 mq
Locali
3
Camere da letto
2
Cucina
Angolo cottura
Bagni
3
Piano
Su più livelli
Box/Posto auto
Doppio

CARATTERISTICHE

Balcone Terrazzo Giardino privato Cantina

COSTI

Prezzo
€ 680.000,00

EFFICIENZA ENERGETICA

Stato
Ristrutturato
Anno costruzione
1930
Riscaldamento
Autonomo
Climatizzazione
Si
Classe energetica
C
IPE
132,32 kWh/m²a

A+

A

B

132,32 kWh/m²a | Classe energetica C

C

D

E

F

G

MAPPA

Monza comune della Bassa Brianza Centrale Sud

ANNUNCI SIMILI

VENDITA 20
€ 685.000
Villa in Vendita a Monza, Zona San Biagio
  • Più di 5 locali
  • 232 mq
  • 3 bagni
VENDITA 20
€ 450.000
Villa in Vendita a Monza (Monza e Brianza)
  • Più di 5 locali
  • 200 mq
  • 3 bagni
VENDITA 20
Trattativa Riservata
Villa in Vendita a Monza, Zona San Biagio
  • Più di 5 locali
  • 374 mq
  • 4 bagni
VENDITA 20
€ 650.000
Villa in Vendita a Monza (Monza e Brianza)
  • Più di 5 locali
  • 225 mq
  • 3 bagni