€ 2.900 mensili
  • Più di 5 locali
  • 390 mq
  • 4 bagni

Ufficio in Affitto a Carate Brianza

Carate B.za: Zona centrale, adiacenze Carabinieri, proponiamo intera palazzina uso uffici disposta su 4 livelli di circa 105 mq. cadauno, serviti da ascensore privato interno.
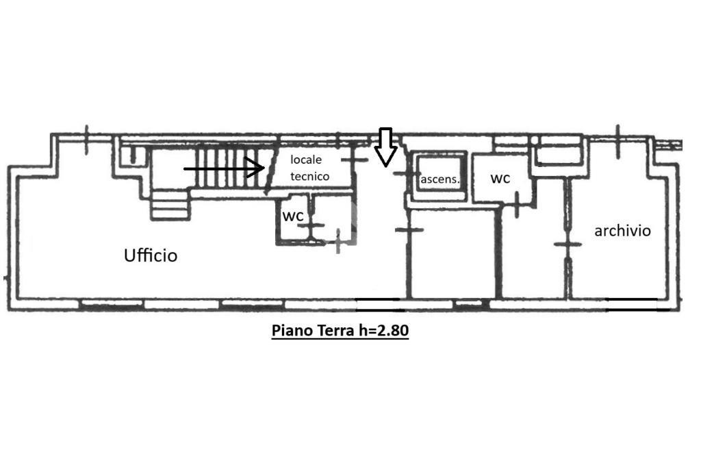
Il piano terra, con ingresso indipendente direttamente dalla strada, è composto da una zona reception, un locale attesa/archivio e doppi servizi. Il primo e secondo piano sono composti da ampi locali open space, divisibili con pareti mobili, menre il terzo e ultimo piano è adibito attualmente a locale archivio con doppi servizi e due vani tecnici nel sottotetto.
L'immobile si trova in ottime condizioni interne, con pavimentazione in ceramica in tutti i locali, infissi in alluminio con doppi vetri, impianto elettrico a norma e certificato, tutti i piani sono cablati, impianto di riscaldamento autonomo con pompa di calore.
Ampia area a parcheggio privata adiacente all'immobile.
La nostra agenzia immobiliare, affiliata Tecnocasa, presente sul territorio di Carate Brianza e frazioni dal 1987, si occupa dell'intermediazione per la vendita e locazione di immobili residenziali e commerciali offrendo un servizio a 360°, accompagnando i clienti in tutte le fasi della compravendita fino e anche oltre al rogito.

LEGGI TUTTO

CONDIVIDI SUI SOCIAL

DATI PRINCIPALI

Riferimento
129866
Contratto
Affitto
Tipologia
Immobile - Ufficio
Superficie
390 mq
Locali
5
Bagni
4
Piano
Piano terra
Totale piani
4
Box/Posto auto
Doppio

CARATTERISTICHE

Ascensore Semi-arredato

COSTI

Canone
Affitto € 2.900,00 al mese
Tipo locazione
4+4

EFFICIENZA ENERGETICA

Stato
Abitabile
Anno costruzione
2005
Riscaldamento
Autonomo
Climatizzazione
Si
Classe energetica
E
IPE
231,57 kWh/m²a

A+

A

B

C

D

231,57 kWh/m²a | Classe energetica E

E

F

G

MAPPA

Carate Brianza comune della Bassa Brianza Centrale Nord

ANNUNCI SIMILI

AFFITTO 20
€ 2.916 mensili
Ufficio in Affitto a Arcore (Monza e Brianza)
  • Più di 5 locali
  • 217 mq
  • 4 bagni