€ 1.300 mensili
  • Più di 5 locali
  • 138 mq
  • 2 bagni

Ufficio in Affitto a Desio

Ufficio predisposto per attività mediche e professionali - 138 mq su due livelli vicino stazione di Desio

Caratteristiche principali:

Superficie totale: 130 mq

Disposizione su due livelli:

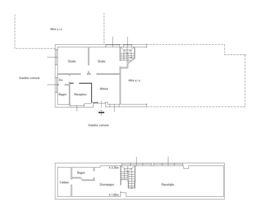
Piano Terra: Composto da stanze operative ideali per ambulatori o studi medici, una spaziosa sala d'aspetto con reception e servizio igienico.

Piano Superiore: Locali tecnici, depositi e spazi aggiuntivi, utili per archiviazione, laboratori o spazi operativi di supporto e servizio igienico.

Predisposizione per attività mediche: Impianti idraulici ed elettrici già configurati per studi dentistici o ambulatori medici.

Adattabilità: Grazie alla disposizione su due livelli, l’immobile si presta sia per attività sanitarie (dentisti, fisioterapisti, poliambulatori, dermatologi) che per studi professionali (commercialisti, avvocati, consulenti aziendali, architetti).

Posizione strategica: Vicino alla stazione di Desio, facilmente raggiungibile sia con mezzi pubblici che privati.

Possibilità di personalizzazione: Gli spazi possono essere adattati in base alle esigenze specifiche del conduttore.

Canone mensile: €1.300 senza alcuna spesa condominiale
Riscaldamento e impianti autonomi.

LEGGI TUTTO

CONDIVIDI SUI SOCIAL

DATI PRINCIPALI

Riferimento
125059
Contratto
Affitto
Tipologia
Immobile - Ufficio
Superficie
138 mq
Locali
Più di 5
Bagni
2
Piano
Piano terra
Totale piani
2

CARATTERISTICHE

Ascensore Semi-arredato

COSTI

Canone
Affitto € 1.300,00 al mese
Tipo locazione
4+4

EFFICIENZA ENERGETICA

Stato
Abitabile
Riscaldamento
Autonomo
Climatizzazione
Si
Classe energetica
E
IPE
351,00 kWh/m²a

A+

A

B

C

D

351,00 kWh/m²a | Classe energetica E

E

F

G

MAPPA

Desio comune della Bassa Brianza Centrale Sud

ANNUNCI SIMILI

AFFITTO 20
€ 2.916 mensili
Ufficio in Affitto a Arcore (Monza e Brianza)
  • Più di 5 locali
  • 217 mq
  • 4 bagni
AFFITTO 20
€ 1.830 mensili
Ufficio in Affitto a Brugherio (Monza e Brianza)
  • Più di 5 locali
  • 230 mq
  • 2 bagni