UFFICIO PRODUTTIVO CON LABORATORIO 500 MQ A SOVICO VENDITA

Via Enrico Mattei - Lissone (Monza e Brianza)
€ 430.000
  • 3 locali
  • 500 mq
  • 4 bagni

Ufficio in Vendita a Lissone

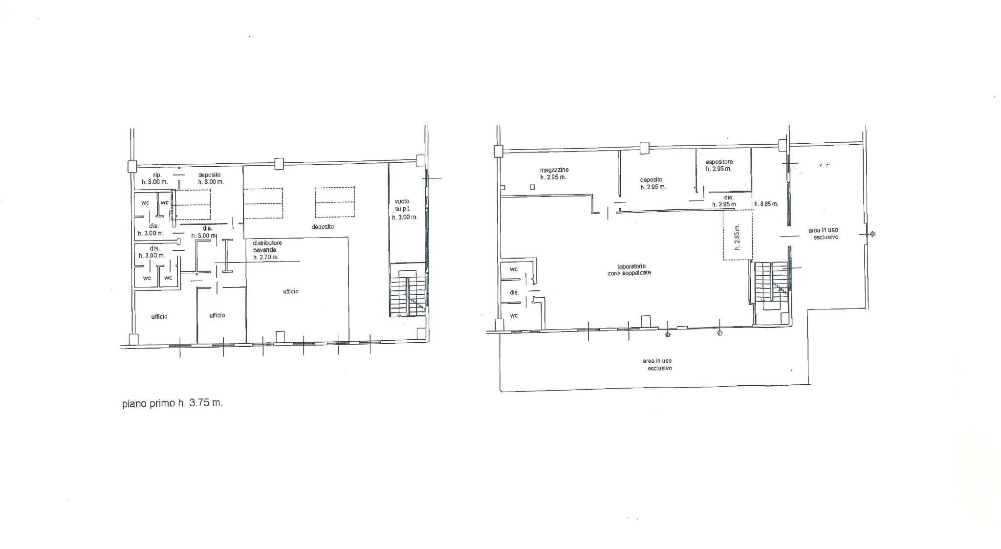
UFFICIO PRODUTTIVO CON LABORATORIO 500 MQ A SOVICO - Disponibilità di immobile artigianale sito nel comune di Sovico (MB) di mq 500 composto da area magazzino al piano terra di mq 180 con altezza utile 4,5 metri, ufficio piano terra di mq 70, ufficio piano primo mq 250.

CARATTERISTICHE:
- N. 1 portone d’accesso
- altezza sotto trave 4,5 mt
- pompa di calore
- ricircolo dell’aria
- impianto elettrico certificato
- allarme
- n. 3 posti auto
- n. 5 servizi
- cortile ad uso esclusivo mq 140

LOCALIZZAZIONE IMMOBILE:
- 4 km dalla SS36
- 15 km dalla A52 Tangenziale Nord di Milano
- 17 km dall’Autostrada A4 Torino-Trieste

Contattaci per maggiori informazioni o per organizzare un sopralluogo.

SCOPRI ALTRE SOLUZIONI SUL NOSTRO SITO WWW.CASAEINDUSTRIA.IT

LEGGI TUTTO

CONDIVIDI SUI SOCIAL

DATI PRINCIPALI

Riferimento
127837
Contratto
Vendita
Tipologia
Immobile - Ufficio
Superficie
500 mq
Locali
3
Bagni
4
Piano
1 °
Totale piani
2
Box/Posto auto
Doppio

CARATTERISTICHE

Ascensore Allarme

COSTI

Prezzo
€ 430.000,00
Spese condominiali
€ 110,00 / mese

EFFICIENZA ENERGETICA

Stato
Abitabile
Anno costruzione
2007
Climatizzazione
Si
Classe energetica
C
IPE
271,81 kWh/m²a

A+

A

B

271,81 kWh/m²a | Classe energetica C

C

D

E

F

G

MAPPA

Lissone comune della Bassa Brianza Centrale Sud

ANNUNCI SIMILI