• Più di 5 locali
  • 272 mq
  • 2 bagni

Ufficio in Vendita a Nova Milanese

**Ufficio in Vendita: Un'opportunità da non perdere! **

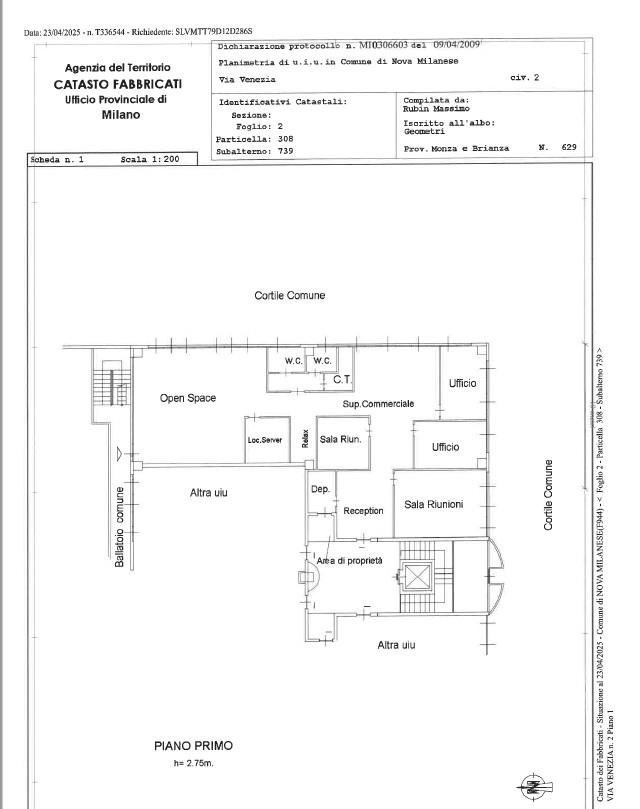
La Gabetti Muggiò ti invita a scoprire questo ufficio di 272 mq, situato in una posizione eccezionale che garantisce visibilità e accessibilità. Completamente cablato e luminoso, l'immobile è perfetto per ogni tipo di attività. La zona accoglienza dà il benvenuto a clienti e visitatori, mentre le sale riunioni offrono spazi ideali per incontri e brainstorming. Con un'area open space e uffici direzionali, questo ufficio è progettato per ottimizzare la produttività. Gli arredi interni (pareti divisorie) e i mobili (scrivanie,etc.) sono compresi nel prezzo di vendita.

Inoltre, è presente una zona server e servizi disponibili, rendendo questo ufficio perfetto per le esigenze moderne. La possibilità di reddito parziale grazie a un inquilino già in essere rappresenta un vantaggio significativo per chi cerca un investimento. In alternativa, è possibile acquistare l'immobile senza inquilino, adattandolo completamente alle proprie necessità.

L'ufficio si sviluppa su un unico piano e offre anche la possibilità di due posti auto coperti al piano interrato. Costruito nel 2006, l'immobile presenta bagni e servizi ben distribuiti, con un'ottima esposizione a nord, sud e ovest. Possibilità di 2 posti auto coperti, non inclusi.
Non perdere questa occasione unica di investire in un ufficio versatile e strategico! Contattaci per maggiori informazioni e per organizzare una visita.

LEGGI TUTTO

CONDIVIDI SUI SOCIAL

DATI PRINCIPALI

Riferimento
127361
Contratto
Vendita
Tipologia
Immobile - Ufficio
Superficie
272 mq
Locali
5
Bagni
2
Piano
1 °
Totale piani
2

CARATTERISTICHE

Ascensore Allarme

COSTI

Prezzo
€ 388.000,00
Spese condominiali
€ 200,00 / mese

EFFICIENZA ENERGETICA

Stato
Abitabile
Anno costruzione
2006
Riscaldamento
Autonomo
Climatizzazione
Si
Classe energetica
C
IPE
477,30 kWh/m²a

A+

A

B

477,30 kWh/m²a | Classe energetica C

C

D

E

F

G

MAPPA

Nova Milanese comune della Bassa Brianza Centrale Sud

ANNUNCI SIMILI

VENDITA 17
€ 295.000
Ufficio in Vendita a Monza (Monza e Brianza)
  • Più di 5 locali
  • 170 mq
  • 2 bagni
VENDITA 20
€ 200.000
Ufficio in Vendita a Monza, Zona Triante
  • Più di 5 locali
  • 178 mq
  • 2 bagni
VENDITA 20
€ 335.000
Ufficio in Vendita a Monza, Zona Parco
  • Più di 5 locali
  • 165 mq
  • 1 bagno
VENDITA 20
€ 285.000
Ufficio in Vendita a Monza (Monza e Brianza)
  • Più di 5 locali
  • 145 mq
  • 1 bagno