Ufficio Ad.ze Cemtro VENDITA

Via Sempione 5 - Monza, Zona San Biagio
€ 78.000
  • 2 locali
  • 87 mq
  • 1 bagno

Ufficio in Vendita a Monza

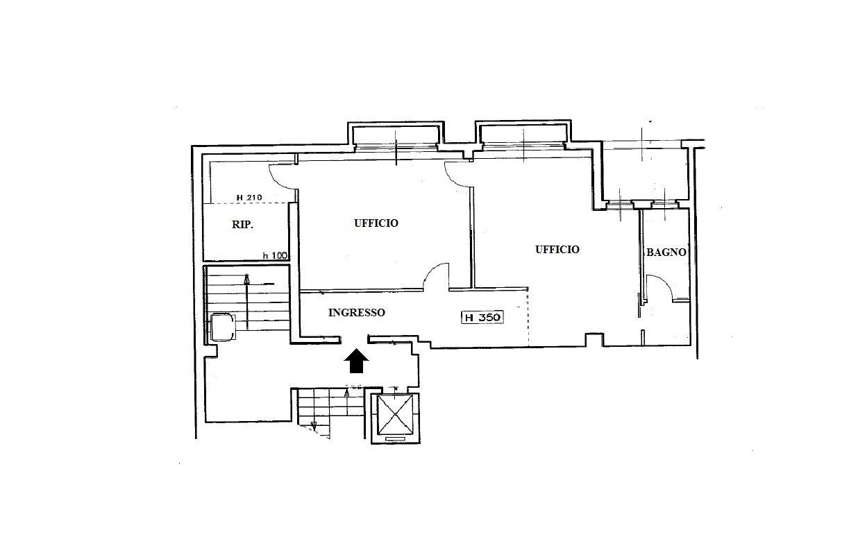
Monza, Ad. ze Centro e Stazione, in piccola palazzina al piano semi interrato, luminoso ufficio di Mq 87, composto da ingresso, due stanze oltre ripostiglio e bagno. Classe F 443.14 kwh/mqa ATTUALMENTE A REDDITO CON REGOLARE CONTRATTO DI LOCAZIONE € 78000.00

CONDIVIDI SUI SOCIAL

DATI PRINCIPALI

Riferimento
131934
Contratto
Vendita
Tipologia
Immobile - Ufficio
Superficie
87 mq
Locali
2
Bagni
1
Piano
Seminterrato
Totale piani
3

CARATTERISTICHE

Ascensore

COSTI

Prezzo
€ 78.000,00
Spese condominiali
€ 200,00 / mese

EFFICIENZA ENERGETICA

Stato
Abitabile
Anno costruzione
1990
Riscaldamento
Centralizzato
Classe energetica
F
IPE
443,14 kWh/m²a

A+

A

B

C

D

E

443,14 kWh/m²a | Classe energetica F

F

G

MAPPA

Monza comune della Bassa Brianza Centrale Sud

ANNUNCI SIMILI