UFFICIO 750 MQ A SESTO SAN GIOVANNI AFFITTO

Via Milanese - Sesto San Giovanni (Milano)
€ 10.000 mensili
  • 1 locale
  • 750 mq
  • 2 bagni

Ufficio in Affitto a Sesto San Giovanni

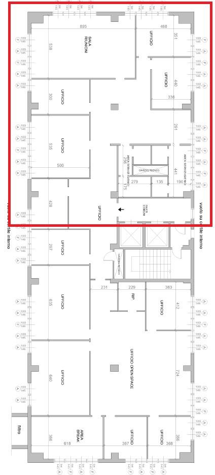
UFFICIO 750 MQ A SESTO SAN GIOVANNI - In posizione strategica a pochi passi da viale Fulvio Testi, proponiamo in locazione un ufficio di 750 mq situato al secondo e al primo piano di una palazzina terziaria indipendente di rappresentanza, sviluppata su sei livelli fuori terra. L’immobile si distingue per la grande luminosità e gli ambienti moderni, recentemente rinnovati e subito pronti all’utilizzo. Gli spazi risultano ideali per aziende che ricercano una sede funzionale, accogliente e facilmente raggiungibile. Ottimi i collegamenti con i mezzi pubblici: la fermata M5 Bignami è raggiungibile in circa 10 minuti a piedi, mentre la fermata M1 Sesto Rondò dista solo 16 minuti. La zona è servita da bar, ristoranti e dal Centro Sarca, situato proprio alle spalle dell’edificio. Il piano è servito da scale e doppio ascensore, mentre posti auto dedicati sono disponibili all’interno del complesso.

CARATTERISTICHE:
- Superficie: 750 mq
- Secondo piano mq 500
- Primo piano mq 250
- Edificio moderno e indipendente
- Ambienti luminosi e recentemente rinnovati
- Ottimi collegamenti con mezzi pubblici
- Parcheggio disponibile
- n. 4 servizi

LOCALIZZAZIONE IMMOBILE:
- 4 km dall’ Autostrada A4
- 4 km dalla A52 Tangenziale Nord di Milano
- 0,2 km dal Viale Fulvio Testi
- 15 Km dall’aeroporto di Linate

Contattaci per maggiori informazioni o per organizzare un sopralluogo.

SCOPRI ALTRE SOLUZIONI SUL NOSTRO SITO WWW.CASAEINDUSTRIA.IT

LEGGI TUTTO

CONDIVIDI SUI SOCIAL

DATI PRINCIPALI

Riferimento
127860
Contratto
Affitto
Tipologia
Immobile - Ufficio
Superficie
750 mq
Locali
1
Bagni
2
Piano
2 °
Totale piani
6
Box/Posto auto
Doppio

CARATTERISTICHE

Ascensore

COSTI

Canone
Affitto € 10.000,00 al mese
Tipo locazione
4+4
Spese condominiali
€ 2.812,00 / mese, non incluse nel canone

EFFICIENZA ENERGETICA

Stato
Ristrutturato
Anno costruzione
1990
Riscaldamento
Centralizzato
Climatizzazione
Si
Classe energetica
C
IPE
268,74 kWh/m²a

A+

A

B

268,74 kWh/m²a | Classe energetica C

C

D

E

F

G

MAPPA

Sesto San Giovanni comune della Brianza Milanese

ANNUNCI SIMILI