Vicino a fermata metropolitana e tangenziale est AFFITTO

Via Wolfgang Amadeus Mozart 47 - Cologno Monzese (Milano)
€ 3.333 mensili
  • Più di 5 locali
  • 330 mq
  • 2 bagni

Ufficio in Affitto a Cologno Monzese

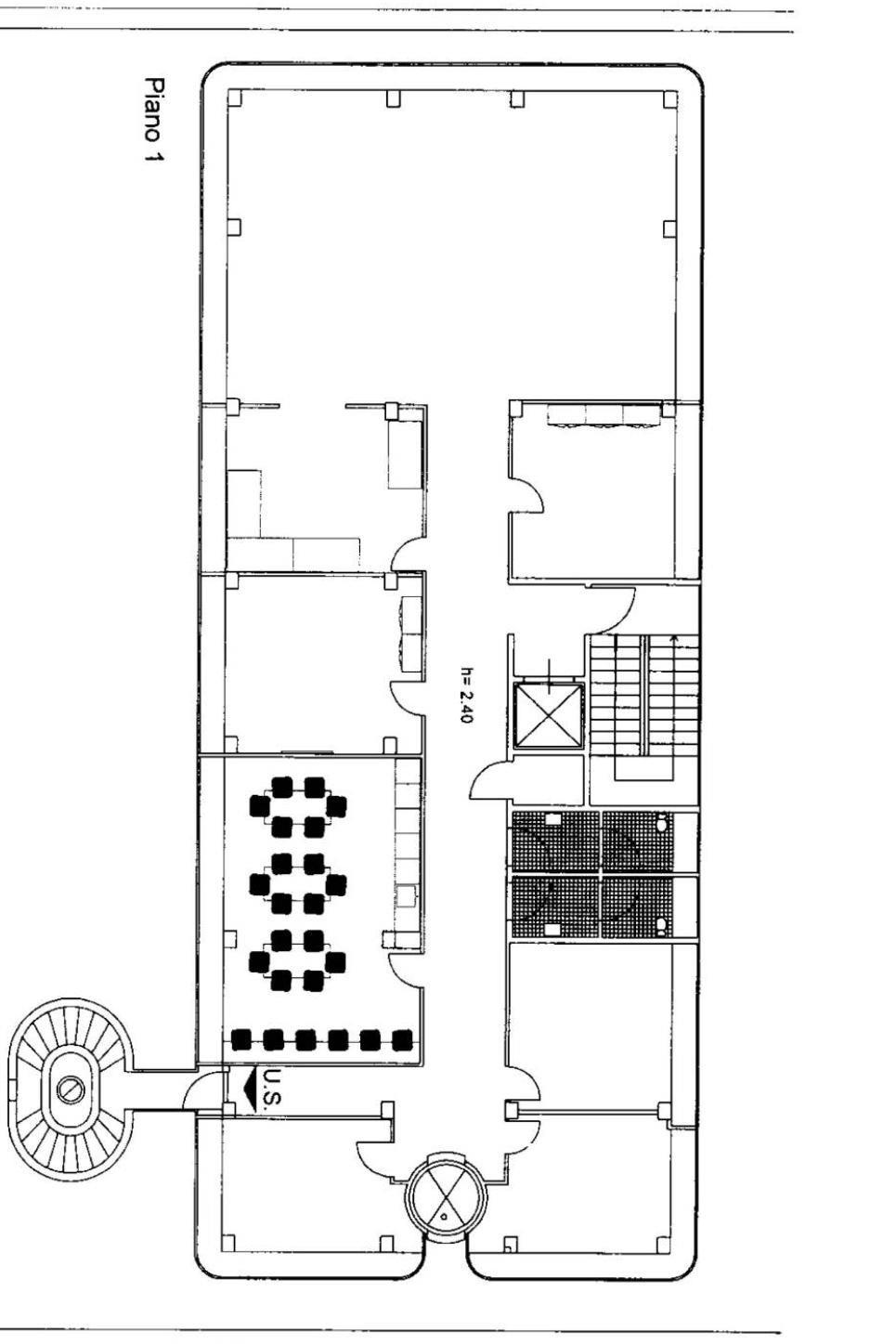
Ufficio a 900 metri dalla Metropolitana fermata Cologno Nord linea verde, di mq 330 al primo piano servito da doppio ascensore. All'interno di una palazzina ad uso ufficio ristrutturata nel 2022, l'ufficio si presenta pronto per essere utilizzato, con suddivisioni in cartongesso eventualmente modificabili in base alle proprie esigenze lavorative. Sono presenti impianto elettrico certificato ( completo di luci a led di elegante impatto estetico), cablaggio, impianto di riscaldamento e raffrescamento centralizzati le cui spese sono incluse nelle condominiali. Al piano interrato, su richiesta, sono presenti dei locali adatti come sale riunioni oppure depositi. Inclusi nel canone un posto auto in garage e due esterni. L'arredo nelle foto non è compreso nell'offerta.
L'ufficio è adatto a chi cerca una soluzione di immagine, con la comodità della metropolitana vicina e della prossimità all'accesso alla Tangenziale Est.

LEGGI TUTTO

CONDIVIDI SUI SOCIAL

DATI PRINCIPALI

Riferimento
128599
Contratto
Affitto
Tipologia
Immobile - Ufficio
Superficie
330 mq
Locali
Più di 5
Bagni
2
Piano
1 °
Totale piani
5
Box/Posto auto
Singolo

CARATTERISTICHE

Ascensore

COSTI

Canone
Affitto € 3.333,00 al mese
Tipo locazione
4+4
Spese condominiali
€ 800,00 / mese, non incluse nel canone

EFFICIENZA ENERGETICA

Stato
Ristrutturato
Anno costruzione
1980
Riscaldamento
Centralizzato
Climatizzazione
Si
Classe energetica
F
IPE
131,10 kWh/m²a

A+

A

B

C

D

E

131,10 kWh/m²a | Classe energetica F

F

G

MAPPA

Cologno Monzese comune della Brianza Milanese