NEGOZIO / UFFICIO / SHOWROOM CON GIARDINO VENDITA

Via Luigi Einaudi 13 - Meda (Monza e Brianza)
€ 230.000
  • 1 locale
  • 106 mq
  • 1 bagno

Negozio in Vendita a Meda

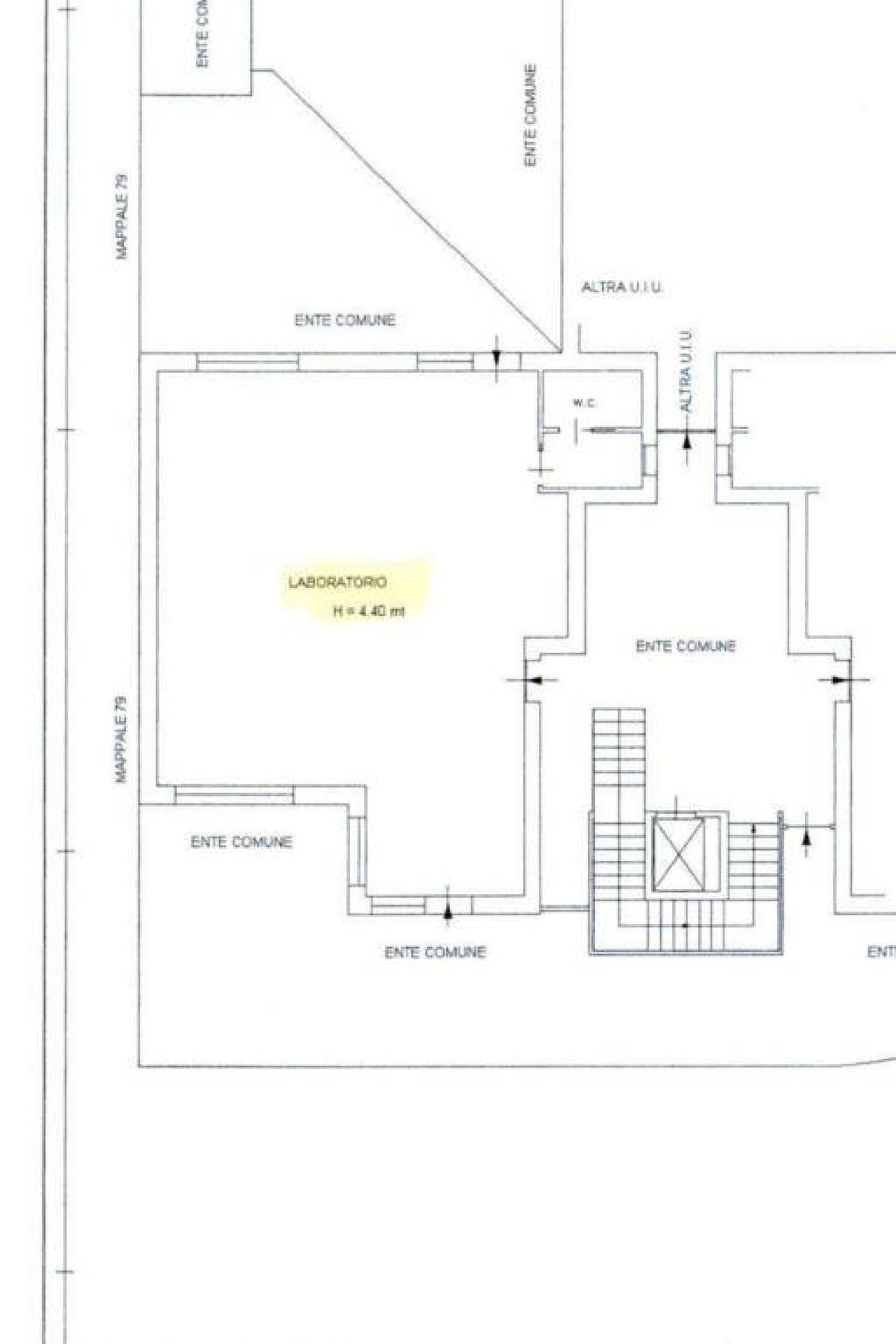
In un contesto strategico, proponiamo un ampio negozio / ufficio di 106 m² commerciali, ideale per professionisti e aziende in cerca di uno spazio funzionale e ben posizionato. L'immobile offre un ingresso interno e su strada, garantendo visibilità e accesso diretto. La generosa vetrina affacciata sul giardinetto d'ingresso crea un'atmosfera accogliente e professionale.

Il giardino in uso esclusivo sul retro rappresenta un vero valore aggiunto, perfetto per momenti di pausa all'aria aperta o per eventi aziendali. Completano l'offerta un posto auto nel seminterrato servito da un ascensore interno che facilita gli spostamenti. L'ufficio è attualmente a reddito con un contratto di locazione in scadenza a gennaio 2030, rendendolo un'ottima opportunità di investimento.

Con orientamento Est-Ovest, gli spazi sono luminosi e ben ventilati, mentre i bagni e i servizi sono già presenti, pronti per essere utilizzati. Non perdere l'occasione di investire in questo immobile versatile e strategico! Contattaci per maggiori informazioni e per organizzare una visita.

LEGGI TUTTO

CONDIVIDI SUI SOCIAL

DATI PRINCIPALI

Riferimento
127315
Contratto
Vendita
Tipologia
Immobile - Negozio
Superficie
106 mq
Locali
1
Bagni
1
Piano
Piano terra
Totale piani
3
Box/Posto auto
Singolo

CARATTERISTICHE

Ascensore

COSTI

Prezzo
€ 230.000,00
Spese condominiali
€ 225,00 / mese

EFFICIENZA ENERGETICA

Stato
Ristrutturato
Anno costruzione
2020
Riscaldamento
Centralizzato
Climatizzazione
Si
Classe energetica
A1
IPE
329,00 kWh/m²a

A4

A3

A2

329,00 kWh/m²a | Classe energetica A1

A1

B

C

D

E

F

G

MAPPA

Meda comune della Bassa Brianza Occidentale

ANNUNCI SIMILI

VENDITA 20
€ 285.000
Negozio in Vendita a Meda (Monza e Brianza)
  • Più di 5 locali
  • 360 mq
  • 3 bagni