Barlassina, laboratorio mq. 350 AFFITTO

Via Giovanni Segantini 29 - Barlassina (Monza e Brianza)
€ 1.550 mensili
  • 1 locale
  • 350 mq
  • 1 bagno

Negozio in Affitto a Barlassina

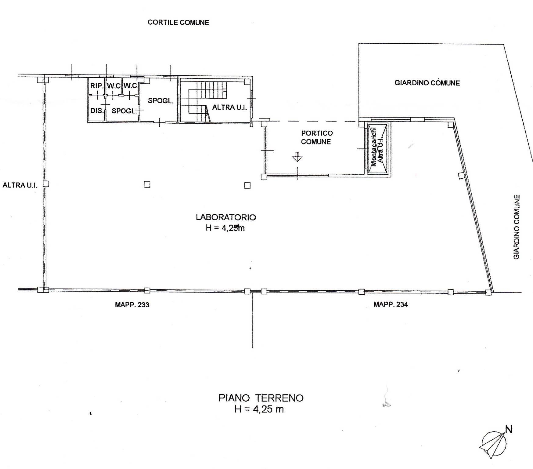
Barlassina - affittasi laboratorio dalle metratura di c.a. 350 mq.
Altezza interna di 4,25 m
Ingresso indipendente.
Minime spese comuni.
Solo referenziati.

Se hai un appartamento da vendere contattaci per una valutazione gratuita e senza impegno.
La presente scheda non costituisce forma di contratto, le informazione contenute sono da ritenersi del tutto indicative e non potranno essere utilizzate come parte integrante di un eventuale contratto di vendita o locazione della proprietà.

CONDIVIDI SUI SOCIAL

DATI PRINCIPALI

Riferimento
130213
Contratto
Affitto
Tipologia
Immobile - Negozio
Superficie
350 mq
Locali
1
Bagni
1
Piano
Piano terra
Totale piani
2

CARATTERISTICHE

Ascensore

COSTI

Canone
Affitto € 1.550,00 al mese
Tipo locazione
4+4

EFFICIENZA ENERGETICA

Stato
Ristrutturato
Anno costruzione
1995

MAPPA

Barlassina comune della Bassa Brianza Occidentale

ANNUNCI SIMILI