negozio in affitto a Meda (MB) AFFITTO

Viale Brianza 50 - Meda (Monza e Brianza)
€ 570 mensili
  • 1 locale
  • 40 mq
  • 1 bagno

Negozio in Affitto a Meda

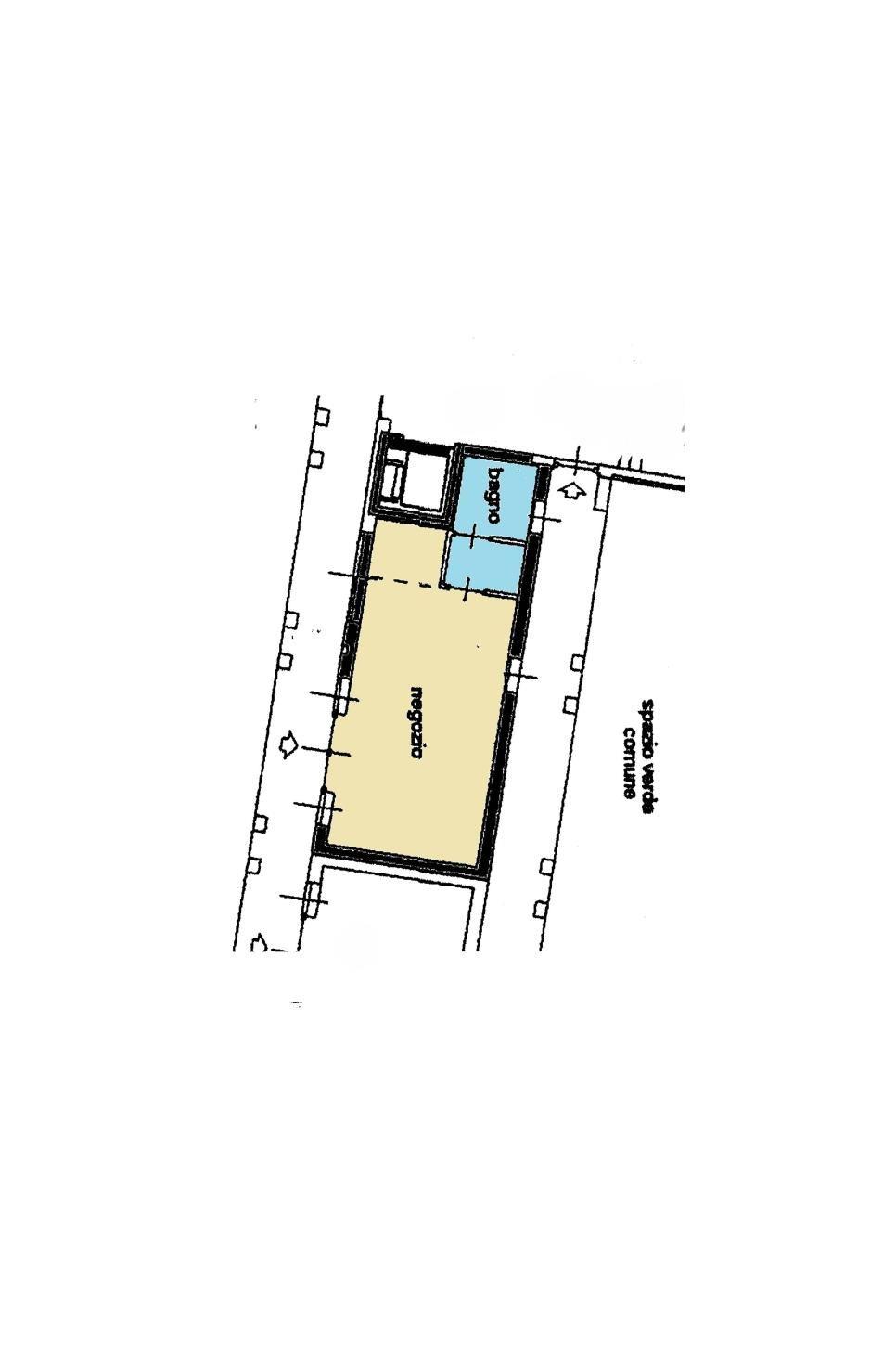
Meda vicinanze centro in recente palazzina mista residenziale e commerciale proponiamo un negozio di mq. 40 con doppia esposizione, composto da un open space ed un bagno, due ampie vetrine su strada di forte passaggio, ottime condizioni, riscaldamento autonomo, libero da fine marzo 2026 Euro 570 mensili

CONDIVIDI SUI SOCIAL

DATI PRINCIPALI

Riferimento
127082
Contratto
Affitto
Tipologia
Immobile - Negozio
Superficie
40 mq
Locali
1
Bagni
1
Piano
Piano terra
Totale piani
3

CARATTERISTICHE

Ascensore

COSTI

Canone
Affitto € 570,00 al mese
Tipo locazione
4+4
Spese condominiali
€ 70,00 / mese, non incluse nel canone

EFFICIENZA ENERGETICA

Stato
Ristrutturato
Anno costruzione
2010
Riscaldamento
Autonomo
Climatizzazione
Si
Classe energetica
G
IPE
175,00 kWh/m²a

A+

A

B

C

D

E

F

175,00 kWh/m²a | Classe energetica G

G

MAPPA

Meda comune della Bassa Brianza Occidentale

ANNUNCI SIMILI