AD.ZE STAZIONE- COMPLESSO COMMERCIALE INDIPENDENTE VENDITA

Via Alessandro Volta 10 - Cernusco Lombardone (Lecco)
€ 320.000
  • 3 locali
  • 360 mq
  • 3 bagni

Negozio in Vendita a Cernusco Lombardone

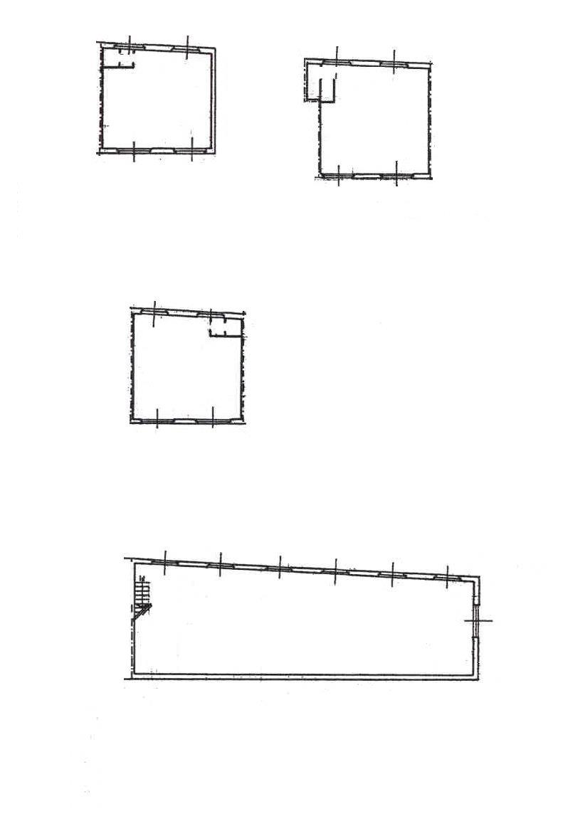
Nelle ad.ze della Stazione FS di Cernusco Lombardone/Merate, in posizione comodissima, di grandissima visibilità e servita, la Miranda Immobiliare propone in Vendita Signorile Immobile Commerciale Indipendente che si sviluppa su circa un tot. di 360 mq. La soluzione indipendente e senza spese condominiali ,è caratterizzata da 3 Negozi commerciali con Deposito di 180mq. e Giardino di ulteriori 150 mq (con possibilità di creare posti auto).Nello specifico, 3 Spazi Commerciali in perfette condizioni interne e dotati di climatizzazione,ognuno si sviluppa su circa 60 mq con 2 vetrine fronte strada, oltre 180 mq di Magazzino/Deposito. Ottimo come operazione immobiliare o investimento
Possibilità di accorpare le varie unità.
Classe Energetica: G Ipe: 190,28 kwh/mqa
Classe Energetica: G Ipe: 190,28 kwh/mqa Soluzione interessante ed assolutamente da visionare. Per ulteriori informazioni e per visionare la soluzione senza impegno, potete contattare i seguenti recapiti: telefono fisso: 02.54.10.79.67 telefono mobile: 392.94.76.169 e-mail: miranda@mirandaimmobiliare.it Consultate il ns. sito: www.mirandaimmobiliare.it

LEGGI TUTTO

CONDIVIDI SUI SOCIAL

DATI PRINCIPALI

Riferimento
132710
Contratto
Vendita
Tipologia
Immobile - Negozio
Superficie
360 mq
Locali
3
Bagni
3
Piano
Piano terra
Totale piani
2
Box/Posto auto
Doppio

CARATTERISTICHE

Ascensore

COSTI

Prezzo
€ 320.000,00

EFFICIENZA ENERGETICA

Stato
Ristrutturato
Anno costruzione
1950
Riscaldamento
Autonomo
Climatizzazione
Si
Classe energetica
G
IPE
190,28 kWh/m²a

A+

A

B

C

D

E

F

190,28 kWh/m²a | Classe energetica G

G

MAPPA

Cernusco Lombardone comune della Brianza Meratese

ANNUNCI SIMILI

VENDITA 15
€ 187.000
Negozio in Vendita a Oggiono (Lecco)
  • Più di 5 locali
  • 200 mq
  • 2 bagni