LUMINOSO SPAZIO COMMERCIALE / USO UFFICIO SLP 165 MQ VENDITA

Via Principale - Verderio (Lecco)
€ 145.000
  • Più di 5 locali
  • 166 mq
  • 2 bagni

Negozio in Vendita a Verderio

In Vendita: Loft Open-Space Unico nel Suo Genere a Cornate D'Adda

Ubicazione Ideale: Nelle immediate vicinanze del centro commerciale "Il Globo" e a soli 10 minuti di auto dal centro di Verderio Superiore.

Ottima Opportunità: Proponiamo in vendita un affascinante loft open-space attualmente adibito a spazio commerciale, con la possibilità di trasformarlo in un ufficio. Questa soluzione rappresenta un'opportunità unica per chi cerca un ambiente versatile e luminoso.

Caratteristiche dell'Immobile:

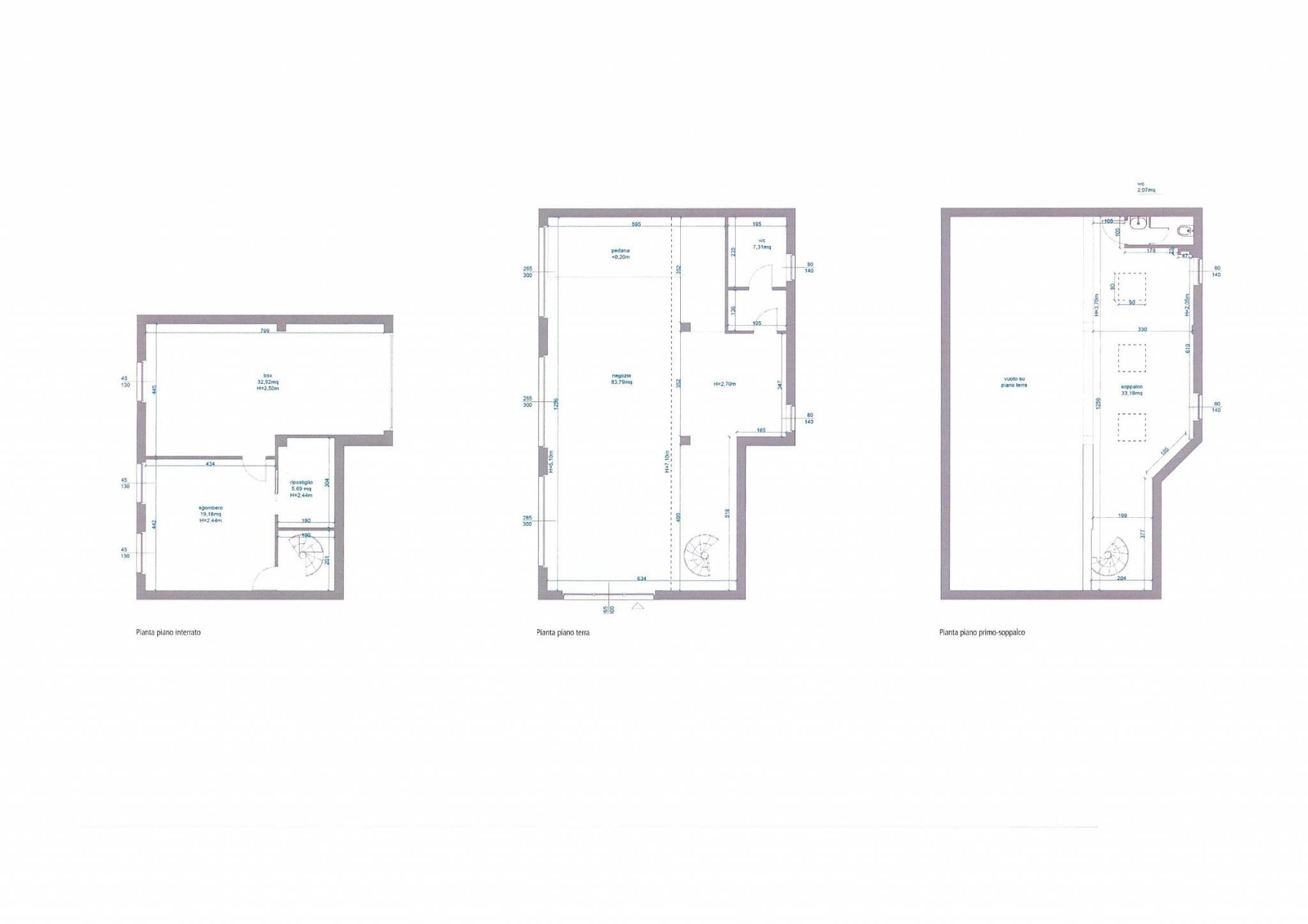
Piano Terra: Ingresso indipendente di circa 90 mq, caratterizzato da 3 ampie vetrate che garantiscono un'ottima luminosità. Completano il piano un antibagno e un bagno.
Primo Piano Soppalcato: Accedendo tramite una comoda scala, troviamo un soppalco di 40 mq dotato di velux e finestre, oltre a un ulteriore bagno.
Piano Interrato: Spazio aggiuntivo di 26 mq da utilizzare come magazzino o deposito.
Box Singolo: Ampio box di 32 mq con doppio accesso carraio, sia sul fronte che sul retro.
Immagini Illustrative: Le immagini presenti nell’annuncio sono a scopo illustrativo e rappresentano un'ipotesi di progetto per l'immobile.

Non perdere questa occasione unica! Contattaci per maggiori informazioni e per prenotare una visita. Questo loft è pronto a diventare il tuo prossimo spazio di lavoro o la tua nuova avventura imprenditoriale!

LEGGI TUTTO

CONDIVIDI SUI SOCIAL

DATI PRINCIPALI

Riferimento
130642
Contratto
Vendita
Tipologia
Immobile - Negozio
Superficie
166 mq
Locali
5
Bagni
2
Piano
1 °
Totale piani
1
Box/Posto auto
Singolo

CARATTERISTICHE

Ascensore

COSTI

Prezzo
€ 145.000,00
Spese condominiali
€ 43,00 / mese

EFFICIENZA ENERGETICA

Stato
Ristrutturato
Anno costruzione
1986
Riscaldamento
Centralizzato
Climatizzazione
Si
Classe energetica
F
IPE
57,53 kWh/m²a

A+

A

B

C

D

E

57,53 kWh/m²a | Classe energetica F

F

G

MAPPA

Verderio comune della Brianza Meratese

ANNUNCI SIMILI