Capiago-Porzione di casa con cantina, box e bassissime spese VENDITA

Via Umberto I 3 - Capiago Intimiano (Como)
€ 99.000
  • Trilocale
  • 79 mq
  • 1 bagno

Casa indipendente in Vendita a Capiago Intimiano

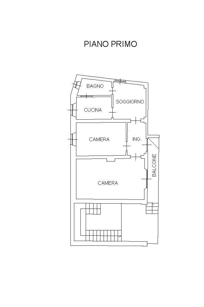
Capiago Intimiano - Capiago, proponiamo trilocale composto con balcone, cantina e box auto.
L'appartamento, sito al piano primo, di 66 mq, è così disposto: ingresso, soggiorno, cucina semiabitabile, due camere da letto, bagno e balcone.
Al piano terra troviamo una cantina di 36 mq, box auto di 20 mq, portico con scala e ripostiglio soppalcato esterno.
L'immobile, da ristrutturare, è ubicato in un contesto di corte con bassissime spese, privo di amministratore.

BUONI MOTIVI PER ACQUISTARLO:
1- ZONA;
2- BOX AUTO;
3- CANTINA;
4- BASSISSIME SPESE;
5- BALCONE.

Per ulteriori informazioni o per fissare un appuntamento puoi chiamarci al numero 031/5477974, mandarci un messaggio su WhatsApp al 328/1992187 oppure passa a trovarci in via Provinciale per Lecco 758 Lipomo. Orari di Apertura: Lunedì – Venerdì: 09:00 – 13:00 / 14:30 – 20:30 Sabato: 09:00 – 13:00 / 14:30 – 17:30. Se fosse interessato ad una valutazione GRATUITA e SENZA IMPEGNO del Suo immobile, siamo a Sua completa disposizione! Le ricordiamo, inoltre, che la nostra struttura offre CONSULENZE DI MUTUO GRATUITE CON TASSI AGEVOLATI. La presente scheda non vincola in alcun modo l'agenzia immobiliare non costituisce forma di contratto, le informazioni qui contenute sono da ritenersi del tutto indicative e non potranno essere utilizzate come parte integrante in un eventuale contratto di vendita o locazione della proprietà.

LEGGI TUTTO

CONDIVIDI SUI SOCIAL

DATI PRINCIPALI

Riferimento
127599
Contratto
Vendita
Tipologia
Casa indipendente
Superficie
79 mq
Locali
3
Camere da letto
2
Cucina
Abitabile
Bagni
1
Piano
1 °
Totale piani
1
Box/Posto auto
Singolo

CARATTERISTICHE

Ascensore

COSTI

Prezzo
€ 99.000,00
Spese condominiali
€ 8,00 / mese

EFFICIENZA ENERGETICA

Stato
Da ristrutturare
Anno costruzione
1950
Riscaldamento
Autonomo
Classe energetica
G
IPE
290,02 kWh/m²a

A+

A

B

C

D

E

F

290,02 kWh/m²a | Classe energetica G

G

MAPPA

Capiago Intimiano comune della Bassa Brianza Comasca

ANNUNCI SIMILI

VENDITA 20
€ 329.000
Casa indipendente in Vendita a Capiago Intimiano (Como)
  • Quadrilocale
  • 222 mq
  • 2 bagni
VENDITA 20
€ 360.000
Casa indipendente in Vendita a Tavernerio (Como)
  • Più di 5 locali
  • 211 mq
  • 3 bagni
VENDITA 20
€ 360.000
Casa indipendente in Vendita a Tavernerio (Como)
  • Più di 5 locali
  • 211 mq
  • 3 bagni
VENDITA 20
€ 465.000
Casa indipendente in Vendita a Cantù (Como)
  • Quadrilocale
  • 200 mq
  • 3 bagni