Intimiano- Soluzione semindipendente di 4 locali senza spese VENDITA

Corso Ariberto - Capiago Intimiano (Como)
€ 195.000
  • Quadrilocale
  • 175 mq
  • 2 bagni

Casa indipendente in Vendita a Capiago Intimiano

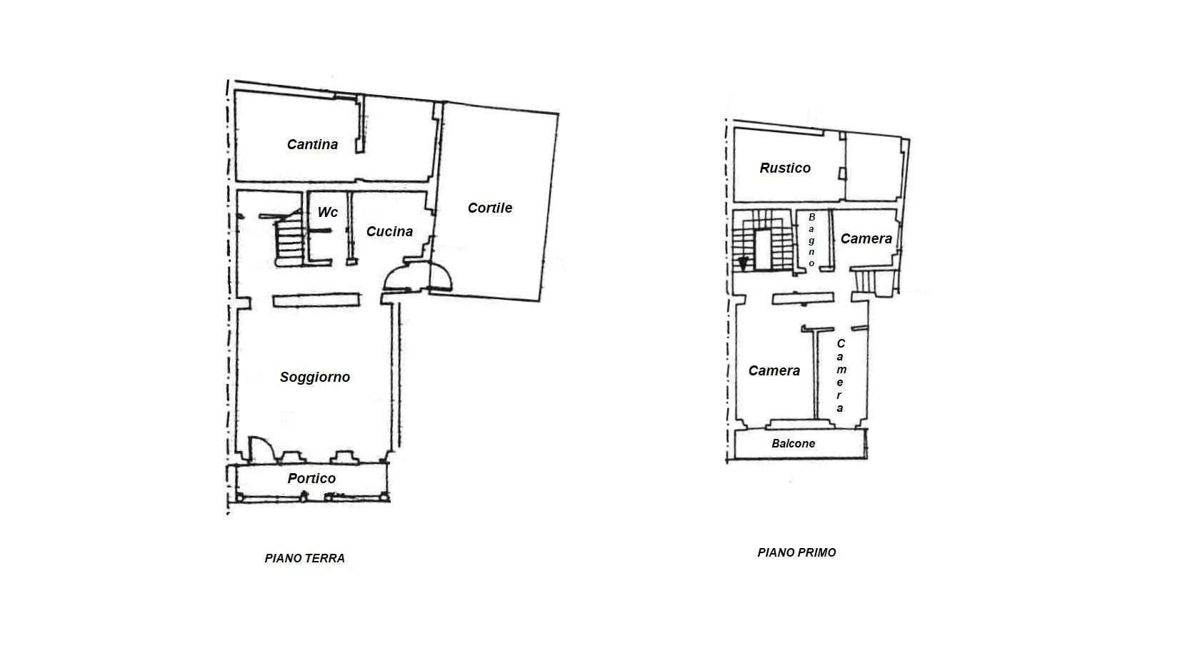
Rif: C1501 - Capiago Intimiano - Intimiano, proponiamo soluzione semindipendente di quattro locali priva di spese condominiali.
La soluzione si sviluppa su due livelli ed è così disposta: attraverso il portico di 9 mq accediamo alla zona giorno composta da ingresso direttamente in soggiorno, cucina abitabile con secondo accesso sul retro e bagno; attraverso il vano scala giungiamo nella zona notte composta da tre camere da letto due di cui con accesso al balcone e bagno finestrato con vasca.
Pavimentazione in ceramica in tutti i locali, infissi in legno/doppio vetro.
Completa la proprietà un rustico adiacente all'abitazione, dove al piano terra c'è la possibilità di parcheggiare l'auto e dove troviamo una comoda cantina/tavernetta.
L'immobile è stato completamente ristrutturato nel 1998, sia internamente che a livello di tetto, ed è dotato di vespaio.
La soluzione gode di accesso indipendente ed è priva di spese condominiali.

BUONI MOTIVI PER ACQUISTARLA:
1- Zona;
2- Metratura;
3- Accesso indipendente;
4- Priva di spese condominiali;
5- Rustico.

Per ulteriori informazioni o per fissare un appuntamento puoi chiamarci al numero 031/5477974, mandarci un messaggio su WhatsApp al 328/1992187 oppure passa a trovarci in via Provinciale per Lecco 758 Lipomo. Orari di Apertura: Lunedì – Venerdì: 09:00 – 13:00 / 14:30 – 20:30 Sabato: 09:00 – 13:00 / 14:30 – 17:30. Se fosse interessato ad una valutazione GRATUITA e SENZA IMPEGNO del Suo immobile, siamo a Sua completa disposizione! Le ricordiamo, inoltre, che la nostra struttura offre CONSULENZE DI MUTUO GRATUITE CON TASSI AGEVOLATI.

La presente scheda non vincola in alcun modo l'agenzia immobiliare non costituisce forma di contratto, le informazioni qui contenute sono da ritenersi del tutto indicative e non potranno essere utilizzate come parte integrante in un eventuale contratto di vendita o locazione della proprietà.

LEGGI TUTTO

CONDIVIDI SUI SOCIAL

DATI PRINCIPALI

Riferimento
127585
Contratto
Vendita
Tipologia
Casa indipendente
Superficie
175 mq
Locali
4
Camere da letto
3
Cucina
Abitabile
Bagni
2
Piano
Piano terra
Totale piani
1

CARATTERISTICHE

Ascensore

COSTI

Prezzo
€ 195.000,00

EFFICIENZA ENERGETICA

Stato
Abitabile
Anno costruzione
1890
Riscaldamento
Autonomo
Classe energetica
G
IPE
299,16 kWh/m²a

A+

A

B

C

D

E

F

299,16 kWh/m²a | Classe energetica G

G

MAPPA

Capiago Intimiano comune della Bassa Brianza Comasca

ANNUNCI SIMILI

VENDITA 20
€ 329.000
Casa indipendente in Vendita a Capiago Intimiano (Como)
  • Quadrilocale
  • 222 mq
  • 2 bagni
VENDITA 20
€ 465.000
Casa indipendente in Vendita a Cantù (Como)
  • Quadrilocale
  • 200 mq
  • 3 bagni
VENDITA 20
€ 448.000
Casa indipendente in Vendita a Cantù (Como)
  • Quadrilocale
  • 235 mq
  • 2 bagni
VENDITA 20
€ 360.000
Casa indipendente in Vendita a Tavernerio (Como)
  • Più di 5 locali
  • 211 mq
  • 3 bagni
VENDITA 20
€ 360.000
Casa indipendente in Vendita a Tavernerio (Como)
  • Più di 5 locali
  • 211 mq
  • 3 bagni
VENDITA 20
€ 265.000
Casa indipendente in Vendita a Cantù (Como)
  • Quadrilocale
  • 120 mq
  • 2 bagni
VENDITA 19
€ 280.000
Casa indipendente in Vendita a Cantù (Como)
  • Quadrilocale
  • 166 mq
  • 2 bagni
VENDITA 20
€ 190.000
Casa indipendente in Vendita a Albavilla (Como)
  • Più di 5 locali
  • 267 mq