LISSONE: CAPANNONE MQ 900 CA. + CORTILE MQ 450 CA. VENDITA

Via dell'Asilo 24 - Lissone (Monza e Brianza)
€ 900.000
  • 1 locale
  • 900 mq
  • 2 bagni

Capannone in Vendita a Lissone

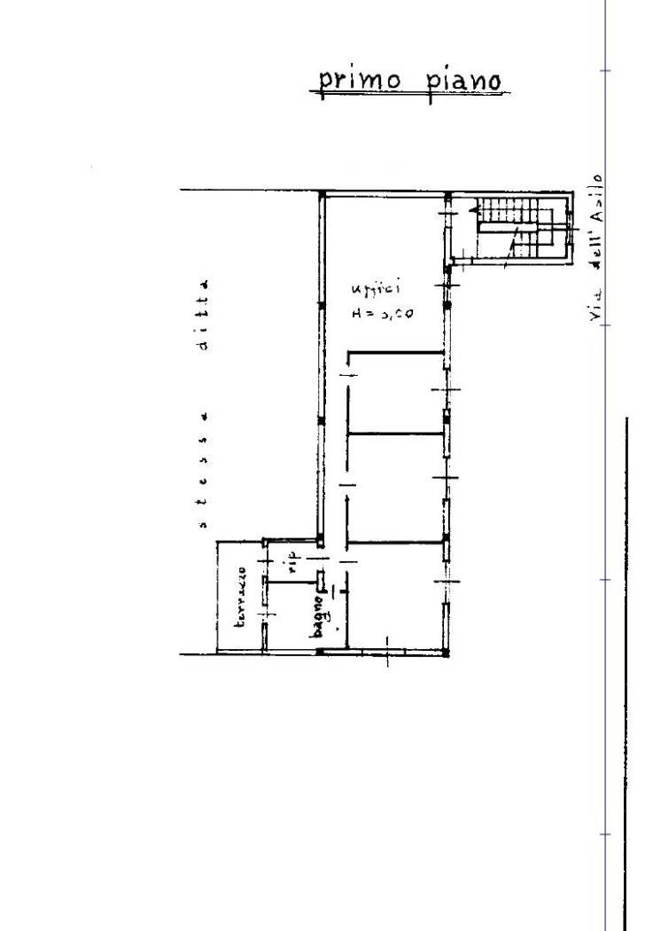
LISSONE: Via Dell'Asilo angolo via Catalani.
Su via di forte passaggio veicolare, a breve distanza da SS 36 e futura Pedemontana, proponiamo ampio capannone con cortile privato.
L'immobile è così composto:
- Piano terra di mq 900 ca. composto da laboratorio con altezza interna da cm 410 a cm 650, ufficio, servizi e centrale termica;
- Piano primo di mq 120 composto da ampio ufficio suddiviso in quattro ambienti oltre a bagno e balcone.
Cortile privato di mq 450 ca.
Dotato di CPI Certificato Prevenzione Incendi.

PREZZO €. 900.000,00

PARADISO CASE LISSONE
Lissone via Loreto 72
Telefono 039 462509 Cellulare 335 5891427
www.paradisocaselissone.it

LEGGI TUTTO

CONDIVIDI SUI SOCIAL

DATI PRINCIPALI

Riferimento
133206
Contratto
Vendita
Tipologia
Immobile - Capannone
Superficie
900 mq
Locali
1
Bagni
2
Piano
Piano terra
Totale piani
1

CARATTERISTICHE

Ascensore Allarme

COSTI

Prezzo
€ 900.000,00

EFFICIENZA ENERGETICA

Stato
Abitabile
Anno costruzione
1965

MAPPA

Lissone comune della Bassa Brianza Centrale Sud

ANNUNCI SIMILI