Vendita luminoso e recente capannone a Sovico VENDITA

Via Greppi Cascina 75 - Sovico (Monza e Brianza)
€ 425.000
  • Più di 5 locali
  • 520 mq
  • 4 bagni

Capannone in Vendita a Sovico

Capannone in vendita situato a Sovico, in una zona strategica e comoda per raggiungere le principali vie di comunicazione e a breve anche l'accesso per la Pedemontana.
L'edificio, di recente costruzione, si presenta in ottime condizioni interne ed esterne, molto luminoso e spazioso, costruito con materiali di qualità che garantiscono la solidità della struttura. Ideale per svolgere attività commerciali e industriali con zona laboratorio/magazzino e uffici, sia logistici che di rappresentanza.
L'immobile sarà libero al rogito, il che lo rende immediatamente disponibile per l'acquisto.
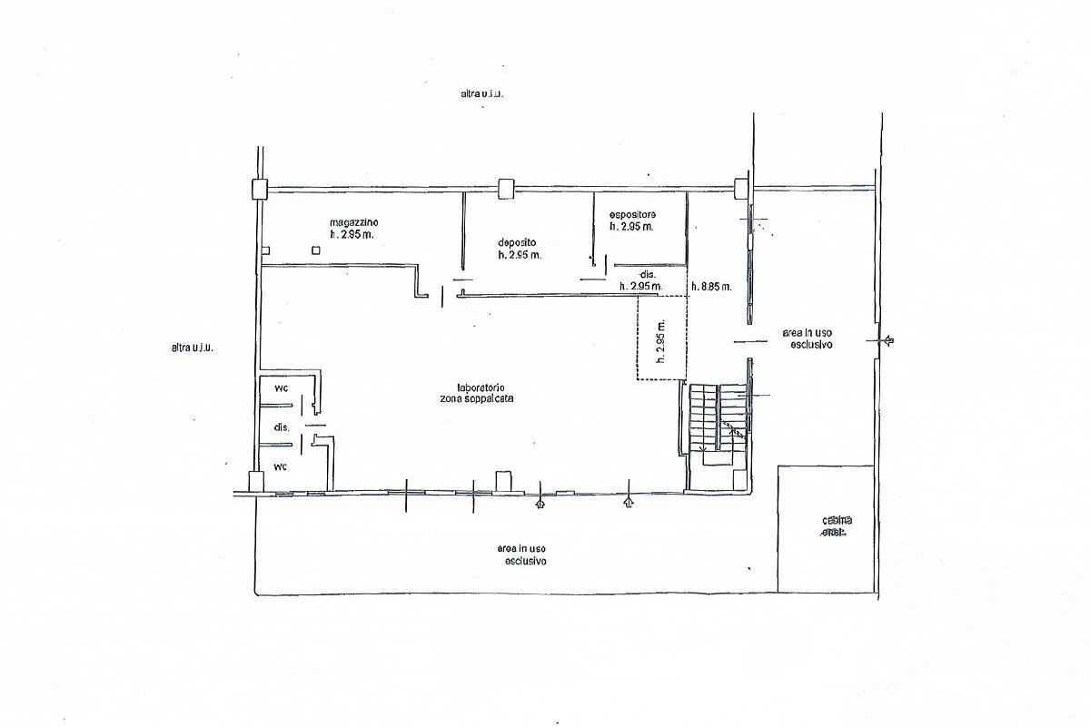
La sua superficie totale è di 520 metri quadrati, distribuiti su due piani, garantendo ampi spazi e un'ottima fruibilità degli ambienti, luminoso grazie alle grandi vetrate a tutta altezza su strada. L'immobile è dotato di due ingressi separati, facilitando l'accesso e la gestione di eventuali flussi di merci e persone.
Inoltre, vi sono anche 120 metri quadrati di spazio scoperto, composti dal cortile d'ingresso pedonale principale, piantumato con cura, e lateralmente dall'ingresso carraio, dove poter parcheggiare almeno 4 auto nell'area esterna privata.
Entrando dall'ingresso principale troviamo uno spazio adibito ad accoglienza clienti. Sulla sinistra abbiamo l'accesso alla luminosa scala aperta che porta al piano superiore e sulla destra abbiamo due eleganti sale riunioni divise da vetrate e un comodo archivio. Da qui si accede alla zona dedicata al laboratorio/magazzino.
L'altezza interna del magazzino al piano terra di 4,70 metri permette di sfruttare al massimo lo spazio a disposizione, ed è possibile l'ingresso di un furgone per carico/scarico merci. Al piano superiore sono presenti anche 260 metri quadrati di uffici, ideali per ospitare lo staff e svolgere attività amministrative o direzionali. Qui il piano è suddiviso in un luminoso e funzionale open space con un'altezza di 3 metri, tre uffici direzionali divisi da vetrate, una comoda zona break e due bagni. Pavimento galleggiante.
La struttura è dotata di un sistema di allarme per garantire la massima sicurezza dell'immobile e delle attività svolte al suo interno. Condizionamento estate/inverno elettrico con pompa di calore Clivet esterna. Basse spese condominiali e di gestione.
Grazie alle sue ampie dimensioni e alla sua versatilità, questo capannone rappresenta una grande opportunità per chi cerca uno spazio funzionale e polifunzionale, in una zona comoda e ben servita.
Contattaci subito per fissare un appuntamento! PUNTOCASA LISSONE - via Loreto 86, Lissone - tel. 039 2143196

LEGGI TUTTO

CONDIVIDI SUI SOCIAL

DATI PRINCIPALI

Riferimento
132955
Contratto
Vendita
Tipologia
Immobile - Capannone
Superficie
520 mq
Locali
Più di 5
Bagni
4
Piano
1 °
Totale piani
2
Box/Posto auto
Doppio

CARATTERISTICHE

Ascensore Allarme

COSTI

Prezzo
€ 425.000,00
Spese condominiali
€ 100,00 / mese

EFFICIENZA ENERGETICA

Stato
Ristrutturato
Anno costruzione
2006
Riscaldamento
Autonomo
Climatizzazione
Si
Classe energetica
C
IPE
272,00 kWh/m²a

A+

A

B

272,00 kWh/m²a | Classe energetica C

C

D

E

F

G

MAPPA

Sovico comune della Bassa Brianza Centrale Sud

ANNUNCI SIMILI