Capannone in vendita a Sesto San Giovanni VENDITA

Sesto San Giovanni (Milano)
€ 380.000
  • 1 locale
  • 832 mq

Capannone in Vendita a Sesto San Giovanni

Il Geom. Stefano Tronca, perito e consulente immobiliare di Siacasa Immobiliare, propone in vendita capannone a Sesto San Giovanni, una soluzione ideale per aziende, artigiani e attività produttive che necessitano di spazi funzionali e ben organizzati in una posizione strategica.

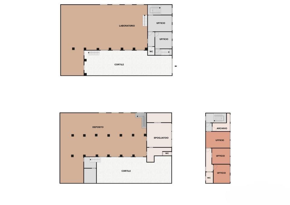
L’immobile ha una superficie complessiva di circa 820 mq, suddivisa come segue:
• Piano rialzato di 275 mq destinato a laboratorio/deposito, servito da ribalta, con 71 mq di uffici.
• Piano primo di 111 mq, suddiviso in archivio, ripostiglio, tre uffici, disimpegno e bagno.
• Piano seminterrato di 360 mq, utilizzabile come magazzino o deposito, accessibile sia tramite scala interna che da rampa carrabile.
• Area esterna di 120 mq, utile per carico/scarico e movimentazione merci.

Le altezze interne sono di 4,50 metri al piano rialzato e 3,05 metri nei restanti livelli, garantendo spazi adattabili a diverse esigenze operative.

L’immobile si presenta nello stato originario, con interventi migliorativi effettuati nel tempo, tra cui il rifacimento del tetto, e offre la possibilità di acquisire l'impianto fotovoltaico già installato, ideale per chi desidera ottimizzare i consumi energetici e ridurre i costi operativi.

Grazie alla posizione strategica, agli spazi versatili e alla possibilità di personalizzazione, questa proprietà rappresenta un’ottima opportunità per chi cerca un capannone in vendita a Sesto San Giovanni, perfetto per uso artigianale, produttivo o logistico.

Prezzo di vendita: 380.000 euro oltre IVA
Libero al rogito

Cerchi un capannone in vendita a Sesto San Giovanni con magazzino e uffici? Contatta il Geom. Stefano Tronca – Siacasa Immobiliare per maggiori informazioni e per prenotare una visita.

LEGGI TUTTO

CONDIVIDI SUI SOCIAL

DATI PRINCIPALI

Riferimento
126837
Contratto
Vendita
Tipologia
Immobile - Capannone
Superficie
832 mq
Locali
1
Piano
1 °
Totale piani
3

CARATTERISTICHE

Ascensore

COSTI

Prezzo
€ 380.000,00

EFFICIENZA ENERGETICA

Stato
Abitabile
Anno costruzione
1962
Classe energetica
G
IPE
175,00 kWh/m²a

A+

A

B

C

D

E

F

175,00 kWh/m²a | Classe energetica G

G

MAPPA

Sesto San Giovanni comune della Brianza Milanese

ANNUNCI SIMILI

VENDITA 6
€ 567.000
Capannone in Vendita a Vimodrone (Milano)
  • 1 locale
  • 1300 mq
  • 3 bagni
VENDITA 20
€ 600.000
Capannone in Vendita a Paderno Dugnano (Milano)
  • 1 locale
  • 880 mq
  • 4 bagni
VENDITA 20
€ 600.000
Capannone in Vendita a Paderno Dugnano (Milano)
  • 1 locale
  • 880 mq
  • 4 bagni
VENDITA 20
€ 620.000
Capannone in Vendita a Paderno Dugnano (Milano)
  • 1 locale
  • 786 mq
  • 3 bagni