CAPANNONE 860 MQ CON CORTILE PRIVATO 242 MQ A SESTO S.G. VENDITA

Via Giosuè Carducci - Sesto San Giovanni (Milano)
€ 620.000
  • Più di 5 locali
  • 860 mq
  • 3 bagni

Capannone in Vendita a Sesto San Giovanni

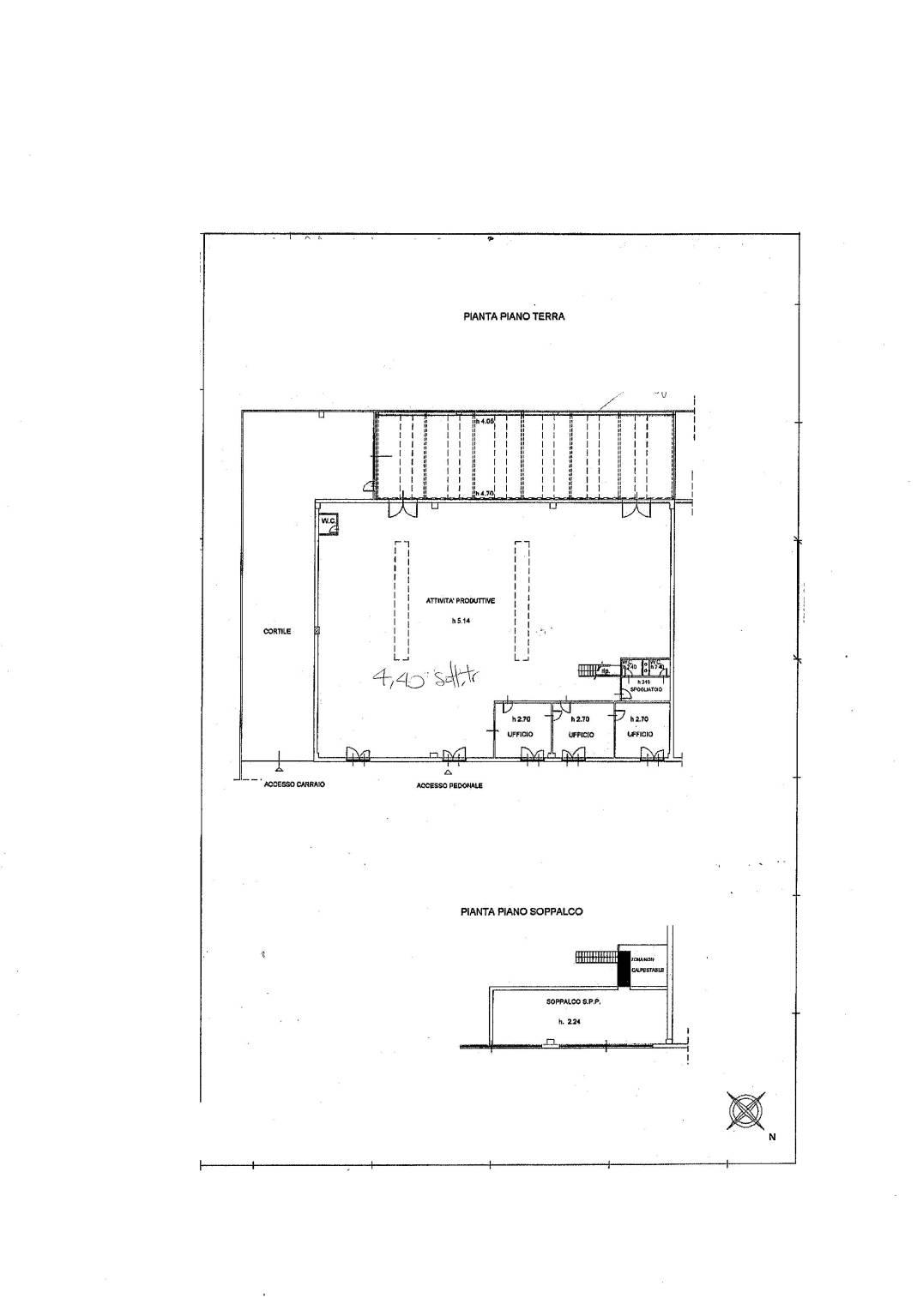
CAPANNONE 860 MQ CON CORTILE PRIVATO 242 MQ A SESTO SAN GIOVANNI - In posizione strategica, a pochi passi da viale Fulvio Testi, proponiamo in vendita un capannone di 860 mq situato all’interno del Centro Industriale Carducci, un complesso a destinazione industriale e terziaria dotato di servizio di portineria. La zona produttiva/deposito, di 784 mq con altezza utile di 4,4 m, è accessibile tramite doppio portone d’ingresso all’interno del cortile privato. L’area è dotata di impianto di riscaldamento a gas e pale di ventilazione a soffitto nella porzione attualmente adibita a punto vendita.
Gli uffici, per complessivi 76 mq, sono suddivisi in tre ambienti e dispongono di tutta l’impiantistica necessaria: riscaldamento, condizionamento con pompa di calore e impianto elettrico.
Completa la proprietà il cortile privato che si estende su due lati di 242 mq.
Ottimi i collegamenti con i mezzi pubblici: la fermata M5 Bignami è raggiungibile in circa 10 minuti a piedi, mentre M1 Sesto Rondò dista circa 16 minuti. La zona è inoltre servita da bar, ristoranti e dal Centro Sarca, situato immediatamente alle spalle dell’edificio.

CARATTERISTICHE:
- Superficie: 860 mq
- Impianto di riscaldamento lato magazzino
- Impianto di riscaldamento lato ufficio
- Condizionamento in pompa di calore lato ufficio
- Due portoni d’accesso al magazzino
- Ottimi collegamenti con mezzi pubblici
- Parcheggio disponibile
- n. 3 servizi con spogliatoio
- ulteriore spazio archivio di 76 mq
- cortile privato 242 mq

LOCALIZZAZIONE IMMOBILE:
- 4 km dall’ Autostrada A4
- 4 km dalla A52 Tangenziale Nord di Milano
- 0,2 km dal Viale Fulvio Testi
- 15 Km dall’aeroporto di Linate

Contattaci per maggiori informazioni o per organizzare un sopralluogo.

SCOPRI ALTRE SOLUZIONI SUL NOSTRO SITO WWW.CASAEINDUSTRIA.IT

LEGGI TUTTO

CONDIVIDI SUI SOCIAL

DATI PRINCIPALI

Riferimento
127870
Contratto
Vendita
Tipologia
Immobile - Capannone
Superficie
860 mq
Locali
5
Bagni
3
Piano
Piano terra
Totale piani
1
Box/Posto auto
Doppio

CARATTERISTICHE

Ascensore

COSTI

Prezzo
€ 620.000,00
Spese condominiali
€ 400,00 / mese

EFFICIENZA ENERGETICA

Stato
Abitabile
Anno costruzione
1988
Riscaldamento
Autonomo
Climatizzazione
Si
Classe energetica
F
IPE
100,23 kWh/m²a

A+

A

B

C

D

E

100,23 kWh/m²a | Classe energetica F

F

G

MAPPA

Sesto San Giovanni comune della Brianza Milanese