Arcore - Capannone di 714mq in Vendita VENDITA

Via del Bruno 58 - Arcore (Monza e Brianza)
€ 650.000
  • 1 locale
  • 714 mq

Capannone in Vendita a Arcore

Capannone Anni '90 in Ottime Condizioni

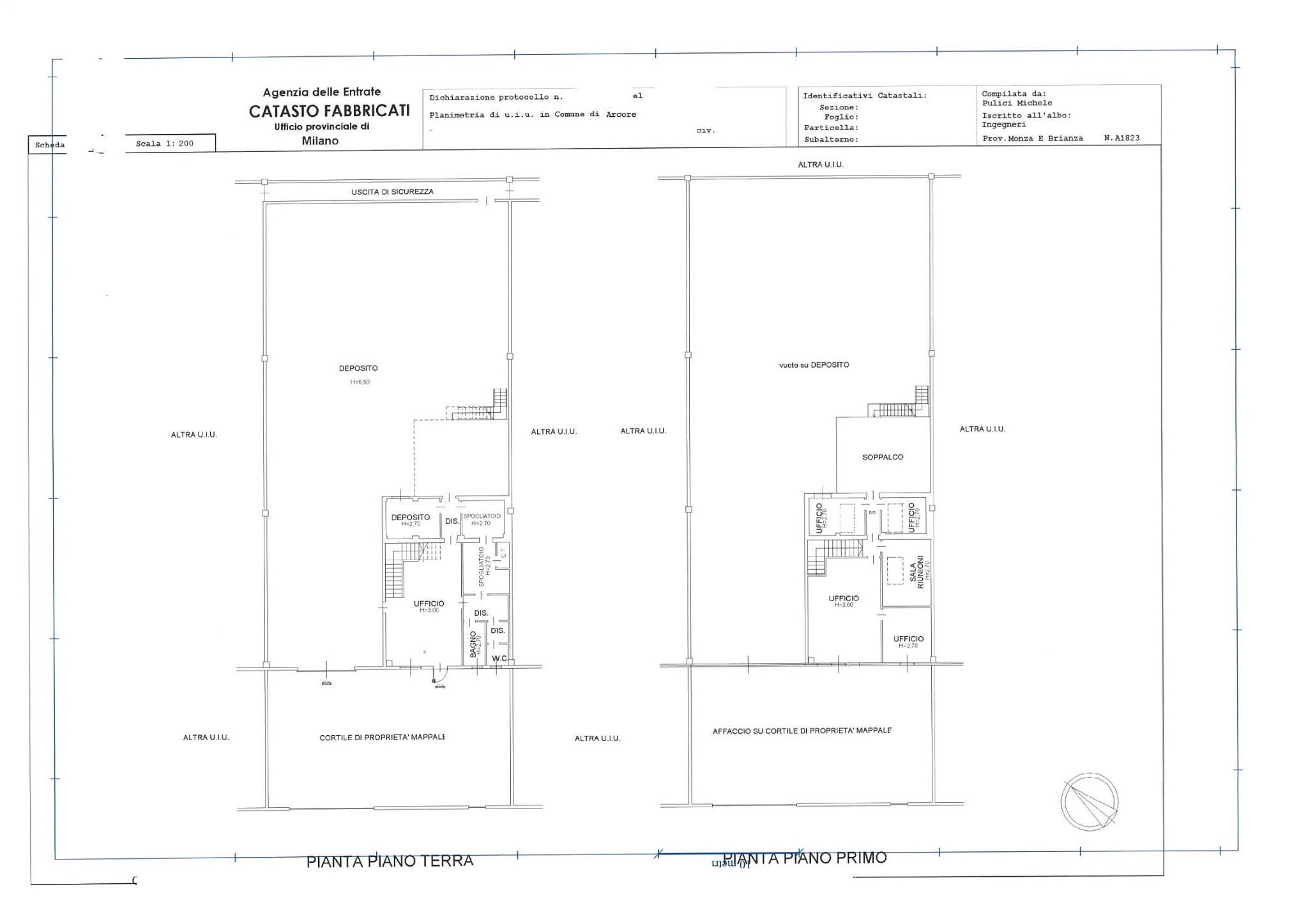
Proponiamo in vendita un capannone degli anni '90, in eccellenti condizioni, ideale per attività produttive e logistiche. La struttura è priva di pilastri interni, garantendo così una massima flessibilità negli spazi.

Caratteristiche Principali:

Superficie Commerciale: 714 mq circa
Superficie Produttiva: 434 mq circa

Altezza Sotto Trave: 6.50 m
Altezza Massima: 7.80 m
Impianto di Illuminazione: già installato
Forza Motrice: disponibile
Riscaldamento: dotato di destratificatori d’aria
Lucernai: apribili elettronicamente per una migliore illuminazione naturale

Soppalco in Ferro: 33 mq circa
Soletta in Muratura: 27 mq circa
Uffici e Servizi: 220 mq circa su due livelli

Piano Terra: reception, locale break, servizi e spogliatoi
Piano Primo: direzione e sala riunioni
Impianti negli Uffici:

Riscaldamento e condizionamento
Cablaggio rete dati
Sicurezza: Proprietà allarmata con grate alle finestre per una maggiore protezione.

Area Esterna: 190 mq circa, esclusiva e situata in posizione frontale, ideale per operazioni di carico e scarico, anche per mezzi pesanti (bilici).

Non perdere questa opportunità! Contattaci per ulteriori informazioni e per organizzare una visita.

LEGGI TUTTO

CONDIVIDI SUI SOCIAL

DATI PRINCIPALI

Riferimento
130687
Contratto
Vendita
Tipologia
Immobile - Capannone
Superficie
714 mq
Locali
1
Piano
1 °
Totale piani
3

CARATTERISTICHE

Ascensore Allarme

COSTI

Prezzo
€ 650.000,00

EFFICIENZA ENERGETICA

Stato
Abitabile
Riscaldamento
Autonomo
Climatizzazione
Si
Classe energetica
G
IPE
351,00 kWh/m²a

A+

A

B

C

D

E

F

351,00 kWh/m²a | Classe energetica G

G

MAPPA

Arcore comune della Bassa Brianza Orientale o Vimercatese

ANNUNCI SIMILI

VENDITA 16
€ 650.000
Capannone in Vendita a Monza (Monza e Brianza)
  • 1 locale
  • 1000 mq