• 1 locale
  • 1000 mq

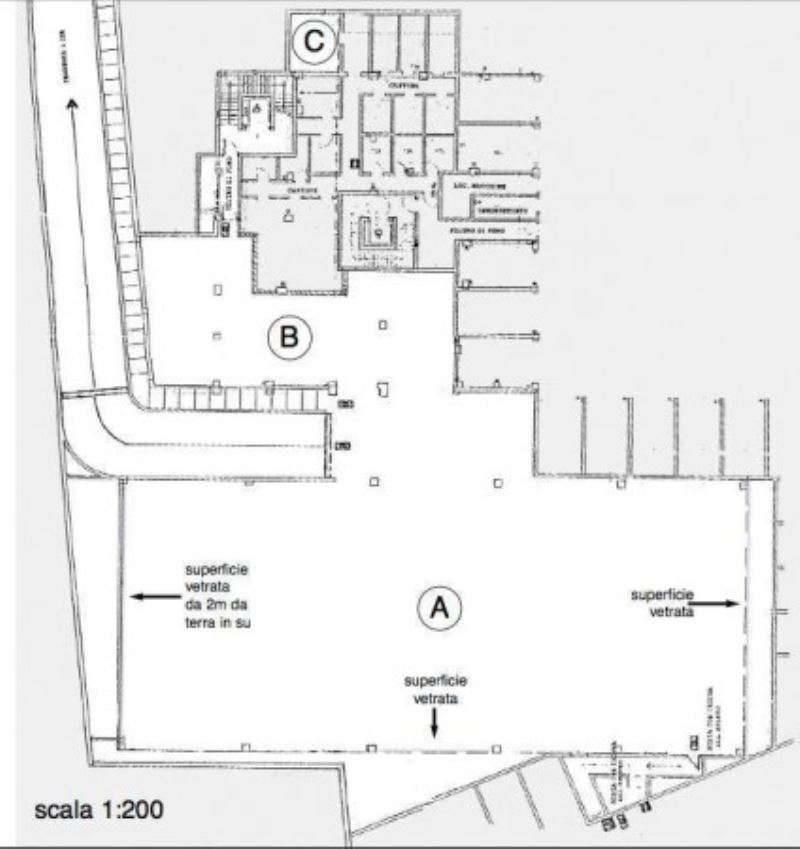
Capannone in Vendita a Monza

Salone luminosissimo di 1.000 mq. Ottimo come autorimessa camper , palestra show room Salone luminosissimo in nuova costruzione, mq. 1000 circa (altezza m. 6) più mq. 300 per uffici. Ottimo come magazzino, showroom, palestra, piscina o attività artigianale. A Monza in via De Marchi, è disponibile un salone seminterrato ottimo come palestra, showroom o magazzino. Al momento la struttura è al rustico. Sono predisposti i muri perimetrali, il tetto del salone e la gettata di terra per la rampa di accesso carrabile. Al salone, di 850 mq, si accede attraverso una rampa carrabile privata o attraverso un ingresso pedonale privato al piano terreno (con scivolo per disabili) e ascensore privato che porta dal piano terreno al piano interrato. Al piano interrato, scendendo con l'ascensore, si accede a uno spazio di 300mq circa adibibile a uffici o altro a seconda dell'utilizzo. Inoltre, è predisposto uno spazio di 25mq per una centrale termica autonoma. L'illuminazione del salone è garantita da pareti vetrate che prendono luce da cavedi perimetrali. Il salone ha un'altezza di 5,1m portabile a 6m a seconda dell'esigenza. E' anche possibile fare due piani (vista l'altezza) o una parte soppalcata. Sono già previste le uscite d'emergenza. All'esterno ci sono molte possibilità di parcheggio. Se interessati contattare il 335 667 3011

LEGGI TUTTO

CONDIVIDI SUI SOCIAL

DATI PRINCIPALI

Riferimento
6785
Contratto
Vendita
Tipologia
Immobile - Capannone
Superficie
1000 mq
Locali
1

COSTI

Prezzo
€ 650.000,00

EFFICIENZA ENERGETICA

Stato
Da ristrutturare
Riscaldamento
Autonomo

MAPPA

Monza comune della Bassa Brianza Centrale Sud

ANNUNCI SIMILI