NUOVO QUADRILOCALE CON SOLAIO DI 70 MQ E DUE POSTI AUTO VENDITA

Via Gianluca Padulli 63 - Cabiate (Como)
€ 370.000
  • Quadrilocale
  • 150 mq
  • 2 bagni

Attico in Vendita a Cabiate

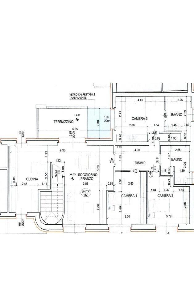
Cabiate: al confine con Perticato e comodo con il comune di Seregno, proponiamo in vendita in un piccolo complesso residenziale di nuova costruzione in classe energetica A4, un ampio e luminoso quadrilocale di 150 mq con terrazzo posto al piano primo ed ultimo.
L’immobile gode di una tripla esposizione solare garantendo luminosità in ogni momento della giornata ed è composto da: ingresso, spazioso soggiorno con affaccio su terrazzo di 20 mq, cucina abitabile con accesso sul balcone, bagno padronale con box doccia, tre camere da letto di cui una con bagno finestrato. Scala interna di collegamento che conduce al solaio di 70 mq già rifinito e ideale come locale hobby/ripostiglio.
La soluzione dispone di un RISCALDAMENTO AUTONOMO A PAVIMENTO alimentato da pompa di calore con termostati in ogni ambiente per regolare la temperatura, serramenti in alluminio triplo vetro con avvolgibili motorizzati, impianto di raffrescamento canalizzato ed impianto fotovoltaico.
Due posti auto coperti con colonnina di ricarica elettrica per auto!
*
*
Stai pensando di vendere o affittare il tuo immobile? Siamo al tuo fianco nel momento più importante: la valutazione…affidati a noi per una stima gratuita e non impegnativa. Scopri quale mutuo puoi richiedere e con i nostri consulenti del credito Monety, ti accompagniamo in ogni fase della ricerca del finanziamento più idoneo alle tue esigenze: un processo delicato che spesso richiede del tempo, snellito dalla supervisione di un team professionale ed esperto. Il nostro team di consulenti del credito lavora in collaborazione con diverse banche e istituti finanziari, così da individuare sempre le migliori opzioni di finanziamento disponibili sul mercato. Gabetti Franchising Agency è un brand capace di rinnovarsi ed emergere per fronteggiare i rapidi cambiamenti del mercato immobiliare, attraverso la riconosciuta professionalità dei suoi imprenditori concretizza e applica i valori della tradizione, della società e dell'affidabilità, coniugandoli con quelli della modernità, dell'innovazione e del dinamismo.

LEGGI TUTTO

CONDIVIDI SUI SOCIAL

DATI PRINCIPALI

Riferimento
133419
Contratto
Vendita
Tipologia
Attico
Superficie
150 mq
Locali
4
Camere da letto
3
Cucina
Abitabile
Bagni
2
Piano
1 °
Totale piani
1
Box/Posto auto
Doppio

CARATTERISTICHE

Ascensore

COSTI

Prezzo
€ 370.000,00

EFFICIENZA ENERGETICA

Stato
Nuovo/In costruzione
Anno costruzione
2025
Riscaldamento
Autonomo
Climatizzazione
Si
Classe energetica
A4
IPE
351,00 kWh/m²a
351,00 kWh/m²a | Classe energetica A4

A4

A3

A2

A1

B

C

D

E

F

G

MAPPA

Cabiate comune della Bassa Brianza Comasca