€ 462.000
  • Quadrilocale
  • 155 mq
  • 2 bagni

Attico in Vendita a Cabiate

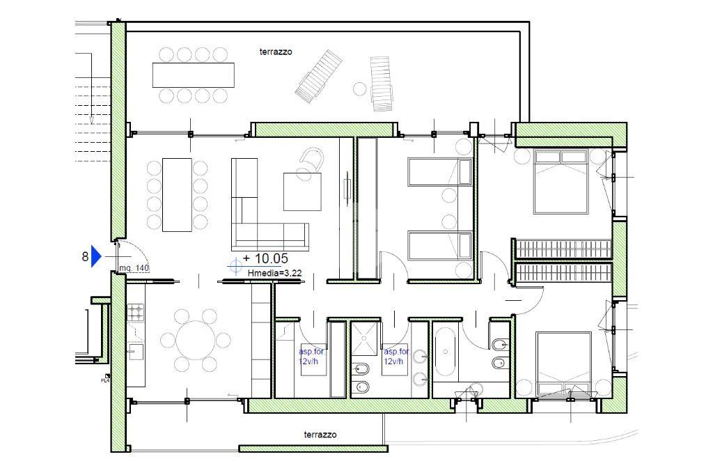
APP. 8
In zona centrale di Cabiate, comodo con i principali servizi e la stazione ferroviaria. Palazzina servita da ascensore di 3 piani oltre interrato con box e cantine, composto da 8 appartamenti.
Attico ultimo piano con ingresso sulla zona giorno composta da doppio soggiorno con porta finestra per accesso al terrazzo che segue tutto l'appartamento. Cucina abitabile separata dal soggiorno con porta finestra per accedere al secondo terrazzo. Corridoio che conduce alla zona notte composta da due camere matrimoniali ed una terza camera. Doppi servizi oltre a locale lavanderia con aspirazione forzata.
L'attico dispone di riscaldamento a pavimento con termostato separato per ogni locale e scalda-salviette nei bagni, predisposizione aria condizionata e impianto di allarme. Infissi doppio vetro in alluminio con tapparelle elettriche. Predisposizione fibra ottica. Impianto fotovoltaici per parti comuni del condominio.
Cantina compresa nel prezzo.
Possibilità acquisto box.
Scelta del capitolato.

LEGGI TUTTO

CONDIVIDI SUI SOCIAL

DATI PRINCIPALI

Riferimento
126568
Contratto
Vendita
Tipologia
Attico
Superficie
155 mq
Locali
4
Camere da letto
3
Cucina
Abitabile
Bagni
2
Piano
3 °
Totale piani
3
Box/Posto auto
Singolo

CARATTERISTICHE

Ascensore

COSTI

Prezzo
€ 462.000,00
Spese condominiali
€ 83,00 / mese

EFFICIENZA ENERGETICA

Stato
Nuovo/In costruzione
Anno costruzione
2025
Riscaldamento
Autonomo
Climatizzazione
Predisposizione
Classe energetica
A4
IPE
0,40 kWh/m²a
0,40 kWh/m²a | Classe energetica A4

A4

A3

A2

A1

B

C

D

E

F

G

MAPPA

Cabiate comune della Bassa Brianza Comasca

ANNUNCI SIMILI

VENDITA 20
€ 508.900
Attico in Vendita a Cabiate (Como)
  • Quadrilocale
  • 171 mq
  • 2 bagni
VENDITA 2
€ 487.000
Attico in Vendita a Cabiate (Como)
  • Quadrilocale
  • 140 mq
  • 2 bagni
VENDITA 20
€ 487.000
Attico in Vendita a Cabiate (Como)
  • Quadrilocale
  • 140 mq
  • 2 bagni
VENDITA 20
€ 280.000
Attico in Vendita a Cantù (Como)
  • Quadrilocale
  • 130 mq
  • 2 bagni
VENDITA 20
€ 416.000
Attico in Vendita a Cantù (Como)
  • Quadrilocale
  • 139 mq
  • 1 bagno