ATTICO - Appartamento di 3 locali, con doppi servizi VENDITA

Monza (Monza e Brianza)
€ 239.000
  • Trilocale
  • 122 mq
  • 2 bagni

Attico in Vendita a Monza

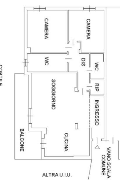
Ampio e luminoso tre locali, RISTRUTTURATO NEL 2023, è esposto a EST e si trova all'ultimo piano di una palazzina di 3 piani, e a due passi dalla principali arterie di comunicazione, supermercati e fermate dell'autobus.

L'APPRTAMENTO è DI 121 MQ, composto da uno spazioso soggiorno con cucina a vista, balcone di 12 mq che, in prossimità della cucina, si allarga in modo da poter vivere al meglio lo spazio esterno.

IL TAGLIO, razionale, divide nettamente la zona dalla zona notte, in cui troviamo le due camere, i due bagni e un ripostiglio.

Possibilità BOX di 21 mq.

LEGGI TUTTO

CONDIVIDI SUI SOCIAL

DATI PRINCIPALI

Riferimento
132336
Contratto
Vendita
Tipologia
Attico
Superficie
122 mq
Locali
3
Camere da letto
2
Cucina
A vista
Bagni
2
Piano
3 °
Totale piani
3
Box/Posto auto
Singolo

CARATTERISTICHE

Ascensore

COSTI

Prezzo
€ 239.000,00

EFFICIENZA ENERGETICA

Stato
Ristrutturato
Anno costruzione
1950
Riscaldamento
Centralizzato
Climatizzazione
Si
Classe energetica
F
IPE
175,00 kWh/m²a

A+

A

B

C

D

E

175,00 kWh/m²a | Classe energetica F

F

G

MAPPA

Monza comune della Bassa Brianza Centrale Sud

ANNUNCI SIMILI

VENDITA 12
€ 560.000
Attico in Vendita a Monza, Zona Buonarroti
  • Più di 5 locali
  • 187 mq
  • 3 bagni
VENDITA 20
€ 619.000
Attico in Vendita a Monza (Monza e Brianza)
  • Più di 5 locali
  • 202 mq
  • 2 bagni