TRILOCALE RISTRUTTURATO CON TAVERNA E GIARDINO VENDITA

Via della Pavesa 6 - Bernareggio (Monza e Brianza)
€ 268.000
  • Quadrilocale
  • 110 mq
  • 2 bagni

Appartamento in Vendita a Bernareggio

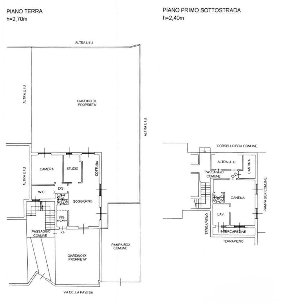
A Bernareggio, in zona tranquilla, proponiamo appartamento al piano terra di circa 87 mq, completamente ristrutturato.
L’abitazione offre un ampio e luminoso soggiorno con cucina a vista dal design moderno, due camere spaziose e un bagno con doccia.
Una comoda scala interna collega alla taverna di 33 mq, suddivisa in camera e bagno.
Completano la proprietà un box, una cantina e un grande giardino su tre lati, con una pratica area piastrellata adiacente alla casa, perfetta per pranzi e momenti all’aperto.

CONDIVIDI SUI SOCIAL

DATI PRINCIPALI

Riferimento
127959
Contratto
Vendita
Tipologia
Appartamento
Superficie
110 mq
Locali
4
Camere da letto
3
Cucina
A vista
Bagni
2
Piano
Piano terra
Totale piani
2
Box/Posto auto
Singolo

CARATTERISTICHE

Ascensore

COSTI

Prezzo
€ 268.000,00
Spese condominiali
€ 85,00 / mese

EFFICIENZA ENERGETICA

Stato
Ristrutturato
Anno costruzione
2004
Riscaldamento
Autonomo
Climatizzazione
Predisposizione
Classe energetica
F
IPE
175,00 kWh/m²a

A+

A

B

C

D

E

175,00 kWh/m²a | Classe energetica F

F

G

MAPPA

Bernareggio comune della Bassa Brianza Orientale o Vimercatese

ANNUNCI SIMILI

VENDITA 20
€ 299.000
Appartamento in Vendita a Bernareggio (Monza e Brianza)
  • Quadrilocale
  • 182 mq
  • 2 bagni
VENDITA 20
€ 187.000
Appartamento in Vendita a Aicurzio (Monza e Brianza)
  • Più di 5 locali
  • 152 mq
  • 2 bagni