Terratetto plurifamiliare via San Bartolomeo, 50 Villanova VENDITA

Via San Bartolomeo 50 - Bernareggio (Monza e Brianza)
€ 235.000
  • Più di 5 locali
  • 194 mq
  • 3 bagni

Appartamento in Vendita a Bernareggio

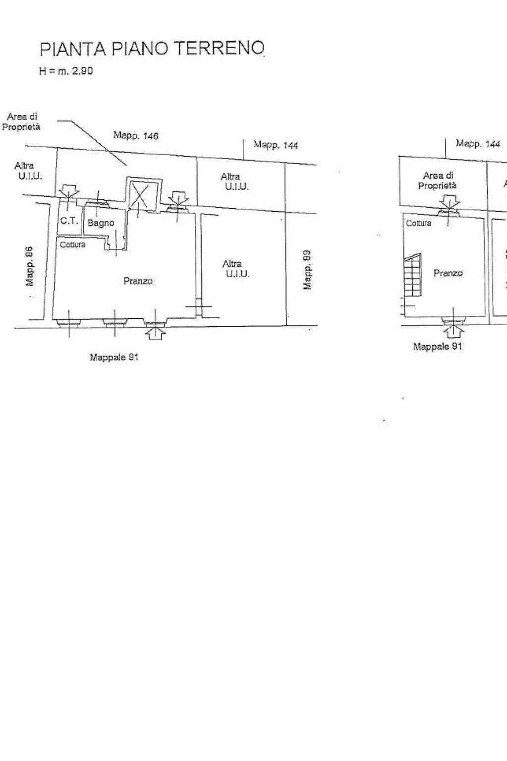
Casa indipendente con 2 unità abitative

In una tranquilla e caratteristica corte di Villanova, frazione di Bernareggio, proponiamo in vendita soluzione indipendente composta da due unità abitative, ideale per famiglie numerose o per chi cerca una casa con spazi flessibili e personalizzabili.

Appartamento 3 locali di 100 mq composto da:
Piano terra(50 mq):
Ingresso
Soggiorno con cucina a vista
Bagno finestrato
Ascensore

Piano Primo (50 mq ):
Tramite un'ascensore privata si accede al piano superiore, dove troviamo:

Spazioso disimpegno
Ripostiglio
Due camere da letto
Bagno
Balcone

appartamento 2 locali di 50mq composto da:
Piano terra (25 mq):

Soggiorno con cucina a vista

Piano Primo (25 mq ):
Tramite una scala interna si accede al piano superiore, dove troviamo:

Spazioso disimpegno
Camera da letto
Bagno finestrato
Balcone

L’abitazione negli anni è stata oggetto di vari lavori di ristrutturazione. All'interno della corte troviamo un box di 53 mq con basculante automatizzata oltre soprastante locale di mq 53 ed un locale adibito a sgombero / ripostiglio di mq. 18 al piano primo. E' possibile, con una rivisitazione degli spazi e finiture, ricavare un'abitazione su due livelli oppure mantenere due unità immobiliari distinte. Soluzione ideale per famiglie o giovani coppie senza spese condominiali.
La caldaia a condensazione è stata sostituita nel 2025.
Prezzo richiesto € 235.000,00 –
Rif. 1555

LEGGI TUTTO

CONDIVIDI SUI SOCIAL

DATI PRINCIPALI

Riferimento
128650
Contratto
Vendita
Tipologia
Appartamento
Superficie
194 mq
Locali
Più di 5
Camere da letto
3
Cucina
A vista
Bagni
3
Piano
1 °
Totale piani
1
Box/Posto auto
Doppio

CARATTERISTICHE

Ascensore

COSTI

Prezzo
€ 235.000,00

EFFICIENZA ENERGETICA

Stato
Abitabile
Anno costruzione
1995
Riscaldamento
Autonomo
Classe energetica
F
IPE
305,00 kWh/m²a

A+

A

B

C

D

E

305,00 kWh/m²a | Classe energetica F

F

G

MAPPA

Bernareggio comune della Bassa Brianza Orientale o Vimercatese

ANNUNCI SIMILI

VENDITA 5
€ 580.000
Appartamento in Vendita a Lesmo (Monza e Brianza)
  • Più di 5 locali
  • 280 mq
  • 3 bagni
VENDITA 20
€ 430.000
Appartamento in Vendita a Monza (Monza e Brianza)
  • Più di 5 locali
  • 195 mq
  • 3 bagni
VENDITA 20
€ 850.000
Appartamento in Vendita a Vedano al Lambro (Monza e Brianza)
  • Più di 5 locali
  • 385 mq
  • 4 bagni